Q:日本的房子哪里最贵?
A:东京!
Q:东京的公寓哪种最贵?
A:塔楼!
Q:塔楼中什么样的公寓最贵?
A:高层能眺望东京塔的!
Q:有什么值得推荐的塔楼吗?
A:パークコート麻布十番ザ・タワー!
以“提供高品质信赖感的空间”为设计理念打造出来的麻布十番塔楼,处处显露出艺术气息。项目中设计了各种绿植布景,还有业主专属的恒温花园休息室,在钢铁森林的都市生活中难得享有一片山水相依、绿意盎然的“城市的绿洲”,给人以超治愈的放松享受。

麻布十番塔楼地处东京都心,因便利性和生活性而人气很高,是住着很多艺人和名人的人气超高的地区。这里交通非常便利,很容易前往六本木、银座等东京都内最具人气的地方。同时,这里的生活配套设施也极其充足,步行圈内遍布各大超市、便利店、药妆店、邮局、银行、医院、学校、餐厅等。项目不仅离知名的麻布十番商店街步行仅5分钟的距离,还是能够在公寓楼内就能欣赏到东京塔景观的超高层、超高品质塔楼,因此颇受瞩目。

项目概要
地址:东京都港区三田1
价格:35,000万日元(约合1,750万人民币)
房产面积:94.55㎡
阳台面积:7.35㎡
总户数:440户
房产户型:3室1厅
建筑年代:2010年5月
建筑结构:钢筋混凝土造地下1层付地上36层
所在层:27层
管理费:31,580日元/月
修缮费:14,110日元/月
用途地域:近邻商业地域/第二种住居地域
土地权利:永久产权
交通:南北线*大江户线【麻布十番】站徒步3分、大江户线【赤羽桥】站徒步6分
推荐理由
2010年5月建成,永久产权,符合新抗震标准。都心超高层、超高级塔楼公寓。
.png)
项目位于东京都港区,周边有2线2站可以利用,距【麻布十番】站徒步3分钟,距【赤羽桥】站徒步6分钟。
.png)
六本木区域的东京中城复合商业设施等也在徒步范围内。此外,距离公寓周边步行5分钟的麻布十番商店街,聚集了衣食住各类店铺,日常购物和外出就餐非常方便。
.png)
公寓24小时有人管理,有着酒店般的氛围,1层有前台接待员,2层有恒温花园休息室,另外还有招待室、健身房等共用设施。公寓各层都设置了垃圾放置处,24小时随时可以扔垃圾,可以饲养宠物。

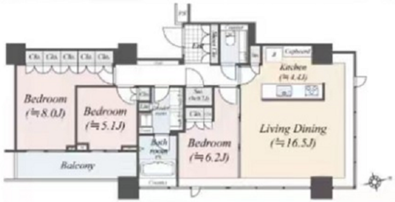
物件位于27层,是面积94.55㎡的3室1厅,透过宽敞全景窗可眺望都心景色,东京塔近在咫尺。
.png)
.png)

物件为东向角部屋,2面采光,内部全新装修,有着收纳丰富的收纳空间,独立型厨房,2个洗面池的洗面台,浴室可直接眺望东京塔景观。
.png)
港区
位于东京23区中央偏南部。该区是拥有最多企业总部的地区,是日本企业的中心。虎之门、新桥、芝为重要的办公商区,经济活动十分活跃。青山、赤坂等商业地区;六本木等娱乐中镇;麻布、白金台等高级住宅区;汐留、台场等大规模开发区,是该区展现各种不同风貌的代表。东宫御所、芝公园、白金台的自然教育园等是丰富的自然环境。驻日大使馆与外资企业的大量进驻,让港区的外国人居住者比例非常高。
受到东京2020年奥运会的影响,进入港区的企业和观光者数量会逐渐增加,商业地域周边的地价预计会出现较大增长。港区坐拥庆应大学、明治学院、东海大学等知名学府,因此针对大学生租赁的房产投资也可为投资带来稳定收益。
交通方面,可以同时利用复数条线路的品川站、新桥站等车站不仅通往东京都心十分便利,通往横滨,川崎和神奈川方向也是十分快捷,亦可以利用高人气的新干线。

对于房产投资,港区地价较东京其他区高,但从保值率角度,港区地价出现下跌的风险远小于其他地区。

对于房产投资,港区地价较东京其他区高,但从保值率角度,港区地价出现下跌的风险远小于其他地区。
项目图片

.png)
.png)
.png)
.png)
.png)
.png)
.png)
.png)
.png)
.png)
.png)
.png)
.png)
.png)
.png)
.png)
.png)

.png)
.png)

如果您也对日本房产投资感兴趣,或想了解更多日本资讯,欢迎联系我们。