详细情报
价格:4亿8,500万日元
约合:2,282万人民币
位置:東京都中央区勝どき4丁目
土地权利:永久产权
现状:空室
建筑年代:2023年8月
总户数:1,665戸
构造:钢筋混凝土造地下3层付地上58层
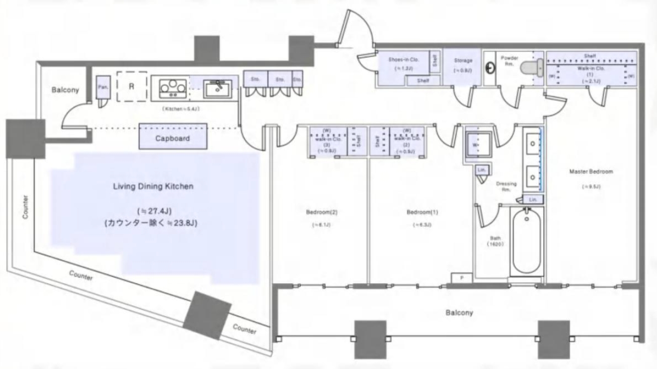
房产户型:3室1厅
使用面积:117.5㎡
阳台面积:20.8㎡
管理费:40,895日元/月
修缮费:13,865日元/月
交通:①都营大江户线【勝どき】站
②都营大江户线【汐留】站
③东京地下铁有乐町线【銀座一丁目】站
④东京地下铁有乐町线、山手线【有楽町】站
⑤山手线【東京】站
⑥都营大江户线、日比谷线【六本木】站
推荐理由
“Park Tower胜哄南”是一栋于2023年8月竣工的58层塔楼公寓楼,距离都营大江户线胜哄站步行仅需2分钟。虽然这是一栋共有1,665套房间的大型公寓,但配备了自动锁、送货柜等安全设施,可以支撑舒适的城市生活。
公寓楼还拥有一个可以与宠物一起生活的环境,您可以在20层及以上欣赏城市景观,俯瞰市中心。此外还有客房、24小时垃圾处理等设施,支持舒适的公共生活。
与此同时,这里还有良好的教育环境,对于有孩子的家庭来说是一个安全的地方。“Park Tower Kachidoki South”结合了前往市中心的便捷交通、丰富的设施和良好的周边环境,使其成为那些寻求容纳多种生活方式的城市生活的人的合适选择。
地理位置
胜哄站位于东京都中央区的海滨地区,是都营大江户线上安静便利的住宅区,位于上班或上学的便利位置,可轻松前往东京站和新宿站等东京市中心。车站周边有很多购物和公共设施,是从年轻人到老年人的广泛人群的舒适居住地。
车站前有超市、餐馆、咖啡馆、药妆店等。可以在回家的路上完成必要的购物和吃饭。同时这里教育设施丰富且优质、医疗和公共设施完备,是安静且可靠的居住环境。
近年来,由于塔楼公寓的建成,人口增加,城市正在发生重大变化。它靠近历史悠久的筑岛地区、前筑地市场和银座,是体验东京众多魅力的便捷场所。
周边环境
胜哄站周边地区位于隅田川河口,是一座四面环水的城市。隅田川沿岸有一条散步道,日夜经常可以看到步行者和跑步者。附近的水域是海水和淡水混合的咸水,经常可以看到人们在捕捞虾虎鱼和其他物种。
站前有一座月島第二儿童公园,是有游乐设施的大型儿童公园。夏天还有一个区域可以让小朋友在炎热夏天玩水消暑。
关于周边的公共设施:从胜哄站到中央区役所的距离较远,建议使用距离车站步行 8 分钟的月岛特别办事处,当地图书馆与分馆位于同一栋大楼内。
胜哄站周边的安全 胜哄站周边属于警视厅月岛警察署管辖。月岛警察局距离胜哄站仅有短短的12分钟步行路程,月岛警察局的胜哄桥派出所位于胜哄站的西北侧,负责监视车站周边的公共安全。在胜哄站路口,交通繁忙时,警察经常控制交通以确保安全。

中央区:中央区位于东京23区的正中央位置。中央区不仅地理位置处于东京的中心地,更是日本经济、信息、商业等的中心。著名的日本银行、东京证券交易所等日本经济核心都位于中央区。包括银座、大型布庄与百货公司总社聚集的日本桥、及以鱼货市场闻名的筑地皆位于本区范围之内。
本区商业强烈,高楼林立,住宅方面以高层公寓与团地等集合住宅为主,独户低层住宅或低层分租公寓较为少见。区内道路呈现棋盘状,与他区相比较为整齐。随着勝どき、晴海地区地区的住宅开发建设推进,近年中央区吸引了一批30-40岁的人口入住。由于该区位于东京中心位置,交通十分便捷,到神奈川,埼玉和千叶等地区的交通路线四通八达。
中央区是全日本地价最高的地区。很多投资者会将重点放在二手翻新公寓或是二手小户型公寓,这一类物件所需投资金额相对较低。若有一定资金实力可以考虑一次性投资整栋公寓以获得规模效益。
图片总览
公寓外观

公寓露台
.png)
公寓聚会室
.png)
公寓户型
