详细情报
价格:1亿6700万日元
约合:8300万人民币
位置:东京都涩谷区千驮谷3-16-8
土地权利:永久产权
现状:空室
建筑年代:2015年1月
总户数:57戸
构造:钢筋混凝土造 地上14层
楼层:6层
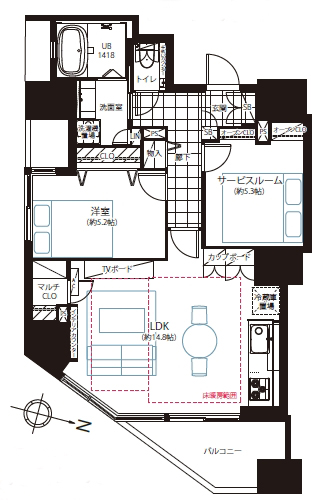
房产户型:2室1厅
使用面积:61.45m²
阳台面积:6.09㎡
管理费:17,200日元/月
修缮费:11,100日元/月
交通:①东京地铁副都心线【北参道】站
②JR山手线【原宿】站
③JR总武线【千驮谷】站
.jpg)
推荐理由
Crevia Harajuku公寓位置便利,距离东京地铁副都心线的北参道站很近。此外公寓附近还有JR山手线“原宿”站、从都营大江户线“国立体育场”站等,可根据目的地选择多种路线。
Crevia原宿的外观采用自然色的瓷砖,时尚的城市设计引人注目。大楼于2015年2月竣工,结构为地下1层附地上14层,楼内共有57个单位,从单身户型到家庭户型户型多样,每个户型的专属面积从33.68平方米到94.03平方米不等。每个单元都配备了地暖和系统厨房等舒适的生活设施。
此外,公寓的集体入口设有内置IC芯片的自动锁门,支持非接触式钥匙,并安装了安全摄像头。公共区域在安全方面会很安全,其他共用设施包括快递箱、停车场和自行车停车场。
此外,靠近车站的Crevia原宿周边地区有超市、餐馆、各种诊所、商业设施以及教育设施。此外明治神宫和代代木公园等郁郁葱葱的自然景点也在附近。
地理位置
北参道车站的名称源自通往明治神宫北侧的引道“北参道”。与其他车站相比,这个车站还算新,上下车的乘客较少,这对于不喜欢人群的人来说是一个加分点。虽然这只是连接副都心地区的一条线,但由于有一条线前往涩谷、新宿、池袋,无需换乘,而且步行即可到达JR山手线的代代木站,总武线、东京地铁大江户线增加了线路,非常方便。
这里绿意盎然,西临明治神宫,北临新宿御苑,东临国立竞技场,非常适合日常锻炼、散步、养育孩子等需要丰富自然环境的人士。对于喜欢季节变化的人来说,这是一个完美的地方。
车站前的明治通一带,或许是因为高层公寓林立的缘故,显得有些冷清,但往千驮谷站方向走一小段路,就会发现自己来到了太谷参道。近年来,该地区时尚商店的数量不断增加,设计和服装公司也纷纷进驻该地区,因此走在小镇上的人们都带有几分时尚气息。
还有因“将棋之神”而闻名的鸠之森八幡神社和千驮谷大通商店街!鸠森八幡神社全年经常举办活动和祭典,为有孩子的家庭提供更加愉快的环境。此外,如果你进入主干道,你会发现一个高档住宅区,两旁都是宏伟的独立屋。在这里您可以感受到北参道的深度,它有很多魅力。

涩谷区:涩谷区位于东京23区的西南部。涩谷区是东京一个富有个性的行政区,商业活动兴旺,尤其体现在涩谷车站忠犬八公出口处。著名的百货店、时装专卖店、饮食店、咖啡店、游技设施、风俗设施等密集如云,是与新宿同样被列为“24小时不眠之街”的城区。拥有“年轻人之街”之美称,使涩谷成为面向日本国内外各种流行的发祥地。
区内的松涛、広尾、代官山是人尽皆知的高级住宅地区。涩谷区的地价根据地区不同地价差异悬殊,便利性比较高又比较时尚的涩谷、原宿、代代木车站周围的地价非常高。区内拥有青山学院,津田塾、聖心女子大等大学,针对学生群体的租赁需求十分稳定。涩谷区的单身生活者和没有孩子的夫妇在住者大幅增加,这两种群体大约占区内人口的约80%。因此,中古小户型公寓需求十分旺盛。涩谷区的的地价根据地区差异十分明显,最高价与最低价相差23倍。区内的房屋出租价格与土地价格相互平衡。
图片总览
公寓室内
.jpg)
公寓室内
.jpg)
公寓室内

公寓室内
.jpg)
公寓外景

公寓户型
