详细情报
价格:1亿6,980万日元
约合:827万人民币
位置:東京都新宿区中里町6-1
土地权利:永久产权
现状:空室
建筑年代:1997年2月
总户数:169戸
构造:钢筋混凝土造地下1层付地上12层
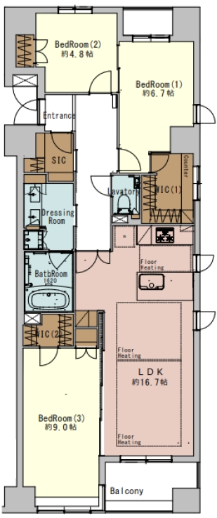
房产户型:3室1厅
使用面积:93.99m²
阳台面积:5.44m²
管理费:16,930日元/月
修缮费:17,850日元/月
驻车场:有
交通:①東京メトロ東西线 【神楽坂】站
②東京メトロ有乐町线 【江戸川橋】站
③都营大江户线【牛込神楽坂】站
.png)
推荐理由
“Park Heim 神乐坂”近邻东京地铁东西线神乐坂站。该住宅共有169间单位,除了配备自动锁、送货柜等设施外,还可以与宠物一起居住,这也是其魅力所在。公寓附近有方便日常购物的超市,生活便利。附近还有公园,可以在亲近大自然的同时度过轻松的时光。医疗设施也近在咫尺,让您安心健康生活。“Park Heim 神乐坂”将市中心舒适的生活设施与良好的周边环境相结合,是一个可以充分体验都市魅力的地方,它是一栋可以容纳多种生活方式的住宅。
地理位置
神乐坂是位于新宿区东侧的一个小镇,其特点是历史悠久的鹅卵石街道和时尚商店林立的主要街道。神乐坂是一个即使身处市中心也能享受古老日本氛围的地方,这里有许多充满平静成人氛围的餐厅、独特的咖啡馆和历史悠久的神社,所以您参观的越多,您就会发现越多,是一个可以感受日式和西式魅力的地方。
神乐坂的另一个魅力在于其便利的交通,共有6条线路,设有3个车站:神乐坂站、牛込神乐坂站、饭田桥站。从各车站出发,只需20分钟即可到达新宿、涩谷、池袋、东京等东京主要车站,不仅上班、上学,节假日外出也非常方便。该地区的租金相对较高,但神乐坂是一个兼具历史与现代魅力的城市区域,前往东京各地的交通十分便利,时尚的餐厅林立,街道景观仍保留着江户时代的氛围。

新宿区:新宿区位于东京23区副都心的位置,该区充满娱乐氛围,但是新宿的西口和东口两个地区却给人以完全不一样的印象。以都厅为首,新宿西口是一片高楼林立的商业区;新宿东口则以歌舞伎町为中心发展成了亚洲最大最繁华的娱乐一条街。在针对新宿区单身居住者的调查中,70%的居住者表示愿意继续居住在这里,因为新宿区的生活十分便利,从衣食住行到医疗、娱乐,该区都具备各项完善设施。
新宿区可利用的电车线路众多,如电车、地下铁、高速BUS等,是东京都的交通枢纽。新宿到神奈川、埼玉、千叶方向的交通也十分便利。
东京奥运会时,外国游客数量势必会成倍增长。新宿区作为东京旅游的主要住宿地之一,民宿的需求将会十分大。同时,新宿区还有早稻田大学、法政大学、东京医科大学、工学院大学等知名高等学府。特别是早稻田大学在2016年时的在读学生规模就已位列日本国内第2位。除民宿外,新宿区单身居住者众多,一些针对学生和单身居住者的中古小户型公寓投资也非常抢手。
图片总览
公寓外观

公寓室内
.png)
公寓室内
.png)
公寓户型
