详细情报
价格:47,800万日元(2025年1月14日前有效)
约合:2,229万人民币(2025年1月14日前有效)
位置:东京都涩谷区南平台町19-9
土地权利:永久产权
现状:空室
建筑年代:2005年7月
总户数:20戸
构造:钢筋混凝土造地上5层
楼层:4层
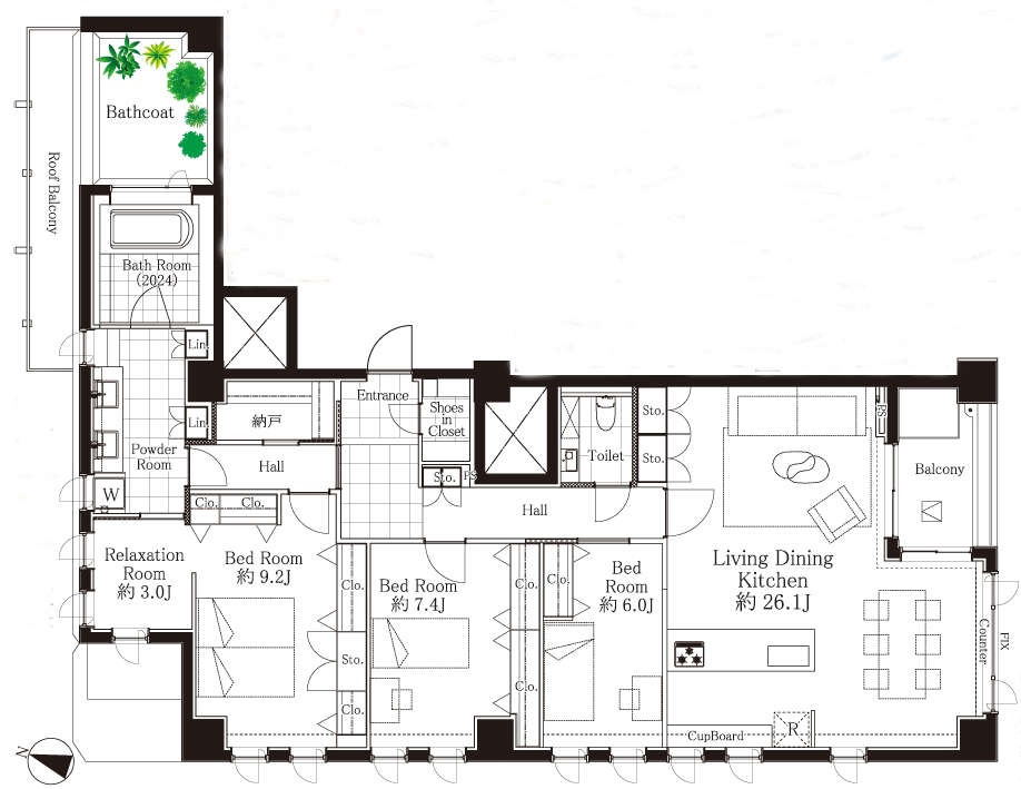
房产户型:3室1厅
使用面积:135.19m²
阳台面积:26.38㎡
管理费:46,830日元/月
修缮费:45,200日元/月
交通:①JR山手线、埼京线【涩谷】站
②东急东横线【代官山】站
③京王井の頭线【神泉】站
推荐理由
涩谷区南平大町是东京最佳住宅区之一,这里居住着许多政商人物和名人,大使馆林立。 Lefon Nanpeidai 位于市中心,却享有宁静的理想环境。公寓楼距离JR涩谷站和东急东横线代官山站很近,这两个车站都是东京都内非常方便和受欢迎的车站。
Lefon Nanpeidai是一座低层豪华公寓,拥有良好舒适的居住环境和居住条件。公寓楼建于2005年7月,三侧面向道路,阳光充足,公共区域宽敞,为住户营造出了一个轻松的空间。
地理位置
南平台位于涩谷246(玉川街)对面的道玄坂对面,毗邻代官山。这里是一个有地位感的区域,大使馆和优雅的豪华公寓鳞次栉比。同时这里办公楼林立,再开发也正在进行,虽然是高级住宅区,但有着与代官山、松涛不同的氛围,南平台的魅力只有懂行的人才知道。
进入南平台后面的道路,映入眼帘的是使馆的异域风情和一排排精美的宅邸,形成了一种独特的城镇景观,并与前面大型商务设施的豪华感和谐地融为一体。另外这里距离代官山地区很近,西乡山公园也在附近。虽然南平台是一个高档住宅区,但根据您的需求,这里也有着各种各样的房产,例如旧公寓和新现代公寓,而且在同一地区也有一些房产非常著名,但价格却很便宜。可以说,南平台比著名的代官山更实惠也很有吸引力。
根据您想要代官山的奢华还是涩谷的喧嚣,南平台可以提供完全不同的生活方式。 无论您是平日在涩谷的酒吧玩乐,还是周末在代官山的咖啡馆放松身心,这里都是您可以通过多种方式享受乐趣的地区。

涩谷区:涩谷区位于东京23区的西南部。涩谷区是东京一个富有个性的行政区,商业活动兴旺,尤其体现在涩谷车站忠犬八公出口处。著名的百货店、时装专卖店、饮食店、咖啡店、游技设施、风俗设施等密集如云,是与新宿同样被列为“24小时不眠之街”的城区。拥有“年轻人之街”之美称,使涩谷成为面向日本国内外各种流行的发祥地。
区内的松涛、広尾、代官山是人尽皆知的高级住宅地区。涩谷区的地价根据地区不同地价差异悬殊,便利性比较高又比较时尚的涩谷、原宿、代代木车站周围的地价非常高。区内拥有青山学院,津田塾、聖心女子大等大学,针对学生群体的租赁需求十分稳定。涩谷区的单身生活者和没有孩子的夫妇在住者大幅增加,这两种群体大约占区内人口的约80%。因此,中古小户型公寓需求十分旺盛。涩谷区的的地价根据地区差异十分明显,最高价与最低价相差23倍。区内的房屋出租价格与土地价格相互平衡。
图片总览
公寓外观

公寓露台
.png)
公寓户型
.png)
公寓位置
.png)