“天王洲アイル”即天王洲岛(てんのうずアイル),是位于日本东京都品川区东品川的临海再开发街区。自上世纪90年代以来,面积达22公顷的天王洲岛是日本民间最大规模的都市开发案。近年来随着办公大楼、高层公寓及高级塔楼等的不断兴建,这里也成为生活配套非常成熟的街区。以海景为卖点,不但聚集了众多餐厅、剧场、旅馆等商业设施,还是热门的拍摄取景地及网红打卡地。

从“天王洲アイル”车站到东京各地都很方便,距东京站仅10分钟、距东银座站仅8分钟、距六本木站11分钟、距滨松町站5分钟。从这里仅需10分钟即可直达羽田空港,可以说交通非常便利了。
.png)
如果住在这样交通便利的高级公寓中,每天可以眺望海景,将会是怎样的享受呢?本期的好房推荐就来介绍尽享无敌海景的奢华公寓——品川イーストシティタワー(SHINAGAWA EAST CITY TOWER)的典藏户型,属于住友不动产的高级塔楼,品质有所保证。项目在品川站1.3公里生活圈内,有两条线路可以利用,距“天王洲アイル”车站步行仅5、6分钟的路程,尽享都市便利。
.png)
项目采用了免震技术,地上共有26层,共计363户。一层设有可欣赏景观的大堂、玻璃走廊及步行道等,高层还设有可眺望景观的健身房、派对房、儿童乐园及客房等公共空间。
.png)
项目所在地环境优美,清粼的水面上往来的游艇,让人感觉生活在度假村一样的高级社区。无论晴天或落日,景色美不胜收。项目一层为面积宽敞、装修豪华的接待大堂,及玻璃走廊,不但可以在如酒店大堂一般环境接待朋友,也可以在舒适的环境中欣赏玻璃墙外的美景。
.png)

在顶层的典藏公寓中眺望美景,不同季节、不同时间段所呈现出的景观也不尽相同,城市海景尽收眼底。亲自品鉴无敌海景所带来的震撼感无以言表,也是项目最大的卖点。
.png)

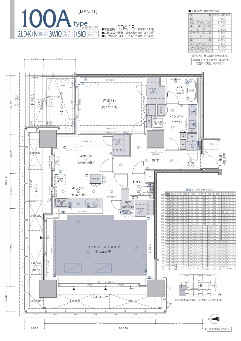
不但窗外风景独好,室内格局更显奢华。2LDK的户型(2LDK+N+3WIC+SIC),专有面积达104.18㎡,阳台面积为34.45㎡,露台面积为7.41㎡。起居室的面积是22.8帖(约37㎡),主卧面积是10.5帖(约17㎡)、次卧面积是6帖(约10㎡)、厨房面积是4.1帖(约6.6平方米)。
.png)
这套精装公寓的售价为1亿8千万日元(约合1千万人民币),送全套家具家电,可拎包入住,性价比超高。景色优美、环境宜人、出行方便、生活便利,资产的保值、增值潜力巨大,租金收益可观,更是彰显业主的身份地位,自住、投资两相宜。



.jpg)
.jpg)

.jpg)
.jpg)

.jpg)

.jpg)
.jpg)
.jpg)
.jpg)

.jpg)

.jpg)
.jpg)
室外的无敌海景,以及室内奢华装修,只有亲临现场才能感受到这套典藏公寓的魅力与价值。待售席位稀有、欢迎预约品鉴!