在东京的练马区的住宅区中,隐匿了一栋带院子的一户建。虽然是二手房,但原本就是一处建筑讲究的传统日式一户建。现在在设计师的精心设计下,老房子又焕发了青春,历史与现代、传统与时尚相结合,既保留了老宅子的风韵,又更符合现代人的艺术审美,院子也在设计师的重新布局下,更体现出和式建筑的静谧之美。处于闹市的安静住宅区,可以说是难以寻觅的宝藏级一户建,其自身价值更如艺术品般值得收藏。

土地篇
好地皮也需要懂行的人才能慧眼识珠,像这块土地,初看图纸,发现土地妥妥的是一块“旗杆地”,顾名思义就是从干道上不能直接回家,需要走一段私道才可以。通常来说,旗杆地在日本人眼中“不受待见”,主要是因为按照现在的建筑基本法,大部分的旗杆地属于“再建不可”的地块,也就是如果现有的房子没有了的时候,是不可以重新建新房的。所以很多人一看图纸就放弃了,熟不知并不是所有旗杆地都不能重建房屋,符合规定的旗杆地依然和普通的地块一样可以拆房重建。

建筑基准法设有“接道义务”,接道义务是指“与宽度4m以上的道路相连接的道路必须在2m以上”。图纸上的“旗杆”部分也就是连接道路宽4m,因此根据此建筑基准法规定,是符合“接道义务”的土地。不仅如此,由于宽幅达4m,所以不仅可以通行,更可以前后停2辆车,要知道在东京能找到有2个停车位的一户建实属不易。

这块地的“旗杆尾”连接着住宅区内的主干道,而非其他的私道,风水上也是留足了“气口”,所以出人方便,也不会觉得“憋屈”。主干道的另一侧是小学校的操场,视野通透、无遮挡。
所谓“天圆地方”,在儒家文化圈里,大家还是比较喜欢规整、方正的地块。如图所示,这块土地“旗帜”并不是规规矩矩的四边形。不过在设计师的精心设计下,利用房子的墙壁和院子的围墙之间由宽变窄的变化,通过木头铺设的步行道和院墙边种植的竹子,利用“近大远小”的透视关系,营造出“曲径通幽处”的意境,这样也缓解了“斜边”在视觉效果上的不适感。

另外,虽然“旗杆地”不够规整,但其实也有很多好处。
比如喜欢安静、注重隐私的人大多会喜欢这种地,隐私有所保护且让人感到“安心”。
这种不规则地块被投资人看作宝地,因为不规则不平整所以在购买时,价格相对周边方正规则的地块稍低一些,就连固定资产税评估额都会相应减少,而且丝毫不会影响居住体验,即使出租的话也不影响租金水平,租金回报率相对较高。

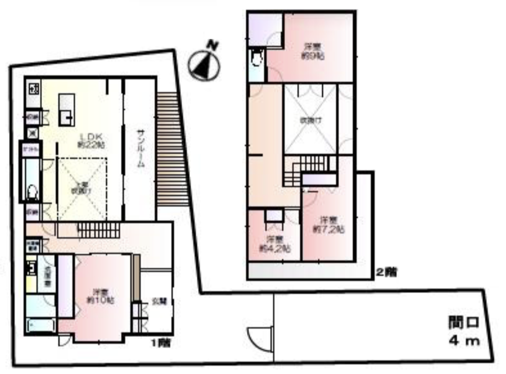
这块土地的面积接近300平方米,步行至车站仅需10分钟左右,而且有两条线路可以利用。离车站如此之近的地方,还能找到如此大面积的土地,以及自带院子的物件,是非常稀少的。
如此看来,从地块选择方面,这块地的优点较多,房源比较稀有。即使不考虑房屋价值,仅是土地部分就已经很值得投资了。更何况是拥有院子和充满设计感的大宅子呢?