东京都港区的六本木地区是富人们喜欢居住的地区,代表着身份的象征,颇具人气。
.jpg)
坐落在六本木的“THE ROPPONGI TOKYO”超高层塔楼位置优越,距六本木车站步行仅需3分钟。物业为业主们提供优质的“高级服务”,让每位住户都能感觉到如“俱乐部成员”般的尊贵感。
.jpg)
项目于2011年11月竣工,为钢筋混凝土造地上39层、地下1层,制震构造符合新抗震标准。总户数611户的大规模塔楼,引以为傲的天空休息室和客房等公共区域由著名设计师监造,物业提供24小时酒店式服务,一层配备超市、花店等店铺,为业主提供各种生活便捷的服务,满足业主日常生活。同时楼内配套各种最新型号的高规格设备设施。无论在哪一方面,都希望超越高级塔楼所承载的居住构想。
.jpg)
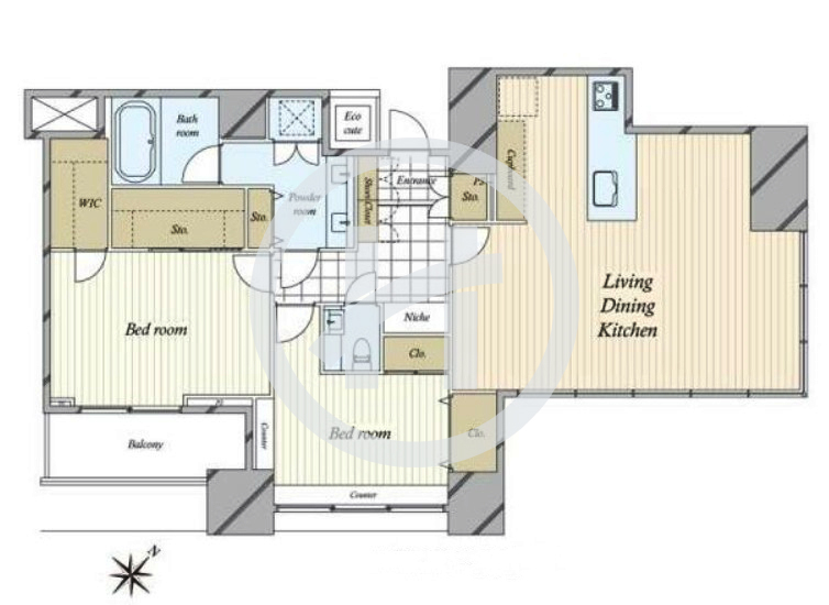
物件是位于38层次顶层的2室1厅户型,面积近100平方米,居住空间宽敞,户型合理。客餐厅2面采光的全景窗,视野开阔,城市美景尽收眼底。与客餐厅一体开放式厨房,设有照明、空调、地暖,丰富的收纳,有可步入式衣帽间,2个洗脸池的洗面台,让身心得到放松的卫浴设备,高品质的居住空间。

2022年4月,物件完成了室内重装工程,厨房配备洗碗机及净水器,浴室有干燥功能、浴缸可再加热,马桶、洗面台等重新更换,室内门窗、地板、壁纸等重新更换,照明设备也都是全新的,并已完成全屋深度消毒保洁等,购买后可立即入住。
项目信息
地址:东京都港区六本木3
价格:3亿9,800万日元
约合:1,942万人民币
房产面积:98.31㎡
阳台面积:4.58㎡
总户数:611户
房产户型:2室1厅
建筑年代:2011年11月
建筑结构:钢筋混凝土造39层付地下1层
所在层:38层
管理费:40,690日元/月
修缮费:10,660日元/月
用途地域:第二种住居地域
土地权利:永久产权
交通:①东京メトロ日比谷线【六本木】站徒步3分钟
②都营大江户线【六本木】站徒步3分钟
③东京メトロ南北线【六本木一丁目】站徒步7分钟

.jpg)
.jpg)
.jpg)
.jpg)
.jpg)

.jpg)
.jpg)
.jpg)
.jpg)
.jpg)
.jpg)

.jpg)
.jpg)
.jpg)
.jpg)

.jpg)
.jpg)
.jpg)
.jpg)
.jpg)
.jpg)
.jpg)

.jpg)
.jpg)
如果您也对日本房产投资感兴趣,或想了解更多日本资讯,欢迎联系我们。