| 地址 | 东京都江东区门前仲町1 | ||
| 价格 | 人民币:2134万 | 租金回报 | 预计4.50% |
| 建筑年代 | 2020年8月 | 建筑结构 | 钢筋混凝土造 |
| 实际面积 | 315.70㎡ | 土地面积 | 78.10㎡ |
| 阳台面积 | 车库面积 | ||
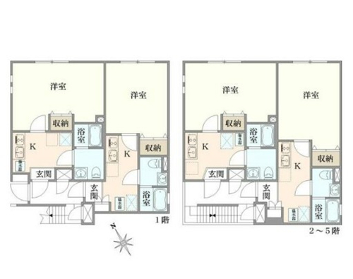
| 总户数 | 10户 | 所在层 | 1-5 |
| 房型 | 1室 | 朝向 | |
| 租赁情况 | 租金 | 约15,084,000日元/年/满室 | |
| 管理费 | 修缮费 | ||
| 建蔽率 | 80%(100%) | 容积率 | 400% |
| 用途地域 | 商业地域 | 土地权利 | 永久产权 |
| 交通 | ◇东京メトロ东西线【门前仲町】站徒步2分钟; ◇都营大江户线【门前仲町】站徒步2分钟 | ||
2020年8月新建的整栋投资公寓,永久产权,符合新抗震标准。位于东京都江东区,2条线路可以利用,距最近【门前仲町】站徒步均2分钟,交通,生活便利性优越的地理位置,周边距全家便利店徒步1分钟,赤札堂超市徒步2分钟,オオゼキ超市徒步5分钟,银行徒步2分钟,邮局徒步5分钟。物件是人气的支持loT的公寓,配备了监视器,自动锁,可拨号式邮箱,宅配快递箱。钢筋混凝土造5层,全10户,1室,室内面积25.50㎡~27.36㎡不等,采光通风均良好,可视对讲机及玄关双重锁,确保安全,全室标准设备、有很高收纳力的鞋柜,索尼制loT对应多功能照明,IH厨具,空调,卫浴独立,浴室烘干器,温水洗净马桶,高速Wi-Fi,具有隔音效果的地板等,生活便利舒适。另外,物件可以申请日本银行贷款,首付4-5成,贷款利率2.9%,贷款周期25年。撬动杠杆不但可以增加收益,还降低了投资风险!欢迎咨询。
1. 地理与基本信息:江东区位于东京都东部,面朝东京湾,北邻墨田区,东接江户川区,南靠中央区,西毗港区。面积约40.16平方公里,2023年人口约52万。近年来人口增长显著,年轻家庭数量增多。这里曾是工业区,如今正推进居住环境改善和新商业区建设。
2. 主要区域及其特色
• 门前仲町(Monzen-Nakachō):富冈八幡宫是历史悠久的神社,以深川八幡祭(深川祭)闻名。深川不动堂正式名称为“永代寺”,因护摩祈愿而知名。
• 木场(Kiba):木场公园位于隅田川沿岸,面积广阔,四季风景各异。木场广场汇集了商业和公共设施。
• 清澄白河(Kiyosumi Shirakawa):清澄庭园是江户时代留存的庭园,池塘中漂浮的石头景色优美。蓝瓶咖啡的日本1号店坐落于此,使其声名远扬。
• 丰洲(Toyosu):丰洲市场由筑地市场搬迁而来,可参观游览和品尝美食。丰洲公园建于填海土地上,面积广大,还有活动场地。
• 有明(Ariake):东京国际展示场是日本最大的国际展览场地,举办过东京车展等活动。有明网球之森公园运动设施完备,适合网球、慢跑等运动。
• 台场(Odaiba):部分区域属于江东区,是极受欢迎的观光地。台场购物广场是商业设施,标志性建筑是实物大小的高达立像。台场海滨公园可悠闲欣赏彩虹大桥。
3. 文化与历史:江东区在江户时代被称为“深川”,凭借水运和工业得以发展,至今仍保留着浓厚的历史气息。深川江户资料馆能让人们体验江户时代的生活与文化。
4. 观光景点:东京晴空塔横跨墨田区,但从江东区前往也很方便。teamLab无界美术馆曾位于台场(目前在搬迁中)。船之科学馆可进行与船相关的科学展示和模拟器体验。
5. 交通出行:铁路有东京地铁有乐町线、半藏门线,都营地铁大江户线、新宿线、临海线、百合海鸥号等。主要车站有门前仲町站、木场站、清澄白河站、丰洲站、有明站、台场海滨公园站等。公交线路方便区内及前往邻近区域的出行。
6. 生活环境:教育资源丰富,从幼儿园到高中教育设施齐全,还有东京海洋大学。医疗设施完备,有圣路加国际医院、都立墨东医院等。商业发达,有永旺、拉拉宝都丰洲等大型商业设施,日常生活便利。
7. 活动与节庆:深川祭每年8月举行,是江户三大祭之一。丰洲市场祭可感受市场的热闹氛围。
8. 现代的江东区:江东区再开发活跃,丰洲和有明正在建设新的办公楼和住宅。受奥运会影响,体育设施和公共设施不断完善,生活环境得到提升。
总结:江东区面朝东京湾,历史与新开发区域并存。对游客来说,台场和丰洲市场颇具吸引力;对当地居民而言,这里居住环境舒适。交通便利,商业设施和公园完备,是生活品质较高的区域。如果您想了解特定区域或观光景点的更多信息,欢迎告知。
您会在一个工作日内得到置业顾问的联络




