| 地址 | 东京都杉並区 | ||
| 价格 | 人民币:683万 | 租金回报 | 6% |
| 建筑年代 | 1985年6月 | 建筑结构 | 铁骨造 |
| 实际面积 | 308.70㎡ | 土地面积 | 105.40㎡ |
| 阳台面积 | / | 车库面积 | / |
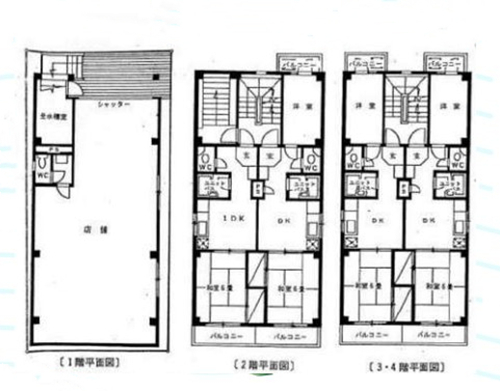
| 总户数 | 7户 | 所在层 | 1-4层 |
| 房型 | 住居、事务所(店铺) | 朝向 | / |
| 租赁情况 | 目前满室出租 | 租金 | 约8,496,000日元/年 |
| 管理费 | / | 修缮费 | / |
| 建蔽率 | 80% | 容积率 | 300% |
| 用途地域 | 近邻商业地域 | 土地权利 | 永久产权 |
| 交通 | ①京王井の頭线【永福町】站 ②东京メトロ南北线【方南町】站 ③京王线【明大前】站 | ||
1985年6月建成,永久产权。位于东京都杉並区,京王井の頭线【永福町】站,东京メトロ南北线【方南町】站,京王线【明大前】站3线3站可以利用,通往新宿、涩谷便利。大楼北侧宽约7m道路,周边有便利店、药妆店、超市等日常购物设施,铁骨造4层,2025年5月实施了屋顶防水工事,总户7户,其中事务所(店铺)1户,住居6户,住居部分4个房间完成户型翻新,目前满室出租中,详情欢迎咨询。海外客户可以申请日本银行贷款购房,目前有两种方式:1.需要在日本设立公司,以法人名义购买,贷款额度约60-70%、还款周期25-35年、贷款利率1.5%起。2.个人名义购买,海外客户可以申请日本个人抵押贷款购房,不需要设立公司,贷款额度约50-60%,还款周期15-25年,贷款年龄65岁以内,贷款额度不能低于2000万日元,贷款利率2.7%起。
1. 地理与基本信息:杉并区位于东京都西北部,北邻练马区,东接中野区,南靠涩谷区,西毗三鹰市。面积约34.06平方公里,2023年人口约57万,作为宁静的住宅区深受欢迎。这里落语、电影等文化活动丰富,被誉为“弥漫着文化气息的区域”。
2. 主要区域及其特色
• 高圆寺(Kōenji):高圆寺站有JR中央线和总武线经过,商业区域繁华热闹。高圆寺阿波舞是每年夏天举办的日本最大规模的盆踊活动。这里的个性商店街分布着古着店、咖啡馆、杂货店等,能让人感受到下町风情。
• 阿佐谷(Asagaya):阿佐谷站有中央线和东京地铁丸之内线通过。阿佐谷动漫街汇聚了众多动漫相关店铺。阿佐谷珠算纪念馆可让人了解算盘的历史。
• 荻洼(Ogikubo):荻洼站是中央线和丸之内线的站点,商业设施完备。荻洼银座是深受当地居民喜爱的商店街。桃園川保留了自然景观,是散步的绝佳去处。
• 和田(Wada):善福寺公园面积广阔,内有鸟类园和美术馆,可尽情享受自然之美。
• 永福町(Eifukuchō):永福町站有京王井之头线经过,是宁静的住宅区。
3. 文化与历史:杉并区在江户时代曾是农村地区,明治之后逐渐走向城市化。杉并区立历史民俗资料馆可以让人们了解该区的历史和文化。
4. 观光景点:丸山商店街是位于高圆寺一角的复古商店街。善福寺川绿地是自然丰富的散步路线。杉并区立美术馆展示当地的艺术作品。
5. 交通出行:铁路有JR中央线、总武线、东京地铁丸之内线、京王井之头线等。主要车站有高圆寺站、阿佐谷站、荻洼站、永福町站等。区内出行乘坐巴士很方便,还有社区巴士“杉並区コミュニティバスすぎ丸”运行。
6. 生活环境:教育资源丰富,从幼儿园到高中的教育机构齐全,早稻田大学部分校区也在此。医疗设施完备,有国际医疗福祉大学三田医院、杉并区立综合医院等。商业方面,各区域都有商店街和大型商业设施,生活便利性高。
7. 活动与节庆:高圆寺阿波舞是日本最大规模的盆踊活动,吸引了众多国内外游客。杉并区民节是当地居民相聚的大型活动。
8. 现代的杉并区:杉并区作为住宅区备受青睐,尤其受到有子女家庭的支持。文化活动丰富,落语、电影、音乐等活动频繁举办。
总结:杉并区是自然与城市功能和谐平衡的区域,充满文化气息。高圆寺和阿佐谷的下町风情、荻洼的宁静氛围等,展现出多样的面貌,无论是居住还是游览都极具吸引力。如果您想了解特定区域或观光景点的更多信息,欢迎告知。
您会在一个工作日内得到置业顾问的联络




