| 地址 | 东京都中央区日本桥 | ||
| 价格 | 人民币:7520万 | 租金回报 | 4.4%(预计) |
| 建筑年代 | 2019年3月 | 建筑结构 | 钢筋混凝土造 |
| 实际面积 | 934.13㎡ | 土地面积 | 162.63㎡ |
| 阳台面积 | 车库面积 | ||
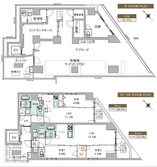
| 总户数 | 19户 | 所在层 | 1-10 |
| 房型 | 1室1厅× 9户 2室1厅×9户 店铺×1户 | 朝向 | |
| 租赁情况 | 租金 | 约50,926,680日元/年/满室 | |
| 管理费 | 修缮费 | ||
| 建蔽率 | 80% | 容积率 | 600% |
| 用途地域 | 商业地域 | 土地权利 | 永久产权 |
| 交通 | 都营浅草线东日本桥站徒步2分钟; 总武线馬喰町站徒步3分钟; 都营新宿线馬喰横山站徒步3分钟; 中央总武线/都营浅草线浅草桥站徒步8分钟; 日比谷线小伝馬町站徒步10分钟 | ||
2019年3月新建成的整栋高级公寓,永久产权,符合新抗震标准。位于东京都中央区,交通便利,6线路5站可以利用,距最近车站东日本桥站徒步2分钟,其他车站徒步均10分钟内可到达,通往浅草站直通4分钟,新桥站直通8分钟,东京站直通14分钟,新宿站20分钟,池袋站27分钟,地理位置优越。公寓坐落于拥有着从江户时代经营的老店铺和大型商业设施的传统文化街区,周边公园,绿地郁郁葱葱,环境优美。购物方便,罗森,7-11,全家等多家便利店,多家超市均徒步5分钟内便可到达,生活便利。公寓钢筋混凝土造地上10层,全19户,其中1层店铺,面积11.17㎡,2-10层住居,1室1厅9户,面积40.94㎡,2室1厅9户,面积53.18㎡,室内采光,通风均良好,生活设施齐全,配有自动锁,快递箱,全户空调,照明器具等,满室出租的情况,年租金约50,926,680日元,表面回报率达4.4%,另外,物件可以申请日本银行贷款,首付4-5成,贷款利率2.9%,贷款周期25年。撬动杠杆不但可以增加收益,还降低了投资风险!
1. 地理与基本信息:中央区地处东京都东部,隔隅田川与江东区、墨田区相望,南邻港区,北接文京区和千代田区。面积约10.21平方公里,2023年人口约16万。由于其浓厚的商业区属性,白天人口数量远多于夜间。这里不仅是日本经济活动的核心,还拥有众多历史遗迹,是备受欢迎的观光胜地。
2. 主要区域及其特色
• 银座(Ginza):汇聚了全球知名的高端品牌店。银座三越、松屋银座、银座六本木等百货公司坐落于此。歌舞伎座是体验日本传统文化的剧场。
• 日本桥(Nihonbashi):日本桥是一座历史悠久的桥梁,被誉为“日本道路的起点”。三越本店是日本最古老的百货商店之一。COREDO室町是利用历史建筑改造的商业设施。
• 京桥(Kyōbashi):东京站是日本铁路的枢纽,众多新干线和普通铁路线在此始发和终到。丸之内大厦是集办公与商业设施于一体的综合建筑。
• 筑地(Tsukiji):筑地市场曾是世界最大的批发市场,现虽已迁至丰洲,但外市场仍保留。筑地场外市场可品尝到新鲜的海产品和寿司。
• 月岛(Tsukishima):月岛文字烧街汇聚了提供文字烧和御好烧的众多餐饮店。
• 浜离宫恩赐庭园(Hama-rikyū Gardens):作为江户时代的大名庭园,可在此欣赏自然与历史的交融之美。
3. 文化与历史:中央区自江户时代起就是商业中心,尤其是日本桥,曾是江户五街道的起点。江户东京博物馆(位于墨田区,但从中央区前往便利)可让人了解从江户时代到现代的东京历史。
4. 观光景点:皇居外苑是皇居周边的观光地,二重桥和皇居东御苑颇受欢迎。三菱一号馆美术馆展示近代美术作品。COREDO室町露台是传统与现代融合的商业设施。
5. 交通出行:东京站汇集了新干线、JR东日本、东京地铁、都营地铁等众多线路。主要车站有东京站、银座站、日本桥站、筑地市场站等。区内有方便出行和观光的公交线路。
6. 生活环境:中央区的中小学数量较少,部分居民会选择周边区的学校。医疗设施完备,有圣路加国际医院、东京慈惠会医科大学附属医院等大型医疗机构。商业发达,银座和日本桥的购物选择极为丰富。
7. 活动与节庆:银座夏日祭是每年夏天举办的当地节日。日本桥街道庆典是由商店街联合举办的活动。
8. 现代的中央区:中央区在保持商业中心地位的同时,不断提升作为观光地的吸引力。高层建筑和再开发项目持续推进,丸之内和日本桥地区的现代化进程加快。国际化色彩浓厚,吸引了大量外国游客和商务人士。
总结:中央区是东京历史与经济紧密相连的独特区域,无论是作为观光地还是商业区都极具魅力,是东京传统与现代交汇的代表。这里既适合居住也适合观光,但物价和房租相对较高。如果您想了解特定区域或观光景点的更多信息,欢迎告知。
您会在一个工作日内得到置业顾问的联络




