| 地址 | 东京都世田谷区宫坂1 | ||
| 价格 | 人民币:2455万 | 租金回报 | 4.50%(预计) |
| 建筑年代 | 预计2019年11月 | 建筑结构 | 钢筋混凝土造 |
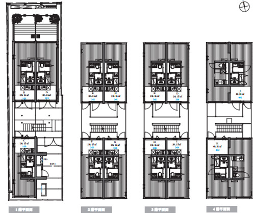
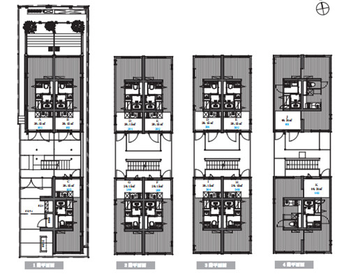
| 实际面积 | 348.82㎡/栋 | 土地面积 | 167.98㎡/169.46㎡ |
| 阳台面积 | 车库面积 | ||
| 总户数 | 13户/栋 | 所在层 | 1-4 |
| 房型 | 1室 | 朝向 | |
| 租赁情况 | 租金 | 约16,740,000日元/年/栋 | |
| 管理费 | 修缮费 | ||
| 建蔽率 | 60%/50% | 容积率 | 200%/100% |
| 用途地域 | 第1种中高层住居专用地域/第1种低层住居专用地域 | 土地权利 | 永久产权 |
| 交通 | 东急世田谷线宫の坂站徒步3分钟; 小田急线经堂站徒步9分钟 | ||
预计2019年11月建成的2栋公寓,永久产权,符合新抗震标准。位于东京都世田谷区,2线2站可以利用,距最近车站宫の坂站徒步3分钟,交通便利,通往新宿站直通11分钟,三轩茶屋站直通11分钟,涩谷站10分钟,东京站24分钟,大手町站26分钟。公寓处于闲静的住宅区,周边环境安静舒适,生活购物便利,室内大面积的窗户设计以及共用走廊吹拔设计,增加了居住空间的明亮度及宽敞度,共2栋,各13户,全1室,面积20.15㎡/40.31㎡不等,1层住户有专用庭,室内生活配套设施齐全,另外,物件可以申请日本银行贷款,首付4-5成,贷款利率2.9%,贷款周期25年。撬动杠杆不但可以增加收益,还降低了投资风险!
1. 地理与基本信息:世田谷区地处东京都西南部,北邻涩谷区,东接目黑区,南靠大田区,西毗调布市和狛江市。面积约58.05平方公里,2023年人口约93万,是东京都内人口最多的区。这里广阔的自然环境与城市功能和谐共存,既方便前往市中心,又拥有丰富的自然资源,极具吸引力。
2. 主要区域及其特色
• 二子玉川(Futako-Tamagawa):二子玉川RISE是融合了高层建筑和购物中心的新地标。多摩川河畔绿树成荫,是骑行和野餐的绝佳场所。
• 下北泽(Shimokitazawa):作为年轻人文化的发源地,这里有许多个性十足的咖啡馆、精品店和剧场,Live House也很丰富。下北泽南口商店街布满古着店和杂货店,氛围独特。
• 成城(Seijō):以高级住宅区闻名,成城学园前站周边汇聚了高级超市和精品店。成城学园是一所私立学校,其周边也以文教地区著称。
• 三轩茶屋(Sangenjaya):宁静氛围的商店街与新商业设施交错分布,咖啡馆文化盛行。胡萝卜塔是地标性建筑,还设有观景餐厅。
• 用贺(Yōga):马术公园是可以享受马术和骑马的场所,绿意盎然,假日里人潮涌动。
• 玉川(Tamagawa):玉川高岛屋是大型百货公司,购物便利。玉川区民会馆是开展文化活动的重要场所。
3. 文化与历史:世田谷区历史上曾是农村地区,明治以后逐渐走向城市化。世田谷区立乡土资料馆可以让人们了解该区的历史和文化。
4. 观光景点:世田谷美术馆是自然与艺术和谐相融的美术馆,是美术爱好者不容错过的地方。砧公园面积广阔,还设有玫瑰园和美术馆。等等力溪谷距离市中心较近,自然环境优美,适合散步和徒步旅行。
5. 交通出行:铁路有小田急小田原线、东急田园都市线、东急世田谷线、东急大井町线等。主要车站有二子玉川站、下北泽站、成城学园前站、三轩茶屋站、用贺站等。区内出行乘坐巴士很方便,尤其是世田谷区的社区巴士“せたまる”被广泛使用。
6. 生活环境:教育资源丰富,从幼儿园到大学的教育机构众多,如庆应义塾大学、成城大学等。医疗设施完备,有世田谷区立综合医院、东京医疗中心等。商业方面,区内各处分布着商店街和大型商业设施,生活便利性高。
7. 活动与节庆:下北泽电影节主要展映独立电影。世田谷手工制作展展示并销售当地工匠和创作者的作品。
8. 现代的世田谷区:世田谷区作为住宅区备受欢迎,尤其受到有子女家庭的青睐。再开发不断推进,新的住宅和商业设施逐渐增多,同时也保留了注重自然环境的区域。
总结:世田谷区在东京都内面积广阔,生活品质高。自然与城市融合的环境,不仅交通便利,文化活动也丰富多彩。从下北泽这样的年轻人文化发源地,到二子玉川这样的新兴商业区,充满多样性。如果您想了解特定区域或观光景点的更多信息,欢迎告知。
您会在一个工作日内得到置业顾问的联络




