| 地址 | 东京都三鹰市井口 | ||
| 价格 | 人民币:1073万 | 租金回报 | 6.2%(预计) |
| 建筑年代 | 预计2020年2月 | 建筑结构 | |
| 实际面积 | 228.78㎡ | 土地面积 | 136.74㎡ |
| 阳台面积 | 车库面积 | ||
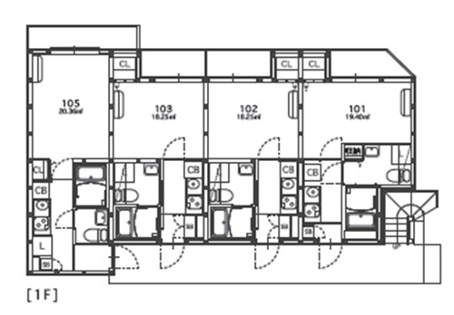
| 总户数 | 12户 | 所在层 | 1-3 |
| 房型 | 1室 | 朝向 | |
| 租赁情况 | 租金 | 约10,080,000日元/年 | |
| 管理费 | 修缮费 | ||
| 建蔽率 | 70% | 容积率 | 200% |
| 用途地域 | 第1层中高层住居专用地域 | 土地权利 | 永久产权 |
| 交通 | JR中央线武蔵境站徒步9分钟 | ||
预计2020年2月竣工的整栋公寓,永久产权,位于东京都三鹰市, 这里因著名的三鹰之森吉トカ美术馆而广为大家熟知。交通便捷,距最近车站武蔵境站徒步9分钟,车站周边伊藤洋华堂商场,多家学府等生活设施齐全,生活便利。公寓室内采光通风均良好,配有可视对讲机,独立洗面台,卫浴分离,空调,温水洗净功能马桶,收纳等,年租金约10,080,000日元,表面回报率达6.2%,另外,物件可以申请日本银行贷款,首付4-5成,贷款利率2.9%,贷款周期25年。撬动杠杆不但可以增加收益,还降低了投资风险!
1. 地理与基本信息:三鹰市地处东京都西部的多摩地区,北邻武藏野市,东接杉并区,南靠世田谷区,西与小金井市接壤。面积约16.35平方公里,2023年人口约19万,作为宁静的住宅区颇受欢迎。这里绿树成荫,井之头公园尤为出名,同时作为文教区域,拥有众多教育机构。
2. 主要区域及其特色
• 三鹰站周边:三鹰站是JR中央线和京王井之头线的交汇点,是交通枢纽。三鹰CORAL是与车站直接相连的购物中心,生活用品和时尚商品齐全。三鹰台商店街等众多深受当地居民喜爱的商店街在此分布。
• 井之头公园:井之头公园是横跨三鹰市和吉祥寺的大型公园,四季皆可欣赏自然美景,以赏樱胜地闻名。井之头自然文化园是集动物园和植物园为一体的设施,是适合家庭的休闲场所。
• 新川(Shinkawa):是宁静的住宅区,绿树成荫的街景随处可见。
• 大泽(Ōsawa):自然环境优越,是氛围宁静的住宅区。
3. 文化与历史:三鹰市在明治时代被开发,井之头恩赐公园是具有重要历史意义的场所。三鹰市美术馆是介绍当地艺术的场馆。
4. 观光景点:井之头公园是都市中的一片净土,可划船游玩和散步,据说也是动画《龙猫》的取景地。三鹰之森吉卜力美术馆是以吉卜力工作室作品为主题的美术馆,是粉丝必去的景点。井之头恩赐公园是自然与历史和谐相融的公园,还可观赏水鸟。
5. 交通出行:铁路有JR中央线和京王井之头线经过。主要车站是三鹰站。市内出行乘坐巴士很方便,尤其是前往“吉祥寺站”的巴士班次频繁。
6. 生活环境:教育资源丰富,从幼儿园到高中的教育机构完备。三鹰市作为文教区域,有国际基督教大学、东京学艺大学等高校的校区。医疗设施完备,有三鹰市医师会医院、东京医科大学八王子医疗中心(邻近)等。商业方面,三鹰站周边商业设施集中,生活便利性高。
7. 活动与节庆:三鹰阿波舞是每年夏天举办的当地节日,热闹非凡。三鹰市制纪念庆典是庆祝城市历史和文化的活动。
8. 现代的三鹰市:三鹰市是自然与文教和谐相融的城市,井之头公园和吉卜力美术馆是重要的观光资源。作为宁静的住宅区深受欢迎,育儿环境也备受好评。
总结:三鹰市是自然环境优美且充满教育氛围的区域。拥有井之头公园和吉卜力美术馆等观光资源,生活所需设施也很完备。交通便利,前往市中心方便,作为宜居城市获得高度评价。如果您想了解特定区域或观光景点的更多信息,欢迎告知。
您会在一个工作日内得到置业顾问的联络




