| 地址 | 东京都文京区汤岛2 | ||
| 价格 | 人民币:1162万 | 租金回报 | 预计5.5% |
| 建筑年代 | 1991年7月 | 建筑结构 | 铁骨造 |
| 实际面积 | 310.38㎡ | 土地面积 | 91.74㎡ |
| 阳台面积 | 车库面积 | ||
| 总户数 | 所在层 | 1-5 | |
| 房型 | 店铺.共同住宅.仓库.事务所 | 朝向 | |
| 租赁情况 | 空室 | 租金 | 约10,320,000日元/年 |
| 管理费 | 修缮费 | ||
| 建蔽率 | 80 % | 容积率 | 400 % |
| 用途地域 | 近邻商业地域 | 土地权利 | 永久产权 |
| 交通 | ①东京メトロ千代田线【湯島】站徒步8分钟 ②JR中央线【御茶ノ水】站徒步9分钟 | ||
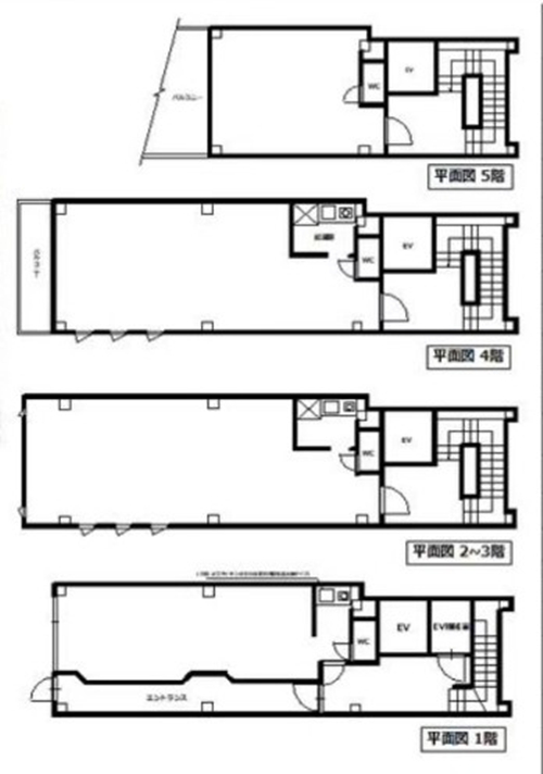
1991年7月建成整栋事务所大楼,永久产权,符合新抗震标准。位于东京都文京区,2线2站可以利用,距最近【湯島】站徒步8分钟,【御茶ノ水】站徒步9分钟,交通便利。汤岛这个区域,因医院相关法人的事务所较多而有名,同时周边还有住宅、公寓,环境十分幽静,治安方面良好。物件铁骨造5层,全房间事务所规格装修,1F32㎡,2F48㎡,3F48㎡,4F38㎡,5F25㎡。另外,物件可以申请日本银行贷款,首付4-5成,贷款利率1.5%~,贷款周期25年。撬动杠杆不但可以增加收益,还降低了投资风险!欢迎咨询。
1. 地理与基本信息:文京区位于东京都北部,北邻丰岛区,东接台东区,南靠千代田区,西毗新宿区。面积约11.29平方公里,2023年人口约23万,是颇受欢迎的宁静住宅区。这里汇聚了众多大学和教育机构,也被称为“文教地区”,且历史遗迹和公园资源丰富。
2. 主要区域及其特色
• 本乡(Hongō):东京大学是日本顶尖学府,部分校区位于文京区。汤岛天满宫供奉着学问之神菅原道真,也是赏梅胜地。
• 小石川(Koishikawa):小石川植物园建于17世纪,是日本最古老的植物园,兼具研究和教育功能。后乐园是留存着江户时代风貌的大名庭园,四季风景各异。
• 大冢(Ōtsuka):这里有热闹的商店街和餐饮店,设有东京地铁丸之内线站点。
• 白山(Hakusan):白山神社历史悠久,深受当地居民喜爱。白山通是商店街,支撑着当地居民的生活。
• 春日(Kasuga):东京巨蛋是职业棒球队“读卖巨人队”的主场,也常举办演唱会和各类活动。后乐园游乐园是东京巨蛋城的一部分,可供游玩娱乐。
3. 文化与历史:文京区自江户时代起就是文人雅士汇聚的宁静之地,曾有许多文化名人在此居住。文京区立博物馆可让人们了解该区的历史和文化。
4. 观光景点:根津神社以杜鹃花闻名,尤其是春季的杜鹃花祭值得一看。六义园是江户时代的名园,作为池泉回游式庭园景色优美。旧岩崎邸庭园曾是三菱财阀创始人岩崎家族的宅邸,现已对公众开放。
5. 交通出行:铁路有东京地铁丸之内线、有乐町线、都营大江户线、东京地铁千代田线等。主要车站有本乡三丁目站、春日站、茗荷谷站、白山站等。区内主要区域公交线路完备。
6. 生活环境:教育资源丰富,从幼儿园到大学的教育机构一应俱全,如东京大学、早稻田大学、御茶水女子大学等。医疗设施完善,有东京大学医学部附属医院、顺天堂大学医学部附属医院等。商业方面,本乡通沿线和大冢的商店街等满足日常生活所需。
7. 活动与节庆:根津杜鹃花祭在每年4月下旬至5月初举行,吸引众多游客。文京区祭是当地居民聚集的大型活动,可体验文化和体育活动。
8. 现代的文京区:文京区教育和文化氛围浓厚,作为居住环境也备受青睐,高级住宅区较多。在再开发过程中,既尊重历史又不断增添新设施。
总结:文京区作为学问和文化的发源地而闻名,环境宁静宜居。这里有众多历史庭园、神社寺庙和教育机构,为生活增添了丰富内涵。另一方面,东京巨蛋周边是娱乐中心,使文京区呈现出多样的面貌。如果您想了解特定区域或观光景点的更多信息,欢迎告知。
您会在一个工作日内得到置业顾问的联络




