| 地址 | 东京都练马区樱台2 | ||
| 价格 | 人民币:622万 | 租金回报 | 预计6.24% |
| 建筑年代 | 2017年9月 | 建筑结构 | 木造 |
| 实际面积 | 127.14㎡ | 土地面积 | 132.56㎡ |
| 阳台面积 | / | 车库面积 | / |
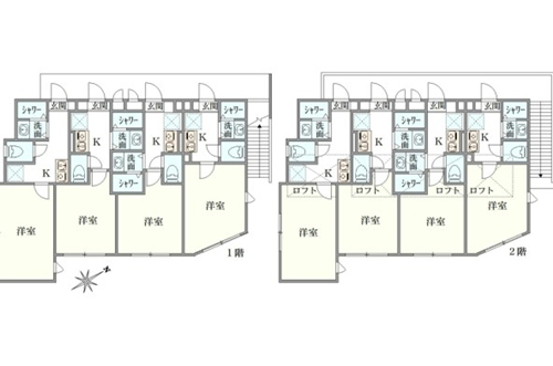
| 总户数 | 8户 | 所在层 | 1-2 |
| 房型 | 1室×4 1室+loft×4 | 朝向 | / |
| 租赁情况 | / | 租金 | 约6,228,000日元/年 |
| 管理费 | / | 修缮费 | / |
| 建蔽率 | 50% | 容积率 | 100% |
| 用途地域 | 第一种低层住居专用地域 | 土地权利 | 永久产权 |
| 交通 | ①东京メトロ有乐町线.副都心线【氷川台】站徒步9分钟 ②西武池袋线【桜台】站徒步10分钟 ③西武有乐町线【新桜台】站徒步11分钟 | ||
2017年9月建成的整栋公寓,永久产权,符合新抗震标准。位于东京都练马区,4线3站可以利用,距东京メトロ有乐町线.副都心线【氷川台】站徒步9分钟,西武池袋线【桜台】站徒步10分钟,西武有乐町线【新桜台】站徒步11分钟。距周边便利店280m,超市540m。公寓设置门禁门,宅配快递箱,可视对讲机。木造2层,每层4户,2F房间附带LOFT,有IH炉灶,空调,冰箱,鞋柜,卫浴独立等生活配套设施。我们协助海外投资客户申请日本银行贷款购房业务,需要在日本设立公司,以法人名义购买,贷款额度约60-70%、还款周期25-35年、贷款利率1.5%起。欢迎咨询。
1. 地理与基本信息:练马区地处东京都西北部,北邻板桥区,东接丰岛区,南靠中野区,西毗杉并区。面积约48.08平方公里,2023年人口约73万,区内有许多宁静的住宅区,深受有子女家庭的喜爱。这里动漫制作公司众多,被认定为“练马动漫基地”。
2. 主要区域及其特色
• 练马站周边:练马站是西武池袋线和东京地铁有乐町线的站点,是区中心地带。练马区役所提供各类行政服务。
• 光丘(Hikarigaoka):光丘公园面积广阔,儿童游乐场和运动设施完备。光丘IMA是大型购物中心,日常生活用品一应俱全。
• 上石神井(Kami-Igusa):上石神井公园自然环境优美,也是赏樱胜地。练马区立美术馆展示当地艺术作品。
• 江古田(Egodaa):早稻田大学部分校区在此,学生街热闹非凡。江古田之森虽规模较小,但能让人感受自然气息。
• 大泉学园(Ōizumi Gakuen):作为动漫圣地,拥有疯房子(Madhouse)和东映动画等工作室。大泉学园榉树通商店街深受当地居民喜爱。
3. 文化与历史:练马区在江户时代是农村地区,明治以后逐渐城市化。练马区立乡土博物馆可以让人们了解该区的历史和文化。
4. 观光景点:练马区立动漫美术馆可让参观者了解动漫历史和制作过程。大泉樱花公园是赏樱名地,春季吸引众多游客前来赏樱。石神井公园是东京都内屈指可数的自然公园,池塘和森林景色优美。
5. 交通出行:铁路有西武池袋线、西武新宿线、东京地铁有乐町线、副都心线、都营大江户线等。主要车站有练马站、光丘站、上石神井站、江古田站、大泉学园站等。区内出行乘坐巴士很方便,还有社区巴士“ぷらっとわん”运行。
6. 生活环境:教育资源丰富,从幼儿园到高中的教育机构齐全,早稻田大学和东京学艺大学的校区也在区内。医疗设施完备,有练马光丘医院、博慈会纪念综合医院等。商业方面,各区域分布着商店街和大型商业设施,生活便利性高。
7. 活动与节庆:练马区民节每年举办,是当地居民相聚的大型活动。大泉学园动漫街祭是庆祝动漫文化的节日。
8. 现代的练马区:练马区是动漫产业的中心地,也确立了作为新文化发源地的地位。自然环境优越,公园和绿地众多,是适合养育子女的区域。
总结:练马区在东京都内是动漫文化扎根深厚的区域,也是历史与自然和谐相融的生活区域。作为住宅区备受欢迎,前往市中心交通也很便利。无论是动漫爱好者还是家庭,练马区都是一个充满魅力的地方。如果您想了解特定区域或观光景点的更多信息,欢迎告知。
您会在一个工作日内得到置业顾问的联络




