| 地址 | 东京都千代田区麹町3 | ||
| 价格 | 人民币:3418万 | 租金回报 | / |
| 建筑年代 | 2019年1月 | 建筑结构 | 钢筋混凝土造 |
| 实际面积 | 155.10㎡ | 土地面积 | / |
| 阳台面积 | 10.27㎡ | 车库面积 | / |
| 总户数 | 83户 | 所在层 | 23层 |
| 房型 | 3室1厅 | 朝向 | / |
| 租赁情况 | 空室 | 租金 | / |
| 管理费 | 92,440日元/月 | 修缮费 | 23,270日元/月 |
| 建蔽率 | / | 容积率 | / |
| 用途地域 | 商业地域 | 土地权利 | 永久产权 |
| 交通 | ①东京メトロ有乐町线【麹町】站徒步1分钟 | ||
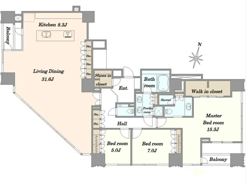
公寓2019年1月建成,永久产权,符合新抗震标准。位于东京都千代田区,距东京メトロ有乐町线【麹町】站徒步1分钟,直接车站。公寓面向新宿大道和麹町学园大道,周边购物有成城石井超市,散步有清水谷公园。物件位于公寓最上层23层,南西东三方角住户,155.10㎡室内面积,2.8m高的顶棚,视野开阔,从主卧室可以眺望皇居及天空树的优美景色,客餐厅设置地暖,大面积的落地窗,天花板内嵌式空调,对面式厨房,主卧有可步入式衣帽间,保温浴缸,带有按摩功能3段切换式淋雨头,2处卫生间,建成以来未入住,先进生活设备,崭新的居住空间。我们协助海外投资客户申请日本银行贷款购房业务,需要在日本设立公司,以法人名义购买,贷款额度约60-70%、还款周期25-35年、贷款利率1.5%起。欢迎咨询。
1. 地理与基本信息:千代田区地处东京都中央,北邻文京区、丰岛区,东接台东区、荒川区,南靠中央区、港区,西毗新宿区。面积约11.66平方公里,2023年人口约6万。作为商业区,白天人口数量远多于夜间。这里是日本政治和经济的中心,皇居、国会议事堂等重要设施集中于此。
2. 主要区域及其特色
• 皇居周边:皇居是日本天皇的居所,皇居东御苑和皇居外苑对公众开放,是著名的观光景点。丸之内林立着历史悠久的办公楼和商业设施,是商业中心。
• 大手町:大手町站有多条地铁线路经过,发展成为办公街区。大手町塔楼是高层大楼,入驻了许多金融和IT企业。
• 有乐町:有乐町站有JR山手线和东京地铁有乐町线经过,商业设施完备。有乐町大楼内可购物和观影。
• 秋叶原:秋叶原站是JR山手线、总武线、东京地铁日比谷线、筑波快线的交汇点,以电器街闻名。电器街汇聚了大量动漫、游戏和电子产品的专卖店。
• 神田:神田站有JR中央线、京滨东北线、山手线等线路经过,也是学生街。神田古书店街是出版业的中心,有许多古书店。
• 二重桥前:东京站是日本的交通枢纽,新干线和众多普通铁路线在此始发和到达,分为丸之内侧和八重洲侧。
3. 文化与历史:千代田区拥有自江户时代以来的悠久历史,皇居更是日本历史和文化的象征。千代田区立日比谷图书文化馆是当地文化活动的重要场所。
4. 观光景点:皇居的二重桥和东御苑深受游客喜爱。靖国神社是祭祀战争中阵亡者的神社。国会议事堂提供参观活动,可了解日本政治中心的风貌。秋叶原作为动漫和电子产品的圣地,吸引着大量游客。
5. 交通出行:千代田区是东京主要铁路网的汇聚地,东京站更是有多条线路经过。主要车站有东京站、有乐町站、秋叶原站、大手町站、神田站等。区内有方便出行和观光的公交线路。
6. 生活环境:千代田区内中小学数量较少,常借助周边区的学校资源。一桥大学的部分校区位于区内。医疗方面,附近有圣路加国际医院、东京医科大学医院等大型医疗设施。商业上,丸之内、有乐町、秋叶原等地购物和餐饮选择丰富。
7. 活动与节庆:神田祭是日本三大祭典之一,华丽的花车游行值得一看。秋叶原电器节是电器街特有的活动,热闹非凡。
8. 现代的千代田区:千代田区在保持商业区地位的同时,观光吸引力也在不断提升。高层大楼和再开发项目持续推进,丸之内和大手町区域的现代化进程加快。国际化色彩浓厚,吸引了大量外国游客和商务人士。
总结:千代田区是日本政治、经济、文化的中心,涵盖了从历史遗迹到前沿商业区的多样风貌。皇居和东京站周边的美丽街景,以及秋叶原的活力氛围等,看点丰富。这里无论是居住还是观光都颇具魅力,但物价和房租相对较高。如果您想了解特定区域或观光景点的更多信息,欢迎告知。
您会在一个工作日内得到置业顾问的联络




