| 地址 | 日本长野县北佐久都轻井泽町 | ||
| 价格 | 人民币:1876万 | 租金回报 | / |
| 建筑年代 | 1993年7月 | 建筑结构 | 钢筋混凝土造 |
| 实际面积 | 1088.63㎡ | 土地面积 | 5,241.00㎡ |
| 阳台面积 | / | 车库面积 | / |
| 总户数 | / | 所在层 | 1-2 |
| 房型 | 11室1厅 | 朝向 | / |
| 租赁情况 | / | 租金 | / |
| 管理费 | / | 修缮费 | / |
| 建蔽率 | 20% | 容积率 | 20% |
| 用途地域 | 第一种低层住居专用地域 | 土地权利 | 永久产权 |
| 交通 | ①しなの铁道线【中軽井沢】站乘车10分钟 | ||
林 武振 営業部
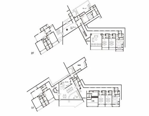
1993年7月建成,位于日本著名的度假胜地长野县轻井泽。地处轻井泽最具有历史的别墅区,永久产权,距【中軽井沢】站乘车约10分钟。从轻井泽车站步行3分钟有大型折扣店outlet,旧轻井泽的主要街道上有古香古色的店铺和时尚的饮食店。物件钢筋混凝土造2层,有数台停车位,2020年9月完成装修,墙壁和天花板采用与轻井泽丰富自然环境相呼应的木质设计,拥有商务套房,大浴池和桑拿,并配置了部分家具。这里有着丰富多彩的休闲与工作环境,可以度假,举行会议,欢迎咨询。
其他地区 其他
4 地址:日本长野县北佐久都轻井泽町
交通:①しなの铁道线【中軽井沢】站乘车10分钟
您会在一个工作日内得到置业顾问的联络




