| 地址 | 东京都荒川区南千住6 | ||
| 价格 | 人民币:311万 | 租金回报 | / |
| 建筑年代 | 1992年10月 | 建筑结构 | 铁骨钢筋混凝土造 |
| 实际面积 | 81.72㎡ | 土地面积 | / |
| 阳台面积 | 13.38㎡ | 车库面积 | / |
| 总户数 | 214户(总666户) | 所在层 | 11层 |
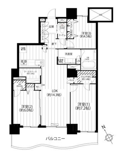
| 房型 | 3室1厅+WS | 朝向 | / |
| 租赁情况 | 空室 | 租金 | / |
| 管理费 | 13,200日元/月 | 修缮费 | 22,630日元/月 |
| 建蔽率 | / | 容积率 | / |
| 用途地域 | / | 土地权利 | 永久产权 |
| 交通 | ①东京メトロ日比谷线【南千住】站徒步14分钟 ②常磐线【南千住】站徒步13分钟 | ||
公寓1992年10月建成,永久产权,符合新抗震标准。位于东京都荒川区南千住,2条线路可以利用,距最近常磐线【南千住】站徒步13分钟。公寓配有门禁门,全年有专人管理,用地内有停车场,有洗车地方,有住户专用运动俱乐部,包括健身房,游泳池,网球场等。物件位于11层,晴天可以从阳台看到富士山和天空树,2021年3月完成室内装修,3室1厅,有适合在家工作的工作空间,厨房收纳柜,2个可步入式衣帽间,浴室换气烘干器及加热功能浴缸,跨度约8m长的阳台。我们协助海外投资客户申请日本银行贷款购房业务,需要在日本设立公司,以法人名义购买,贷款额度约60-70%、还款周期25-35年、贷款利率1.5%起。欢迎咨询。
1. 地理与基本信息:荒川区地处东京都东北部,北邻足立区,东接葛饰区,南靠台东区,西与北区和墨田区接壤。面积约10.16平方公里,2023年人口约21万,下町的氛围浓厚。这里商店街繁荣,有着支撑当地居民生活的社区。
2. 主要区域及其特色
• 尾久(Oku):尾久站有JR京滨东北线经过,周边是住宅区。尾久原公园自然环境优美,是当地居民休闲的好去处。
• 西日暮里(Nishi-Nippori):西日暮里站是京滨东北线、山手线、东京地铁千代田线、京成本线的交汇点,是交通枢纽。飞鸟山公园一部分位于荒川区,是著名的赏樱胜地。
• 三河岛(Mikasadai):三河岛站有JR常磐线经过,周边是宁静的住宅区。三河岛公园儿童游乐场和运动设施完备。
• 町屋(Machiiya):町屋站是京成本线和东京地铁千代田线的交汇点,商店街活跃。町屋银座商店街深受当地居民喜爱,充满活力。
• 南千住(Minami-Senju):南千住站有筑波快线和东京地铁日比谷线经过,是正在进行再开发的区域。南千住二丁目商店街商业设施众多,购物便利。
3. 文化与历史:荒川区自江户时代就已存在,尤其是作为宿场町发展起来。荒川区立荒川故乡文化馆可以让人们了解该区的历史和文化。
4. 观光景点:飞鸟山公园部分位于荒川区,春天樱花盛开,景色美丽。荒川自然公园自然环境丰富,可欣赏四季不同的风景。日暮里-舍人线是新型交通系统,改善了区内的交通状况。
5. 交通出行:铁路有JR京滨东北线、山手线、常磐线、东京地铁千代田线、日比谷线、京成本线、筑波快线等。主要车站有尾久站、西日暮里站、三河岛站、町屋站、南千住站等。区内有方便出行的公交线路。
6. 生活环境:教育资源丰富,从幼儿园到高中的教育机构齐全,有东京电机大学、东京成德大学等高校。医疗设施完备,有荒川区立医院、东京北医疗中心等。商业方面,各区域都有商店街和超市,生活便利性高。
7. 活动与节庆:荒川区民节是当地居民参与的大型活动。町屋祭是以商店街为中心,充满地域活力的节日。
8. 现代的荒川区:荒川区在珍视下町风情的同时,通过再开发增加了新的商业设施和住宅。自然环境优越,公园和绿地众多,被认为是宜居区域。
总结:荒川区是下町的温馨氛围与新开发区域共存的地方,充满生活气息。这里交通便利,商业设施和教育机构完备,无论是居住还是观光都很适宜。尤其是南千住和西日暮里发展迅速,居住着从年轻人到老年人的各年龄段人群。如果您想了解特定区域或观光景点的更多信息,欢迎告知。
您会在一个工作日内得到置业顾问的联络




