| 地址 | 东京都板桥区新河岸1 | ||
| 价格 | 人民币:527万 | 租金回报 | 6.87% |
| 建筑年代 | 2018年6月 | 建筑结构 | 木造 |
| 实际面积 | 176.32㎡ | 土地面积 | 106.04㎡(实测) |
| 阳台面积 | / | 车库面积 | / |
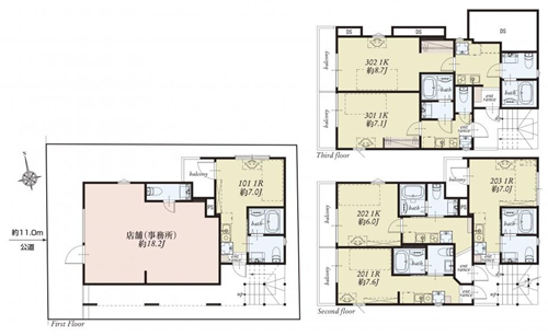
| 总户数 | 7户 | 所在层 | 1-3 |
| 房型 | 店铺.事务所×1 住居×6 | 朝向 | / |
| 租赁情况 | 出租中 | 租金 | 约6,105,600日元/年/满室 |
| 管理费 | / | 修缮费 | / |
| 建蔽率 | 60%(70%) | 容积率 | 200% |
| 用途地域 | 准工业地域 | 土地权利 | 永久产权 |
| 交通 | ①都营三田线【高島平駅】站徒步12分钟 | ||
2018年6月建成的整栋投资公寓,永久产权,符合新抗震标准。位于东京都板桥区,距都营三田线【高島平駅】站徒步12分钟。旁边就有全家便利店及自动贩卖机,距区立公园约15m。物件木造3层,沿街位置的出租公寓,1F店铺.事务所(有卫生间),2F~3F住居,全7户,17.18㎡~25.62㎡,室内生活配套设施齐全,厨具,空调,独立洗面台,智能马桶,浴室换气烘干器,洗衣机放置处等,目前出租中。我们协助海外投资客户申请日本银行贷款购房业务,需要在日本设立公司,以法人名义购买,贷款额度约60-70%、还款周期25-35年、贷款利率1.5%起。欢迎咨询。
1. 地理与基本信息:板桥区位于东京都北部,北邻埼玉县和光市,东接荒川区,南靠丰岛区,西毗练马区。面积约32.22平方公里,2023年人口约57万,在东京都内属于较大的区,人口密度较高。区内住宅区广泛,公园和绿地众多,深受有子女家庭的喜爱,商业设施也十分完备。
2. 主要区域及其特色
• 板桥站周边:板桥区役所是行政中心,提供各类市民服务。有多条深受当地居民喜爱的商店街,方便日常购物。
• 高岛平(Takashimadaira):高岛平团地是日本最大规模的公营住宅区,配套有公园和购物设施。高岛平中央公园面积广阔,运动设施和儿童游乐场一应俱全。
• 成增(Narimasu):成增站有东武东上线经过,前往板桥区北部交通便利。成增学习馆是用于学习和文化活动的场所。
• 志村(Shimura):志村坂上是历史悠久的街景与新商业设施相融合的区域。志村三丁目公园是附近居民的休憩之地。
• 赤冢(Akatsuka):赤冢公园宽敞开阔,四季皆可欣赏不同的自然美景。ARIO是大型购物中心,日常生活所需物品一应俱全。
3. 文化与历史:板桥区历史悠久,尤其在江户时代作为宿场町繁荣一时。板桥区立美术馆展示当地艺术家的作品和地域文化。
4. 观光景点:板桥区作为观光地的知名度较低,但也有一些值得一游的景点。大谷田公园是赏樱胜地,春季时赏樱游客众多。旧古河庭园是美丽的日式庭园,可感受历史韵味。ITOPIA是经常举办社区活动和各类活动的综合设施。
5. 交通出行:铁路方面有东武东上线、东京地铁有乐町线、副都心线、都营三田线等经过。主要车站有板桥站、成增站、高岛平站、志村三丁目站等。公交线路覆盖全区,尤其是前往住宅区和团地十分便利。
6. 生活环境:教育资源丰富,从幼儿园到高中的教育设施众多,还有东京成德大学、日本大学医学部等高校。医疗设施完备,有板桥中央综合医院、东京警察医院等。商业方面,超市和商店街分布广泛,日常生活便利性高。
7. 活动与节庆:板桥区民节是当地居民广泛参与的大型活动,有音乐、舞蹈和文艺表演。春季樱花节在大谷田公园等地举行,居民们欢聚一堂。
8. 现代的板桥区:板桥区以相对宁静、宜居著称。近年来,再开发项目不断推进,新的商业设施和公共设施逐渐增多。自然环境优越,公园和绿地丰富,是适合养育子女的区域。
总结:板桥区是东京都内充满生活气息的区域,历史与现代交融的街景随处可见。交通便利,宁静的住宅区和商业设施布局平衡。虽作为观光地知名度不高,但对当地居民而言,是居住舒适度很高的地方。如果您想了解特定区域或观光景点的更多信息,欢迎告知。
您会在一个工作日内得到置业顾问的联络




