| 地址 | 大阪市阿倍野区阿倍野筋3丁目 | ||
| 价格 | 人民币:502万 | 租金回报 | / |
| 建筑年代 | 1987年1月 | 建筑结构 | 钢筋铁骨混凝土 |
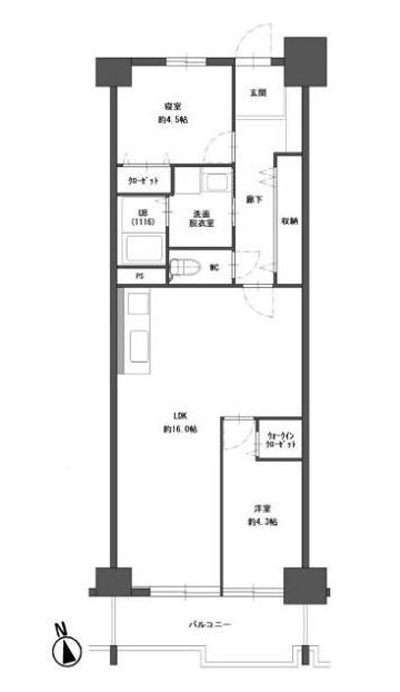
| 实际面积 | 61.44㎡ | 土地面积 | / |
| 阳台面积 | 7.64㎡ | 车库面积 | / |
| 总户数 | 337户 | 所在层 | 17层 |
| 房型 | 2室1厅 | 朝向 | / |
| 租赁情况 | 空室 | 租金 | / |
| 管理费 | 9093日元/月 | 修缮费 | 10444日元/月 |
| 建蔽率 | / | 容积率 | / |
| 用途地域 | 商业地域 | 土地权利 | 永久产权 |
| 交通 | ①大阪メト谷町线【阿倍野】站徒步2分钟 ②JR大阪环状线/地下铁御堂筋线【天王寺】站徒步6分钟 | ||
林 武振 営業部
公寓于1987年1月建成,永久产权。位于大阪市阿倍野区,阿倍野区是大阪市的24个行政区之一,阿倍野区的房价是比较便宜的,低于大阪市平均的土地价格,但是却有稳定的增长率,有很大的增值空间。而且阿倍野区连接JR•大阪市营地铁,前往关西国际机场和奈良的交通也十分方便。同时阿倍野区也是有名的别墅区,有着优美的环境,完善的生活设施,便利的交通条件等,所以如果想在日本购买房产,阿倍野区是一个比较不错的选择。物件距最近车站【】站徒步2分钟,公寓周边生活设施齐全,距超市约34m,距药妆店约30m,距小学校约80,距中学校约1500m,经济活动十分活跃,地理位置优越。交通便利。
大阪 阿倍野区
地址:大阪市阿倍野区阿倍野筋3丁目
交通:①大阪メト谷町线【阿倍野】站徒步2分钟
②JR大阪环状线/地下铁御堂筋线【天王寺】站徒步6分钟
您会在一个工作日内得到置业顾问的联络




