| 地址 | 大阪府大阪市生野区桃谷4丁目 | ||
| 价格 | 人民币:173万 | 租金回报 | / |
| 建筑年代 | 签约后7个月 | 建筑结构 | 木造 |
| 实际面积 | 95.4㎡ | 土地面积 | 56.69㎡ |
| 阳台面积 | / | 车库面积 | / |
| 总户数 | / | 所在层 | / |
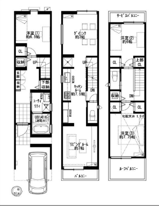
| 房型 | 3室1厅 | 朝向 | / |
| 租赁情况 | / | 租金 | / |
| 管理费 | / | 修缮费 | / |
| 建蔽率 | 80% | 容积率 | 240% |
| 用途地域 | 第一种住居 | 土地权利 | 永久产权 |
| 交通 | ①地下铁千日前线【鹤橋】站徒步18分钟 ②JR大阪环状线【桃谷】站徒步13分钟 ③近铁奈良线【鹤橋】站徒步15分钟 | ||
林 武振 営業部
签约7个月后交付的1户建,永久产权,符合新抗震标准。生野区是大阪市的24区之一,位于大阪市东部,西侧为大阪环状线,北侧为近铁大阪线;区内总人口约在13万,其中登记的外国人达2.7万,其中外国人的国籍主要包括韩国、朝鲜、中国、越南,是大阪市内外国人最多的一区,外国人的比例占该区总人口的20%以上。本物件有驻车场,3室1厅,全室木质地板,悬空楼梯设计,吧台式厨房,实用个性,可观的收纳空间,卫浴独立等,整体设计提升了生活的精致度,
大阪 生野区
地址:大阪府大阪市生野区桃谷4丁目
交通:①地下铁千日前线【鹤橋】站徒步18分钟
②JR大阪环状线【桃谷】站徒步13分钟
③近铁奈良线【鹤橋】站徒步15分钟
您会在一个工作日内得到置业顾问的联络




