| 地址 | 东京都府中市宫町3 | ||
| 价格 | 人民币:1235万 | 租金回报 | 5.8% |
| 建筑年代 | 预计2021年11月竣工 | 建筑结构 | 轻量铁骨造 |
| 实际面积 | 322.64㎡ | 土地面积 | 201.87㎡ |
| 阳台面积 | / | 车库面积 | / |
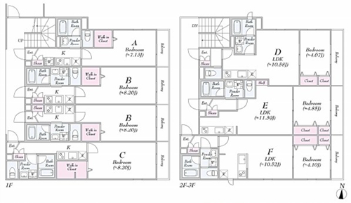
| 总户数 | 10户 | 所在层 | 1-3 |
| 房型 | 1室/1室1厅 | 朝向 | / |
| 租赁情况 | 建筑中 | 租金 | 约12,372,000日元/年 |
| 管理费 | / | 修缮费 | / |
| 建蔽率 | 60% | 容积率 | 200% |
| 用途地域 | 第一种中高层住居专业地域 | 土地权利 | 永久产权 |
| 交通 | ①京王线【府中】站徒步7分钟 ②JR武蔵野线【府中本町】站徒步12分钟 | ||
预计2021年11月竣工,永久产权,符合新抗震标准。位于东京都府中市,2线2站可以利用,距最近【府中】站徒步7分钟,至新宿站26分钟。附近Foris购物商场徒步约6分钟,预定2021年夏季开业的Mitten商业设施徒步约6分钟,Le Signe复合商业设施徒步约7分钟,全家便利店徒步约4分钟,生活购物非常便利。物件东侧/北侧分别约4m公道,轻量铁骨造3层,全10户,充实的生活设备,门禁门,宅配快递箱,可视对讲机,厨具,空调,智能马桶,浴室换气烘干器,室内洗衣机放置处,双层玻璃窗,24小时换气设备,1F住户有卷帘门。我们协助海外投资客户申请日本银行贷款购房业务,需要在日本设立公司,以法人名义购买,贷款额度约60-70%、还款周期25-35年、贷款利率1.5%起。欢迎咨询。
1. 地理与基本信息:府中市地处东京都西部的多摩地区,北邻小金井市,东接武藏野市,南连调布市,西靠国立市。其面积约为29.34平方公里,截至2023年,人口约26万。作为多摩地区的主要城市之一,府中市因历史悠久的街道而富有文化底蕴,同时也因东京赛马场而闻名。
2. 主要区域及特色:府中站周边是商业和办公的集中地,JR武藏野线和京王电铁在此交汇。与之相连的“くるる”综合设施,提供购物和文化活动的多样体验。此外,沿府中街道的商店街深受当地居民喜爱。东京赛马场是日本著名的赛马场地,举办过天皇赏和日本德比等重要赛事。多磨灵园是日本最大的灵园之一,埋葬着众多历史名人,也是散步的好去处。是政地区自然环境优美,以住宅区为主。白糸台则是一个宁静、绿化良好的住宅区。
3. 文化与历史:府中市自古以来就是交通要道,尤其在甲州街道沿线发展繁荣。府中市乡土之森博物馆是了解当地历史和文化的好去处。
4. 旅游景点:东京赛马场不仅是赛马爱好者的天堂,也是普通游客的热门景点。多磨灵园以其历史墓碑和自然景观吸引游客。大国魂神社作为府中的总镇守,每年5月举办的“くらやみ祭り”(黑暗祭典)非常有名。
5. 交通便利:府中市交通网络发达,有JR武藏野线、JR南武线和京王电铁等铁路线路。主要车站包括府中站、分倍河原站和府中本町站等。市内巴士线路丰富,方便市民出行。
6. 生活环境优越:教育资源从幼儿园到高中一应俱全,且是著名的文教地区,拥有一桥大学和东京外国语大学等高校。医疗设施完备,如府中市民医院和东京医科大学医院等。商业设施集中在府中站周边,超市、百货公司和专卖店齐全,生活便利。
7. 活动与节日:大国魂神社的“くらやみ祭り”以其美丽的灯笼闻名。府中市文化节则涵盖音乐、舞蹈和艺术等多种文化活动。
8. 现代的府中市:府中市是历史与现代融合的城市,东京赛马场是其象征。在推进城市再开发的同时,府中市也注重自然环境的保护。
总结:府中市是一个历史与现代和谐共存的地区,东京赛马场和大国魂神社是重要的旅游资源。对于居民来说,这里生活便利,文化丰富,教育环境优良,深受学生和家庭的喜爱。如果您想了解更多特定区域或旅游景点的详细信息,欢迎咨询。
您会在一个工作日内得到置业顾问的联络




