| 地址 | 大阪府大阪市北区南扇町7丁目 | ||
| 价格 | 人民币:213万 | 租金回报 | / |
| 建筑年代 | 1983年4月 | 建筑结构 | 钢筋铁骨混凝土 |
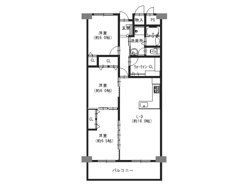
| 实际面积 | 72.96㎡ | 土地面积 | / |
| 阳台面积 | 6.42m² | 车库面积 | / |
| 总户数 | 196户 | 所在层 | 15层 |
| 房型 | 3室1厅 | 朝向 | / |
| 租赁情况 | 空室 | 租金 | / |
| 管理费 | 13140日元/月 | 修缮费 | 12400日元/月 |
| 建蔽率 | / | 容积率 | / |
| 用途地域 | 商业地域 | 土地权利 | 永久产权 |
| 交通 | ①地下鉄堺筋線【扇町】站徒歩4分 ②地下鉄谷町線【東梅田】站徒步10分 ③JR大阪環状線【天満】站徒歩9分 | ||
林 武振 営業部
公寓于1983年4月建成,永久产权。于2020年4月重新装修公寓位于大阪市北区,北区是大阪市的24个行政区之一,有着很不错的地理位置优势,另外,北区还有着很多政治单位,比如大阪政府、美国领事馆、最高法院等,可见北区对大阪来说有多么重要的政治地位了。北区还是大阪非常重要的一个交通枢纽,2011年春季建立的大阪车站城就是北区非常有象征性的一个存在,因为它是日本最大的一个综合性车站,不仅有JR线路,还有阪急、阪神等重要的铁路线路。另外又在2013年由商业设施和酒店等组成了一个梅田站,梅田站的周围耸立着非常多的公司、银行、饭店、大型时尚店、家电量贩店等,使得这里每天都吸引着大量的游客来这里观光购物。这里还有高达173米的梅田蓝天大厦的空中花园和HEP FIVE的观光车,在上面可以俯瞰整个大阪的美景,非常的漂亮,所以大阪北区的发展大家其实都可以拭目以待,属于日本买房置业的热门地区。
大阪 北区
地址:大阪府大阪市北区南扇町7丁目
交通:①地下鉄堺筋線【扇町】站徒歩4分
②地下鉄谷町線【東梅田】站徒步10分
③JR大阪環状線【天満】站徒歩9分
您会在一个工作日内得到置业顾问的联络




