| 地址 | 东京都小平市花小金井南町 | ||
| 价格 | 人民币:2792万 | 租金回报 | 6.0% |
| 建筑年代 | 1997年9月 | 建筑结构 | 钢筋混凝土造 |
| 实际面积 | 1405.85㎡ | 土地面积 | 984.79㎡ |
| 阳台面积 | / | 车库面积 | / |
| 总户数 | 20户 | 所在层 | 1-5 |
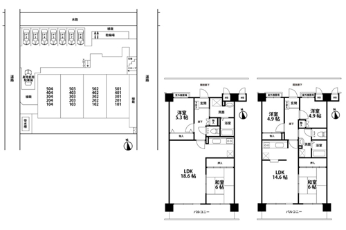
| 房型 | 2室1厅×10 3室1厅×10 | 朝向 | / |
| 租赁情况 | / | 租金 | 约2,832万日元/年/满室 |
| 管理费 | / | 修缮费 | / |
| 建蔽率 | 80%.60%.60% | 容积率 | 400%.200%.200% |
| 用途地域 | 商业地域.第一种中高层住居地域.第二种中高层住居地域 | 土地权利 | 永久产权 |
| 交通 | ①西武新宿线【花小金井】站徒步7分钟 | ||
1997年9月建成,永久产权,符合新抗震标准。位于东京都小平市,距西武新宿线【花小金井】站徒步7分钟,乘车至新宿站,池袋站约30分钟左右,车站前商业设施丰富,いなげや超市以外,有120家店铺组成的生鲜食品和各专卖店鳞次栉比的商店街,还有夏日祭等各种各样的活动,气氛十分活跃,另外从车站北口,公寓步行3分钟的地方还有PEACOCK STORE食品超市,从公寓步行8分钟范围内有中小学校,幼儿园,保育园等各种教育机构,稍微走一点,有一个东京都内屈指可数广阔面积的「都立小金井公园」,拥有草坪广场,自行车道,棒球场等无论年龄大小都能享受的舒适居住环境。公寓东侧约6m公道,西侧约4m私道,钢筋混凝土造5层,设置电梯,门禁门,防犯监视器,8台停车位,全20户,2室1厅及3室1厅两种户型,室内生活配套设施齐全,卫浴独立,收纳丰富。海外客户可以申请日本银行贷款购房,目前有两种方式:1.需要在日本设立公司,以法人名义购买,贷款额度约60-70%、还款周期25-35年、贷款利率1.5%起。2.个人名义购买,海外客户可以申请日本个人抵押贷款购房,不需要设立公司,贷款额度约50-60%,还款周期15-25年,贷款年龄65岁以内,贷款额度不能低于2000万日元,贷款利率2.7%起。详情欢迎咨询。
一、地理与基本信息
1. 位置:地处东京都西部的多摩地区,北邻东村山市,东接小金井市,南靠国分寺市,西连立川市。
2. 面积:约20.59平方公里。
3. 人口:大约20万人(截至2023年的估算),是一座氛围相对宁静的住宅城市。
4. 特点:以其绿意盎然的环境和完善的教育设施而广为人知。
二、主要区域及其特点
1. 小平(Kodaira)
• 小平站:西武国分寺线从此经过,作为城市的中心地带,商店街和公共设施在此聚集。
• 小平银座商店街:深受当地居民喜爱的商店街,日常生活所需的物品在这里都能买到。
2. 一桥学园(Ichigaya Gakuin)
• 一桥学园站:西武国分寺线途经此地。这里教育机构和住宅区众多。
• 一桥学园前商店街:街道两旁排列着许多面向学生和家庭的店铺。
3. 小川(Ogawa)
• 小川站:西武国分寺线经过,周边是一片宁静的住宅区。
• 小川公园:自然环境优越的公园,配备了丰富的儿童游乐场所和运动设施。
三、文化与历史
1. 小平市是战后迅速发展起来的新兴住宅区。
2. 小平市乡土资料馆:通过这个设施,能够深入了解小平市的历史和文化。
四、观光景点
1. 小平故乡村(小平ふるさと村):在这里可以体验农业活动,进行自然观察。
2. 小平中央公园:这是一个大型公园,体育设施和活动广场一应俱全。
3. 小平灵园:位于自然环境中的宁静灵园,同时也以赏樱胜地而闻名。
五、交通
1. 铁路:西武国分寺线是主要的交通线路。
2. 主要站点:包括小平站、一桥学园站、小川站等。
3. 公交:乘坐公交在市内出行十分便利,尤其是从小平站出发的公交线路非常完善。
六、生活环境
1. 教育:从幼儿园到高中,教育机构极为完备。特别是东京学艺大学附属小平中学和高中等,其教育环境备受赞誉。
2. 医疗:小平市保健所、东京女子医科大学附属小平医院等医疗设施齐全。
3. 商业:各个区域都有商店街和超市,生活便利性很高。
七、活动与节日
1. 小平市故乡节(小平市ふるさと祭り):这是当地居民齐聚一堂的盛大活动。
2. 小平樱花节(小平桜まつり):在小平灵园举办的赏樱节日活动。
八、现代的小平市
1. 小平市自然环境优越,尤其受到有孩子家庭的青睐,是理想的居住之地。
2. 教育设施完备,作为文教地区也颇具知名度。
3. 交通便利,可便捷到达东京市中心,且生活所需设施一应俱全,被认为是一座宜居城市。
总结:小平市以其绿意盎然的环境和完善的教育设施为显著特点。小平站和一桥学园站周边的商业设施,以及各处宁静的住宅区独具特色,生活所需设施完备。交通便利,前往东京市中心方便,深受重视子女教育和生活品质的人们喜爱。如果您想进一步了解特定区域或观光景点的详细信息,请随时告知。
您会在一个工作日内得到置业顾问的联络




