| 地址 | 东京都荒川区荒川4 | ||
| 价格 | 人民币:2655万 | 租金回报 | 4.50% |
| 建筑年代 | 2021年3月 | 建筑结构 | 重量铁骨造 |
| 实际面积 | 572.59㎡ | 土地面积 | 198.66㎡ |
| 阳台面积 | / | 车库面积 | / |
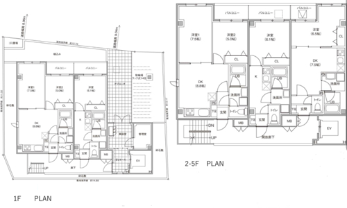
| 总户数 | 14户 | 所在层 | 1-5 |
| 房型 | 1室~2室1厅 | 朝向 | / |
| 租赁情况 | / | 租金 | 约21,348,000日元/年 |
| 管理费 | / | 修缮费 | / |
| 建蔽率 | 80%(90%) | 容积率 | 300% |
| 用途地域 | 准工业地域 | 土地权利 | 永久产权 |
| 交通 | ①东京メトロ千代田线.京成本线.东京さくらトラム【町屋】站徒步6分钟 ②东京さくらトラム【荒川二丁目】站徒步5分钟 ③京成本线【新三河岛】站徒步9分钟 ④JR常盘线【三河岛】站徒步10分钟 | ||
2021年3月建成,永久产权,符合新抗震标准。位于东京都荒川区,多条线路可以利用,4车站均在步行10分钟内,利用【町屋】站直通北千住站3分钟,直通大手町站13分钟,直通表参道站27分钟,至新宿站22分钟;利用【新三河岛】站直通京成上野站6分钟;利用【三河岛】站至东京站13分钟。公寓重量铁骨造5层,周边步行7分钟内有超市,便利店,邮局,图书馆,公园,荒川区役所。附带宅配快递箱,全14户,25.33㎡~44.47㎡,全房间配置厨具,空调,照明,卫浴设施等充实生活配套设备。海外客户可以申请日本银行贷款购房,目前有两种方式:1.需要在日本设立公司,以法人名义购买,贷款额度约60-70%、还款周期25-35年、贷款利率1.5%起。2.个人名义购买,海外客户可以申请日本个人抵押贷款购房,不需要设立公司,贷款额度约50-60%,还款周期15-25年,贷款年龄65岁以内,贷款额度不能低于2000万日元,贷款利率2.7%起。详情欢迎咨询。
1. 地理与基本信息:荒川区地处东京都东北部,北邻足立区,东接葛饰区,南靠台东区,西与北区和墨田区接壤。面积约10.16平方公里,2023年人口约21万,下町的氛围浓厚。这里商店街繁荣,有着支撑当地居民生活的社区。
2. 主要区域及其特色
• 尾久(Oku):尾久站有JR京滨东北线经过,周边是住宅区。尾久原公园自然环境优美,是当地居民休闲的好去处。
• 西日暮里(Nishi-Nippori):西日暮里站是京滨东北线、山手线、东京地铁千代田线、京成本线的交汇点,是交通枢纽。飞鸟山公园一部分位于荒川区,是著名的赏樱胜地。
• 三河岛(Mikasadai):三河岛站有JR常磐线经过,周边是宁静的住宅区。三河岛公园儿童游乐场和运动设施完备。
• 町屋(Machiiya):町屋站是京成本线和东京地铁千代田线的交汇点,商店街活跃。町屋银座商店街深受当地居民喜爱,充满活力。
• 南千住(Minami-Senju):南千住站有筑波快线和东京地铁日比谷线经过,是正在进行再开发的区域。南千住二丁目商店街商业设施众多,购物便利。
3. 文化与历史:荒川区自江户时代就已存在,尤其是作为宿场町发展起来。荒川区立荒川故乡文化馆可以让人们了解该区的历史和文化。
4. 观光景点:飞鸟山公园部分位于荒川区,春天樱花盛开,景色美丽。荒川自然公园自然环境丰富,可欣赏四季不同的风景。日暮里-舍人线是新型交通系统,改善了区内的交通状况。
5. 交通出行:铁路有JR京滨东北线、山手线、常磐线、东京地铁千代田线、日比谷线、京成本线、筑波快线等。主要车站有尾久站、西日暮里站、三河岛站、町屋站、南千住站等。区内有方便出行的公交线路。
6. 生活环境:教育资源丰富,从幼儿园到高中的教育机构齐全,有东京电机大学、东京成德大学等高校。医疗设施完备,有荒川区立医院、东京北医疗中心等。商业方面,各区域都有商店街和超市,生活便利性高。
7. 活动与节庆:荒川区民节是当地居民参与的大型活动。町屋祭是以商店街为中心,充满地域活力的节日。
8. 现代的荒川区:荒川区在珍视下町风情的同时,通过再开发增加了新的商业设施和住宅。自然环境优越,公园和绿地众多,被认为是宜居区域。
总结:荒川区是下町的温馨氛围与新开发区域共存的地方,充满生活气息。这里交通便利,商业设施和教育机构完备,无论是居住还是观光都很适宜。尤其是南千住和西日暮里发展迅速,居住着从年轻人到老年人的各年龄段人群。如果您想了解特定区域或观光景点的更多信息,欢迎告知。
您会在一个工作日内得到置业顾问的联络




