| 地址 | 东京都立川市柴崎町3 | ||
| 价格 | 人民币:3387万 | 租金回报 | 6.63% |
| 建筑年代 | 2021年3月 | 建筑结构 | 钢筋混凝土造 |
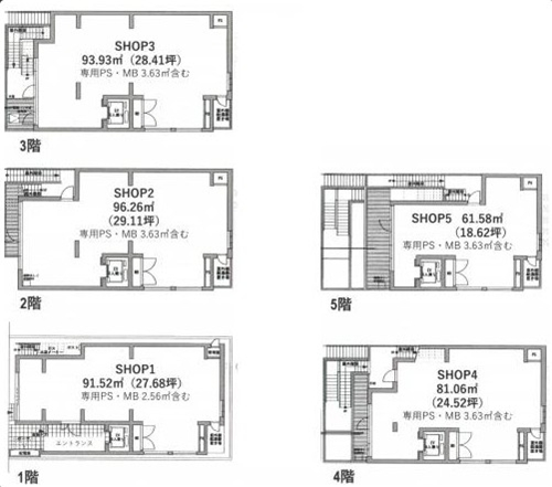
| 实际面积 | 455.36㎡ | 土地面积 | 146.55㎡ |
| 阳台面积 | / | 车库面积 | / |
| 总户数 | 5户 | 所在层 | 1-5 |
| 房型 | 事务所.店铺 | 朝向 | / |
| 租赁情况 | / | 租金 | 约38,484,000日元/年/满室 |
| 管理费 | / | 修缮费 | / |
| 建蔽率 | 80% | 容积率 | 300% |
| 用途地域 | 商业地域 | 土地权利 | 永久产权 |
| 交通 | ①JR中央线【立川】站徒步3分钟 ②多摩都市モノレール线【立川南】站徒步2分钟 | ||
1. 地理与基本信息:立川市地处东京都西部的多摩地区,北邻东大和市,东接小平市,南连国立市,西靠昭岛市。其面积约为24.36平方公里,截至2023年,人口约18万。作为多摩地区的主要城市,立川市发展迅速。它不仅是铁路和公交等交通枢纽,还是购物和娱乐的中心。
2. 主要区域及特色:立川站周边是交通枢纽,JR中央线、青梅线、南武线和多摩都市单轨电车在此交汇。立川ルミネ是车站大楼,方便购物和用餐。イオンモール立川立飛是大型购物中心,提供从生活用品到时尚商品的各类选择。昭和纪念公园是多摩地区最大的城市公园,四季景色各异,还会举办烟花大会和其他活动。高松是一个安静的住宅区,自然环境优美。砂川是商业设施和企业的聚集地,立川市政府也位于此区域。
3. 文化与历史:立川市自江户时代就已存在,当时以立川宿而闻名。立川市乡土博物馆是了解当地历史和文化的好去处。
4. 旅游景点:昭和纪念公园以其春天的樱花和秋天的红叶而闻名,深受家庭游客和自然爱好者的喜爱。立川市艺术文化中心(たましんRISURUホール)提供音乐会和戏剧等文化活动。国营昭和纪念公园的烟花大会每年夏天举行,吸引大量游客。
5. 交通便利:立川市交通网络发达,有JR中央线、南武线、青梅线和多摩都市单轨电车等铁路线路。主要车站包括立川站、西立川站和立川南站等。市内巴士线路丰富,方便市民出行。
6. 生活环境优越:教育资源从幼儿园到高中一应俱全,立川市也是著名的文教地区,拥有国立音乐大学和电气通信大学等高校。医疗设施完备,如立川中央医院和东京医科大学医院等。商业设施集中在立川站周边,超市、百货公司和专卖店齐全,生活便利。
7. 活动与节日:立川祭每年秋天举行,充满地方活力。昭和纪念公园烟花大会是夏天的一大盛事,热闹非凡。
8. 现代的立川市:立川市是商业与文化融合的城市,特别是立川站周边的再开发,带来了新的商业和公共设施。同时,立川市自然环境丰富,昭和纪念公园是城市的标志性存在。
总结:立川市是多摩地区的交通枢纽和购物娱乐中心,自然与城市功能平衡和谐,是一个适合居住和旅游的魅力区域。其优质的教育环境也深受学生和家庭的喜爱。如果您想了解更多特定区域或旅游景点的详细信息,欢迎咨询。
您会在一个工作日内得到置业顾问的联络




