| 地址 | 东京都品川区大崎5 | ||
| 价格 | 人民币:384万 | 租金回报 | / |
| 建筑年代 | 1997年9月 | 建筑结构 | 铁骨钢筋混凝土造 |
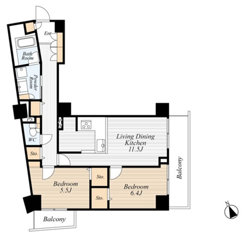
| 实际面积 | 59.93㎡ | 土地面积 | / |
| 阳台面积 | 东京都品川区大崎5 | 车库面积 | / |
| 总户数 | 71户 | 所在层 | 1层 |
| 房型 | 2室1厅 | 朝向 | / |
| 租赁情况 | / | 租金 | / |
| 管理费 | 15,300日元/月 | 修缮费 | 15,300日元/月 |
| 建蔽率 | / | 容积率 | / |
| 用途地域 | / | 土地权利 | 永久产权 |
| 交通 | ①JR山手线.埼京线.湘南新宿ライン.东京临海高速铁道【大崎】站徒步4分钟 ②东急池上线【大崎広小路】站徒步6分钟 ③JR山手线.东急池上线.都营浅草线【五反田】站徒步8分钟 | ||
1997年9月建成,永久产权,符合新抗震标准。位于东京都品川区,6线3站可以利用,距最近【大崎】站徒步4分钟,车站周边有大崎新城,THINK PARK等商业设施,乘车直通品川站4分钟,直通涩谷站5分钟,直通新宿站10分钟。公寓周边小学校徒步7分钟,中学校徒步12分钟,711便利店徒步3分钟,全家便利店徒步3分钟,LIFE超市徒步6分钟,公园徒步1分钟。物件位于1层,不用在意楼下,2面阳台,2室1厅,完成室内装修,具有清新感的居住空间,L字型厨具,更换了洗面台,浴缸,智能马桶,壁纸,地板等生活配套设备。海外客户可以申请日本银行贷款购房,目前有两种方式:1.需要在日本设立公司,以法人名义购买,贷款额度约60-70%、还款周期25-35年、贷款利率1.5%起。2.个人名义购买,海外客户可以申请日本个人抵押贷款购房,不需要设立公司,贷款额度约50-60%,还款周期15-25年,贷款年龄65岁以内,贷款额度不能低于2000万日元,贷款利率2.7%起。详情欢迎咨询。
1. 地理与基本信息:品川区地处东京都南部,北邻港区,东接大田区,南与大田区和川崎市接壤,西毗目黑区。面积约22.84平方公里,2023年人口约40万,商业区属性明显,白天人口会有所增加。品川站周边的再开发以及新商业设施的开业,让这里作为商业区备受关注。
2. 主要区域及其特色
• 品川站周边:品川站是东海道新干线、京滨东北线、山手线、横须贺线、临海线、京急本线、东京单轨电车等多条线路交汇的交通枢纽。品川Intercity是办公大楼与商业设施一体化的综合建筑。品川Season Terrace是集购物、餐厅、酒店于一体的区域。
• 五反田(Gotanda):是商业区,众多企业在此设有办公室。五反田站有JR山手线、东急池上线、都营浅草线经过。
• 大崎(Ōsaki):Gate City大崎是购物、餐饮、办公场所聚集的综合设施。大崎New City是大规模的办公楼群,再开发形成了新的街景。
• 北品川(Kita-Shinagawa):天王洲Isle是艺术和文化的发源地,有许多由仓库改造而成的画廊和咖啡馆。天王洲运河边可欣赏美丽的运河风景。
• 荏原(Ebara):分布着宁静的住宅区,还有一些商店街和公园。
• 大井町(Ōimachi):大井町站有京急本线、东急大井町线经过,商业设施完备。大井赛马场在周末时热闹非凡。
3. 文化与历史:品川自江户时代起作为宿场町发展,是重要的交通枢纽。品川神社历史悠久,深受当地居民喜爱。
4. 观光景点:品川水族馆位于天王洲Isle,是受欢迎的都市型水族馆。寺田仓库有许多现代艺术画廊和活动场地。品川区民公园可让人享受自然和运动。
5. 交通出行:品川区是东京主要铁路网汇聚的地方,尤其是品川站,有多条线路经过。主要车站有品川站、五反田站、大崎站、北品川站、大井町站等。区内公交线路完善,出行便利。
6. 生活环境:教育资源丰富,从幼儿园到高中的教育机构齐全,有庆应义塾大学、日本女子大学等。医疗设施完备,有昭和大学医院、东京医疗中心等大型医院。商业方面,品川站周边、五反田、大井町等地有许多便利的购物和餐饮设施。
7. 活动与节庆:品川区民节每年举办,是当地居民参与的大型活动。天王洲运河节可欣赏艺术和音乐表演。
8. 现代的品川区:品川区再开发持续推进,新的办公楼和商业设施不断涌现。国际化色彩浓厚,尤其是品川站周边,商务人士和游客往来频繁。
总结:品川区在商业、交通、观光、生活等各方面不断发展。既有深厚的历史背景,又在进行象征现代东京的再开发。无论是居住还是观光都极具吸引力,交通便利是其一大优势。如果您想了解特定区域或观光景点的更多信息,欢迎告知。
您会在一个工作日内得到置业顾问的联络




