| 地址 | 东京都中野区新井5 | ||
| 价格 | 人民币:1421万 | 租金回报 | 6.1% |
| 建筑年代 | 1991年5月 | 建筑结构 | 铁骨造 |
| 实际面积 | 467.17㎡ | 土地面积 | 142.77㎡ |
| 阳台面积 | / | 车库面积 | / |
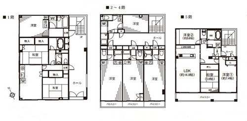
| 总户数 | 15户 | 所在层 | 1-5 |
| 房型 | 1室×13 1室1厅×2 | 朝向 | / |
| 租赁情况 | 目前部分出租中 | 租金 | 约15,817,200日元/年/满室 |
| 管理费 | / | 修缮费 | / |
| 建蔽率 | 80% | 容积率 | 400% |
| 用途地域 | 近邻商业地域 | 土地权利 | 永久产权 |
| 交通 | ①西武新宿线【新井药师前】站徒步4分钟 ②JR中央线【中野】站徒步15分钟 ③JR中央线【中野】站乘公交【新井小学校】站徒步1分钟 | ||
1991年5月建成,永久产权,符合新抗震标准。位于东京都中野区,距最近【新井药师前】站徒步4分钟,至池袋站17分钟,直通新宿站20分钟。另外稍微走远一点,还有JR【中野】站可利用,在中野站也可以乘用公交车,到公寓步行只需1分钟。公寓铁骨造5层,管理状态良好,2012年及2014年实施了外壁涂装,屋顶防水等工事,2021年共用部实施了修缮,设置门禁,快递箱,全15户,1室及1室1厅两种户型,生活配套设备完善,有空调,厨具,室内洗衣机放置处,卫浴设备等。海外客户可以申请日本银行贷款购房,目前有两种方式:1.需要在日本设立公司,以法人名义购买,贷款额度约60-70%、还款周期25-35年、贷款利率1.5%起。2.个人名义购买,海外客户可以申请日本个人抵押贷款购房,不需要设立公司,贷款额度约50-60%,还款周期15-25年,贷款年龄65岁以内,贷款额度不能低于2000万日元,贷款利率2.7%起。详情欢迎咨询。
1. 地理与基本信息:中野区位于东京都西北部,北邻丰岛区,东接新宿区,南靠涩谷区,西毗杉并区。面积约15.59平方公里,2023年人口约34万,是学生、年轻人和有子女家庭的聚居地。这里是亚文化的中心,商业和文化发展蓬勃。
2. 主要区域及其特色
• 中野站周边:中野站有JR中央线和东京地铁东西线经过,是交通枢纽。中野百老汇是动漫和御宅文化的圣地,由公寓改造而成,汇聚了众多专卖店。中野太阳购物中心商店街深受当地居民喜爱,各类店铺林立。
• 野方(Nogata):野方站有都营地铁大江户线通过,周边是宁静的住宅区。野方通是商店街,日常生活用品一应俱全。
• 桃园(Momozono):是宁静的住宅区,以绿树成荫的桃园川沿岸为特色。
• 新井(Arai):新井药师寺供奉着药师如来,是人们的信仰寄托,新年参拜时会有很多人前来。
3. 文化与历史:中野区自江户时代起发展,明治之后逐渐走向城市化。中野区立历史民俗资料馆可以让人们了解该区的历史和文化。
4. 观光景点:中野百老汇有许多售卖动漫周边、手办和唱片的专卖店,是爱好者的必去之地。中野四季之森公园自然环境优美,可欣赏四季不同的风景。新井药师寺在节分和新年参拜期间热闹非凡。
5. 交通出行:铁路有JR中央线、东京地铁东西线、都营地铁大江户线等。主要车站有中野站、野方站、东中野站、落合南长崎站等。区内有方便出行的公交线路。
6. 生活环境:教育资源丰富,从幼儿园到高中的教育机构齐全,早稻田大学部分校区也在此。医疗设施完备,有中野区立医院、东京女子医科大学附属青山医院等。商业方面,中野站周边和各商店街能满足生活所需。
7. 活动与节庆:中野区民节是当地居民相聚的大型活动。新井药师节分会会举行撒豆子等活动,热闹非凡。
8. 现代的中野区:中野区作为亚文化的发源地声名远扬,频繁举办动漫、音乐、电影等活动。再开发正在进行,新的商业设施和住宅不断涌现,区域活力持续提升。
总结:中野区是充满文化艺术气息的区域,中野百老汇更是亚文化的圣地。这里交通便利,生活环境优越,无论是居住还是游览都极具吸引力。同时,历史遗迹和自然景观兼备,为人们提供了平衡的生活方式。如果您想了解特定区域或观光景点的更多信息,欢迎告知。
您会在一个工作日内得到置业顾问的联络




