| 地址 | 东京都千代田区富士见2 | ||
| 价格 | 人民币:1363万 | 租金回报 | / |
| 建筑年代 | 2014年3月 | 建筑结构 | 钢筋混凝土.部分铁骨造 |
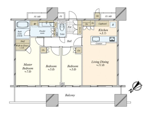
| 实际面积 | 71.82㎡ | 土地面积 | / |
| 阳台面积 | 19.47㎡ | 车库面积 | / |
| 总户数 | 505户 | 所在层 | 12层 |
| 房型 | 3室1厅 | 朝向 | / |
| 租赁情况 | / | 租金 | / |
| 管理费 | 28,370日元/月 | 修缮费 | 18,670日元/月 |
| 建蔽率 | / | 容积率 | / |
| 用途地域 | 商业地域 | 土地权利 | 永久产权 |
| 交通 | ①JR中央.总武线【饭田桥】站徒步3分钟 ②东京メトロ南北线.东西线.有乐町线.都营大江户线【饭田桥】站徒步4分钟 | ||
2014年3月建成的40层付地下2层高层公寓,永久产权,符合新抗震标准。位于东京都有着很多商业和文化设施的千代田区,自然丰富的护城河公园和北之丸公园也在附近得天独厚的生活环境,5条线路可以利用,距最近【饭田桥】站徒步3分钟,相邻的商业设施内聚集了超市,便利店,邮局,诊所等。公寓丰富的共用设施,健身房,招待室,图书区,聚会室,屋顶天空露台等,设有门禁,快递箱,24小时有人管理,充实的服务。物件位于12层,3室1厅,全房间都朝向阳台,良好的采光,有地暖,对面式厨房,主卧室带可步入式衣帽间,其他房间也均有收纳,独立洗面台,卫浴分离。海外客户可以申请日本银行贷款购房,目前有两种方式:1.需要在日本设立公司,以法人名义购买,贷款额度约60-70%、还款周期25-35年、贷款利率1.5%起。2.个人名义购买,海外客户可以申请日本个人抵押贷款购房,不需要设立公司,贷款额度约50-60%,还款周期15-25年,贷款年龄65岁以内,贷款额度不能低于2000万日元,贷款利率2.7%起。详情欢迎咨询。
1. 地理与基本信息:千代田区地处东京都中央,北邻文京区、丰岛区,东接台东区、荒川区,南靠中央区、港区,西毗新宿区。面积约11.66平方公里,2023年人口约6万。作为商业区,白天人口数量远多于夜间。这里是日本政治和经济的中心,皇居、国会议事堂等重要设施集中于此。
2. 主要区域及其特色
• 皇居周边:皇居是日本天皇的居所,皇居东御苑和皇居外苑对公众开放,是著名的观光景点。丸之内林立着历史悠久的办公楼和商业设施,是商业中心。
• 大手町:大手町站有多条地铁线路经过,发展成为办公街区。大手町塔楼是高层大楼,入驻了许多金融和IT企业。
• 有乐町:有乐町站有JR山手线和东京地铁有乐町线经过,商业设施完备。有乐町大楼内可购物和观影。
• 秋叶原:秋叶原站是JR山手线、总武线、东京地铁日比谷线、筑波快线的交汇点,以电器街闻名。电器街汇聚了大量动漫、游戏和电子产品的专卖店。
• 神田:神田站有JR中央线、京滨东北线、山手线等线路经过,也是学生街。神田古书店街是出版业的中心,有许多古书店。
• 二重桥前:东京站是日本的交通枢纽,新干线和众多普通铁路线在此始发和到达,分为丸之内侧和八重洲侧。
3. 文化与历史:千代田区拥有自江户时代以来的悠久历史,皇居更是日本历史和文化的象征。千代田区立日比谷图书文化馆是当地文化活动的重要场所。
4. 观光景点:皇居的二重桥和东御苑深受游客喜爱。靖国神社是祭祀战争中阵亡者的神社。国会议事堂提供参观活动,可了解日本政治中心的风貌。秋叶原作为动漫和电子产品的圣地,吸引着大量游客。
5. 交通出行:千代田区是东京主要铁路网的汇聚地,东京站更是有多条线路经过。主要车站有东京站、有乐町站、秋叶原站、大手町站、神田站等。区内有方便出行和观光的公交线路。
6. 生活环境:千代田区内中小学数量较少,常借助周边区的学校资源。一桥大学的部分校区位于区内。医疗方面,附近有圣路加国际医院、东京医科大学医院等大型医疗设施。商业上,丸之内、有乐町、秋叶原等地购物和餐饮选择丰富。
7. 活动与节庆:神田祭是日本三大祭典之一,华丽的花车游行值得一看。秋叶原电器节是电器街特有的活动,热闹非凡。
8. 现代的千代田区:千代田区在保持商业区地位的同时,观光吸引力也在不断提升。高层大楼和再开发项目持续推进,丸之内和大手町区域的现代化进程加快。国际化色彩浓厚,吸引了大量外国游客和商务人士。
总结:千代田区是日本政治、经济、文化的中心,涵盖了从历史遗迹到前沿商业区的多样风貌。皇居和东京站周边的美丽街景,以及秋叶原的活力氛围等,看点丰富。这里无论是居住还是观光都颇具魅力,但物价和房租相对较高。如果您想了解特定区域或观光景点的更多信息,欢迎告知。
您会在一个工作日内得到置业顾问的联络




