| 地址 | 东京都江户川区松岛4 | ||
| 价格 | 人民币:232万 | 租金回报 | / |
| 建筑年代 | 1996年8月 | 建筑结构 | 钢筋混凝土造 |
| 实际面积 | 63.34㎡ | 土地面积 | / |
| 阳台面积 | 合计11.4㎡ | 车库面积 | / |
| 总户数 | 29户 | 所在层 | 2层 |
| 房型 | 3室1厅 | 朝向 | / |
| 租赁情况 | / | 租金 | / |
| 管理费 | 12,800日元/月 | 修缮费 | 9,000日元/月 |
| 建蔽率 | / | 容积率 | / |
| 用途地域 | / | 土地权利 | 永久产权 |
| 交通 | JR总武线【新小岩】站徒步8分钟 | ||
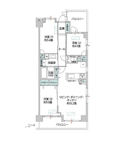
1996年8月建成,永久产权,符合新抗震标准。位于东京都江户川区,距JR总武线【新小岩】站徒步8分钟,也有快速停车站,去都心或千叶方向交通良好。穿过车站前的超市和餐饮店林立的商业街,就会有一条幽静的住宅街,公寓周边7-11便利店,公园,中小学校等都在步行范围内,便利的居住环境。公寓设有门禁,物件位于2层,3室1厅,完成室内装修,更新了生活配套设备,客餐厅两面采光,采用了开放式厨房,可以看到客厅的状况,厨房后面的墙面设置了便利的磁铁板,各居室都有收纳,浴室带换气烘干器,卫浴独立。详情欢迎咨询。
1. 地理与基本信息:江户川区地处东京都东部,北邻葛饰区,西接墨田区、江东区,南濒东京湾,东与千叶县市川市和浦安市接壤。面积约49.90平方公里,2023年人口约70万,是较大的区,有子女的家庭居多。区内江户川和新川沿岸有众多公园,自然环境优美。
2. 主要区域及其特色
• 小岩(Koiwa):小岩站有JR总武本线经过,已发展成为商业区。小岩银座商店街深受当地居民喜爱,充满活力。
• 船堀(Funabori):船堀站有都营地铁新宿线经过,住宅和商业设施交错分布。船堀绿色购物中心是大型商业设施,能满足日常生活所需。
• 葛西(Kasai):葛西站有东京地铁东西线经过,自然环境极具吸引力。葛西临海公园面积广阔,可进行自然观察和休闲活动,其中的“葛西临海水族园”尤其受欢迎。
• 一之江(Ichinoe):一之江站有都营地铁新宿线经过,周边是宁静的住宅区。一之江公园是当地居民的休闲场所,儿童游乐设施完备。
• 瑞江(Mizue):瑞江站有东京地铁东西线经过,有许多适合家庭居住的住宅。江户川区立瑞江南公园绿树成荫,四季风景各异。
3. 文化与历史:江户川区自江户时代就已存在,当时利用河流发展了交通和产业。江户川区立江户川区乡土博物馆可以让人们了解该区的历史和文化。
4. 观光景点:葛西临海公园是自然与游乐园相结合的地方,举办烟花大会时会吸引大量游客。东京迪士尼度假区虽不直接位于江户川区,但靠近浦安市边界,常作为观光据点。江户川河川敷是骑行和散步的绝佳场所。
5. 交通出行:铁路有JR总武本线、东京地铁东西线、都营地铁新宿线等。主要车站有小岩站、船堀站、葛西站、一之江站、瑞江站等。区内出行乘坐巴士很方便,还有社区巴士“ぐるっとバス”运行。
6. 生活环境:教育资源丰富,从幼儿园到高中的教育机构齐全,尤其有许多适合家庭的学校。医疗设施完备,有江户川医院、东京女子医科大学附属青山医院等。商业方面,各区域都有商店街和大型商业设施,生活便利性高。
7. 活动与节庆:江户川区烟花大会每年夏天举办(也有停办的年份),吸引众多游客。江户川区民节是当地居民参与的大型活动。
8. 现代的江户川区:江户川区自然环境优越,是深受有子女家庭喜爱的住宅区。再开发不断推进,新的商业设施和住宅逐渐增多,同时自然环境也得到了重视。
总结:江户川区是自然与城市和谐相融的区域,公园和绿地众多,非常适合养育子女。生活便利性高,能感受到下町的温馨氛围和社区的凝聚力。此外,由于靠近东京迪士尼度假区,也具有观光胜地的属性。如果您想了解特定区域或观光景点的更多信息,欢迎告知。
您会在一个工作日内得到置业顾问的联络




