| 地址 | 东京都目黑区上目黑3 | ||
| 价格 | 人民币:1591万 | 租金回报 | / |
| 建筑年代 | 预计2022年11月上旬竣工 | 建筑结构 | 钢筋混凝土造 |
| 实际面积 | 149.43㎡~ | 土地面积 | / |
| 阳台面积 | 5.05㎡~ | 车库面积 | / |
| 总户数 | 19户 | 所在层 | / |
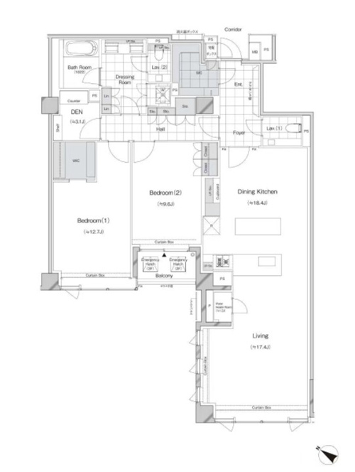
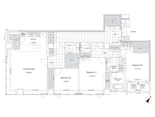
| 房型 | 2室1厅+WIC+SIC | 朝向 | / |
| 租赁情况 | / | 租金 | / |
| 管理费 | 93,200日元/月~ | 修缮费 | 29,900日元/月~ |
| 建蔽率 | / | 容积率 | / |
| 用途地域 | 第一种低层住居专用地域 | 土地权利 | 永久产权 |
| 交通 | ①东京メトロ日比谷线【中目黑】站徒步6分钟 ②东急东横线【中目黑】站徒步6分钟 | ||
预计2022年11月上旬竣工的高级公寓,贩卖户数2户,1,591万~2,676万人民币,永久产权,符合新抗震标准。位于东京都目黑区上目黑区域,低层建筑林立的高级住宅区,东京地铁日比谷线·东急东横线【中目黑】站徒步6分钟的好位置,也是东京地铁日比谷线始发站、东急东横线快车停车站,交通顺畅,乘车直通涩谷站3分钟,直通六本木站8分钟,直通新宿三丁目站10分钟,直通银座站18分钟,可以享受在这些时尚区域购物和外出就餐。公寓周边除了超市之外,便利店,药妆店,咖啡店,邮局等生活便利设施也很充实,附近还有樱花树自然丰富的目黑川。钢筋混凝土造地上3层地下1层建筑,以水平延伸的设计为特征与街道的美丽景观完美地协调在一起,物件分别为2室1厅及3室1厅,149.43㎡~175.09㎡,追求宽裕的房间布局,配备了系统厨具,可步入式衣帽间,鞋柜,卫浴设备等,丰富舒适的生活空间。海外客户可以申请日本银行贷款购房,目前有两种方式:1.需要在日本设立公司,以法人名义购买,贷款额度约60-70%、还款周期25-35年、贷款利率1.5%起。2.个人名义购买,海外客户可以申请日本个人抵押贷款购房,不需要设立公司,贷款额度约50-60%,还款周期15-25年,贷款年龄65岁以内,贷款额度不能低于2000万日元,贷款利率2.7%起。详情欢迎咨询。
1. 地理与基本信息:目黑区地处东京都西南部,北邻涩谷区,东接港区,南靠品川区,西毗世田谷区。面积约14.67平方公里,2023年人口约28万,是相对宁静的住宅区,同时也具备商业区的属性。这里距离市中心近,自然与城市功能和谐共存。
2. 主要区域及其特色
• 目黑站周边:目黑站有JR山手线、东京地铁南北线、都营地铁三田线经过,是交通枢纽。目黑银座商店街深受当地居民喜爱,分布着众多餐饮店和零售店。目黑川是著名的赏樱地,春天会吸引大量游客前来赏樱。
• 自由之丘(Jiyūgaoka):自由之丘站是东急东横线和东急大井町线的交汇点,这里是高级住宅区,有许多精品店和咖啡馆。自由之丘银座商店街个性店铺林立,可尽情享受时尚和美食。
• 中目黑(Nakameguro):中目黑站有东急东横线和东京地铁日比谷线经过,是时尚的咖啡馆和餐厅聚集区。中目黑的樱花大道沿目黑川而建,樱花盛放时景色优美,是春季热门景点。
• 下目黑(Shimo-Meguro):是宁静的住宅区,零星分布着一些历史建筑和寺院。
• 五本木(Gohongi):五本木公园绿树成荫,是当地居民休闲放松的好去处。
3. 文化与历史:目黑区自江户时代就已存在,其中目黑不动尊(泷泉寺)是著名的历史寺院。目黑区立目黑历史博物馆可以让人们了解该区的历史和文化。
4. 观光景点:目黑川的樱花是日本数一数二的赏樱胜地,春季吸引大量游客。目黑不动尊正式名称为泷泉寺,以结缘和消灾闻名。碑文谷公园自然环境优美,秋季的红叶景色尤其美丽。
5. 交通出行:铁路有JR山手线、东京地铁南北线、日比谷线、东急东横线、大井町线、都营地铁三田线等。主要车站有目黑站、自由之丘站、中目黑站等。区内公交线路众多,出行便利。
6. 生活环境:教育资源丰富,从幼儿园到高中的教育机构齐全,青山学院大学的部分校区也在此。医疗设施完备,有目黑区立综合医院、东京医疗中心等。商业方面,自由之丘、中目黑和目黑站周边汇聚了许多个性商业设施,生活便利性高。
7. 活动与节庆:目黑川迷你赏樱游船在春季赏樱季举办,可从河上欣赏樱花。目黑区民节是当地居民参与的大型活动。
8. 现代的目黑区:目黑区是自然与城市开发相协调的区域,即使不是樱花季也十分宜居。再开发持续推进,新的商业设施和住宅不断涌现,区域活力不断提升。
总结:目黑区以自然环境优美的公园和樱花大道闻名,生活环境优越。自由之丘和中目黑可享受时尚与美食,目黑站周边兼具商业区功能。这里历史与现代交融,无论是居住还是游览都极具魅力。如果您想了解特定区域或观光景点的更多信息,欢迎告知。
您会在一个工作日内得到置业顾问的联络




