| 地址 | 神奈川县横滨市中区北仲通5 | ||
| 价格 | 人民币:695万 | 租金回报 | / |
| 建筑年代 | 2019年10月 | 建筑结构 | 铁骨钢筋混凝土造 |
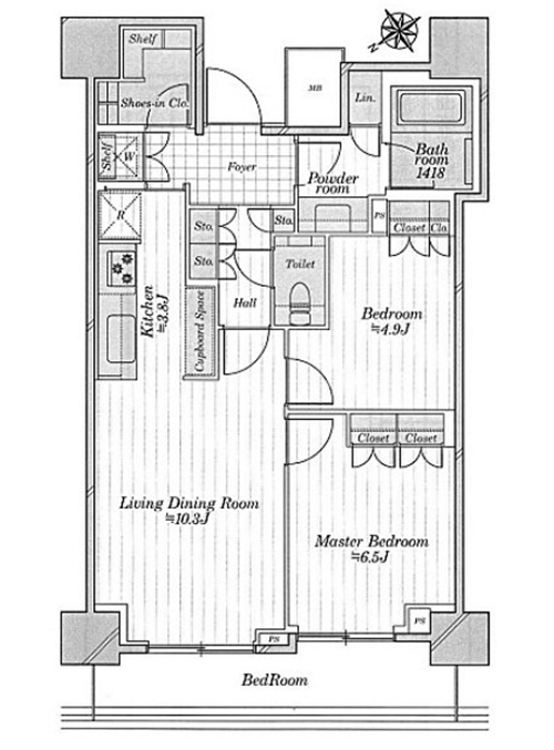
| 实际面积 | 63.06㎡ | 土地面积 | / |
| 阳台面积 | 8.65㎡ | 车库面积 | / |
| 总户数 | 1174户 | 所在层 | 43层 |
| 房型 | 2室1厅 | 朝向 | / |
| 租赁情况 | / | 租金 | / |
| 管理费 | 22,820日元/月 | 修缮费 | 7,820日元/月 |
| 建蔽率 | / | 容积率 | / |
| 用途地域 | 商业地域 | 土地权利 | 永久产权 |
| 交通 | ①みなとみらい线【马车道】站徒步1分钟 ②JR京滨东北.根岸线【樱木町】站徒步8分钟 | ||
営業部
其他地区 其他
4 地址:神奈川县横滨市中区北仲通5
交通:①みなとみらい线【马车道】站徒步1分钟
②JR京滨东北.根岸线【樱木町】站徒步8分钟
您会在一个工作日内得到置业顾问的联络




