| 地址 | 东京都港区白金台5 | ||
| 价格 | 人民币:1734万 | 租金回报 | / |
| 建筑年代 | 2006年2月 | 建筑结构 | 钢筋混凝土造 |
| 实际面积 | 141.65㎡ | 土地面积 | / |
| 阳台面积 | 19.47㎡ | 车库面积 | / |
| 总户数 | 46户 | 所在层 | 1层 |
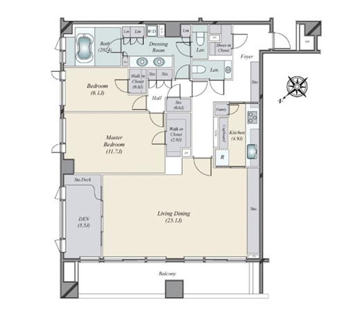
| 房型 | 2室1厅+DEN+2WIC+SIC | 朝向 | / |
| 租赁情况 | / | 租金 | / |
| 管理费 | 67,570日元/月 | 修缮费 | 11,330日元/月 |
| 建蔽率 | / | 容积率 | / |
| 用途地域 | 第一种中高层住居专用地域 | 土地权利 | 永久产权 |
| 交通 | ①东京メトロ南北线【白金台】站徒步9分钟 ②都营三田线【白金台】站徒步9分钟 | ||
2006年2月建成,永久产权,符合新抗震标准。位于东京都港区白金台区域,东京メトロ南北线,都营三田线都可利用,距【白金台】站均徒步9分钟,通往六本木站约13分钟,涩谷站约11分钟,银座站约20分钟,东京站约25分钟,品川站约14分钟,新宿站约18分钟。公寓钢筋混凝土造8层付地下2层,在靠近绿意盎然的国立自然教育园,幽静住宅区,中小学校都在步行约10分钟左右,24小时有人管理,提供日常接待服务,附设机械式停车场,物件位于1层,完成室内装修,141.65㎡2室1厅,另外19.47㎡阳台,设有书斋,鞋柜,可步入式衣帽间等丰富的收纳,不仅客餐厅,居室,厨房,盥洗室也有地暖,双洗脸池的洗面台,2处卫生间,充满高级感的浴室配有TV,双层地板及双层天花板,可饲养宠物。海外客户可以申请日本银行贷款购房,目前有两种方式:1.需要在日本设立公司,以法人名义购买,贷款额度约60-70%、还款周期25-35年、贷款利率1.5%起。2.个人名义购买,海外客户可以申请日本个人抵押贷款购房,不需要设立公司,贷款额度约50-60%,还款周期15-25年,贷款年龄65岁以内,贷款额度不能低于2000万日元,贷款利率2.7%起。详情欢迎咨询。
1. 地理与基本信息:港区地处东京都中央,东临东京湾,北接千代田区与中央区,东邻江东区,西与涩谷区和品川区接壤。全区面积约20.37平方公里,截至2023年,人口约26万,其中外国居民众多,国际化氛围浓厚。这里高楼林立,现代建筑密集,是东京的核心商务区,同时也保留了丰富的历史遗迹和绿地,展现出独特的多元性。
2. 主要区域及其特色
• 六本木(Roppongi):国际化氛围浓厚,吸引了大量外国游客和驻外人员。著名景点包括六本木之丘(含观景台和美术馆)、东京中城和森美术馆,夜生活丰富,酒吧和俱乐部云集。
• 麻布(Azabu):以高级住宅区闻名,众多大使馆坐落于此。麻布十番商店街是当地居民和游客的热门打卡地,传统店铺与现代咖啡馆和谐共存。
• 赤坂(Akasaka):政治和商业中心,靠近国会议事堂和首相官邸。拥有赤坂Sakas(TBS广播中心)和多家高级酒店,餐饮选择丰富。
• 台场(Odaiba):东京湾上的人工岛,人气观光胜地。著名景点有彩虹大桥、台场购物广场(含实物大高达像)、台场海滨公园和teamLab无界美术馆,购物和娱乐设施齐全。
• 品川(Shinagawa):新干线经停站品川站所在地,交通枢纽,同时也是重要的商业区,高楼林立。
• 白金・高轮(Shirokane/Takanawa):高级住宅区,环境静谧,分布着自然教育园和美术馆等文化场所。
• 汐留・新桥(Shiodome/Shimbashi):汐留地区再开发成果显著,办公楼和酒店密集;新桥则以上班族聚集区著称,餐饮店众多。
3. 观光景点与文化:港区拥有众多知名景点,吸引着来自国内外的游客。东京塔是港区的象征,观景台可俯瞰城市美景;芝公园和增上寺紧邻东京塔,历史寺院与自然景观相得益彰;爱宕神社以“出世之石段”闻名;teamLab无界美术馆(位于台场)以数字艺术享誉全球;六本木之丘观景台则是欣赏东京夜景和富士山的绝佳地点。
4. 交通便利:港区交通网络发达,方便前往东京市内及周边地区。地铁线路包括东京地铁(银座线、丸之内线、日比谷线等)、都营地铁、JR山手线和百合海鸥号等。主要车站有品川站、新桥站、浜松町站、六本木站、麻布十番站和台场站等。此外,前往羽田机场和成田机场也十分便捷,可乘坐单轨电车和机场巴士。
5. 经济与商业:作为日本的代表性商业区,港区汇聚了众多国内外企业总部。六本木之丘、东京中城和汐留城市中心等办公楼群是经济活动的核心地带,IT、媒体、金融和咨询等产业尤为发达。
6. 国际化氛围:港区内设有约90个国家的大使馆,国际化氛围浓厚。外国居民众多,国际学校和多语言服务设施齐全。在六本木和麻布等区域,英语和其他语言的使用也非常普遍。
7. 生活环境:教育资源丰富,国际学校和知名私立学校众多,深受有子女家庭的青睐。医疗设施完备,拥有国际医疗福祉大学三田医院和东京慈惠会医科大学附属医院等高质量医疗机构。绿地公园丰富,如芝公园、有栖川宫纪念公园和自然教育园等,提供亲近自然的好去处。然而,由于高级住宅区和观光景点众多,港区的房租和物价相对较高。
8. 活动与节庆:麻布十番纳凉祭每年夏季举行,有摊位和表演等活动;东京塔会根据季节和活动进行不同的灯光秀,深受游客喜爱;夏季,台场还会举办盛大的烟花大会。
总结:东京港区融合了商业、观光、文化和国际化元素,是感受东京都市魅力的绝佳之地。对于游客来说,这里景点丰富多样;对于居民而言,生活环境优越。不过,由于较高的物价和房租,有意在此居住的人士需提前做好预算规划。
您会在一个工作日内得到置业顾问的联络




