| 地址 | 东京都新宿区荒木町12 | ||
| 价格 | 人民币:1295万 | 租金回报 | 5.67% |
| 建筑年代 | 1985年4月 | 建筑结构 | 钢筋混凝土造 |
| 实际面积 | 292.73㎡ | 土地面积 | 176.67㎡ |
| 阳台面积 | / | 车库面积 | / |
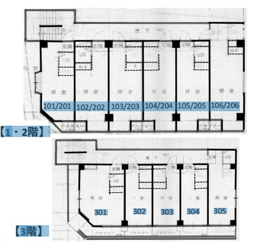
| 总户数 | 17户 | 所在层 | 1-3 |
| 房型 | 1室 | 朝向 | / |
| 租赁情况 | 目前满室出租中 | 租金 | 约14,268,000日元/年 |
| 管理费 | / | 修缮费 | / |
| 建蔽率 | 80% | 容积率 | 400%(240%) |
| 用途地域 | 商业地域.第二种中高层住居专用地域 | 土地权利 | 永久产权 |
| 交通 | ①东京メトロ丸の内线【四谷三丁目】站徒步5分钟 ②都营新宿线【曙桥】站徒步6分钟 ③JR中央.总武线.东京メトロ南北线【四ツ谷】站徒步11分钟 | ||
1985年4月建成,永久产权。位于东京都新宿区荒木町,5线3站可以利用,距最近【四谷三丁目】站徒步5分钟,利用四谷三丁目站直通新宿站10分钟,直通银座站11分钟,直通东京站13分钟。公寓钢筋混凝土造3层,东侧/南侧分别约2.6m/2.7m道路,周边有超市,医院,还有院校,2021年12月实施了大规模修缮,包括屋顶及阳台防水,新设快递箱,入口改装等,全17户,单间户型,室内厨具,卫浴设备等生活配套设施齐全,目前满室出租中,详情欢迎咨询。海外客户可以申请日本银行贷款购房,目前有两种方式:1.需要在日本设立公司,以法人名义购买,贷款额度约60-70%、还款周期25-35年、贷款利率1.5%起。2.个人名义购买,海外客户可以申请日本个人抵押贷款购房,不需要设立公司,贷款额度约50-60%,还款周期15-25年,贷款年龄65岁以内,贷款额度不能低于2000万日元,贷款利率2.7%起。
新宿区(Shinjuku-ku, 新宿区)是日本东京都23区之一,位于东京西部的特别区。新宿不仅是日本屈指可数的商业、商务、娱乐中心,还是世界顶级的交通枢纽。以下为您介绍新宿区的特点和概况:
1. 地理与基本信息:新宿区位于东京都中央偏西,以神田川为界与涩谷区相邻,北接丰岛区,东邻文京区,南连涩谷区与目黑区,西毗中野区。面积约18.22平方公里,2023年人口约34万。新宿站周边人口密度极高,白天通勤者和游客众多,热闹非凡。新宿区是集商业、行政、观光、居住功能于一体的多功能区域。
2. 主要区域及其特色
• 新宿站周边:新宿站客流量日本第一,JR线、私铁、地铁等众多线路交汇,是庞大的综合交通枢纽。西口是高楼林立的商务区,有新宿NS大楼、新宿野村大楼等;东口分布着巴士总站和百货公司,如京王百货、小田急百货等;南口有歌舞伎町和黄金街,是著名的夜间繁华区;北口在都厅前,有东京都厅和新宿中央公园。
• 歌舞伎町(Kabukichō):以夜生活闻名,酒吧、俱乐部、卡拉OK酒吧、爱情酒店等密集。常盘松园是漫画家的摇篮,有手冢治虫、赤冢不二夫等的铜像。黄金街小酒吧密集,各有独特氛围和主题。
• 新宿御苑(Shinjuku Gyoen):堪称都心的世外桃源,是大型公园,可欣赏法式、英式、日式三种风格的园林,也是著名的赏樱胜地。
• 四谷(Yotsuya):有许多历史悠久的神社和寺院,也是宁静的住宅区,因四谷怪谈而闻名的四谷三丁目就在这里。赤坂见附靠近政治和商业中心,临近国会议事堂和首相官邸。
• 大久保(Ōkubo):以“韩国城”著称,可体验韩国饮食文化和娱乐。
• 新宿区役所周边:是新宿区的行政中心,有区役所和新宿区立图书馆等。
3. 文化与历史:新宿自江户时代就已存在,最初作为宿场町发展,明治以后随着铁路发展,逐渐成长为商业重地。新宿区立新宿历史博物馆可了解新宿的历史文化。
4. 观光景点:东京都厅的展望台可免费俯瞰东京全景;新宿御苑四季风景优美,是都市中的宁静之所;新宿三丁目方便购物和用餐;伊势丹新宿店是高级百货公司,能体验时尚和美容的前沿潮流。
5. 交通出行:新宿站汇聚JR线、JR东日本、小田急电铁、京王电铁、东京地铁、西武铁道、都营地铁等众多线路;新宿巴士总站是发往全国各地高速巴士的集散地;主要车站有新宿站、四谷站、新宿三丁目站等。
6. 生活环境:教育资源丰富,从幼儿园到大学一应俱全,早稻田大学部分校区位于此地;医疗设施完备,有庆应义塾大学医院、东京女子医科大学医院等大型医院;商业发达,新宿站周边是购物天堂,百货公司、专卖店、购物中心应有尽有。
7. 活动与节庆:春季新宿御苑赏樱时人潮涌动;每年秋季举办的新宿区民祭是当地居民广泛参与的大型活动。
8. 现代的新宿区:新宿不断发展变化,再开发项目持续推进,新的高楼和商业设施不断涌现。国际化程度也日益提升,是不同国籍人群往来频繁的全球化区域。
总结:新宿区在商业、观光、文化、生活等各方面都充满活力。同时,像歌舞伎町这样的娱乐区域,无论昼夜都热闹非凡。从历史古迹到现代地标,新宿看点丰富,能为访客带来多样的体验。如果您想了解特定区域或观光景点的更多信息,欢迎告知。
您会在一个工作日内得到置业顾问的联络




