| 地址 | 东京都丰岛区池袋本町4 | ||
| 价格 | 人民币:1749万 | 租金回报 | 3.80% |
| 建筑年代 | 预计2023年3月竣工 | 建筑结构 | 钢筋混凝土造 |
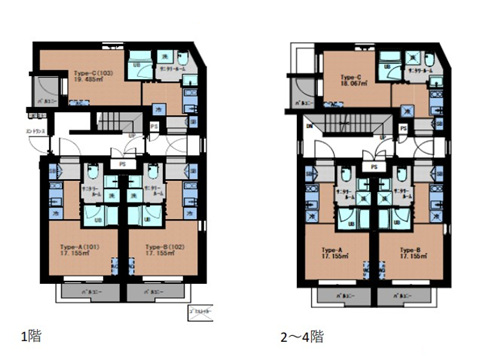
| 实际面积 | 262.04㎡ | 土地面积 | 124.92㎡ |
| 阳台面积 | / | 车库面积 | / |
| 总户数 | / | 所在层 | 1-4 |
| 房型 | / | 朝向 | / |
| 租赁情况 | 目前建筑中 | 租金 | 约12,072,000日元/年/满室 |
| 管理费 | / | 修缮费 | / |
| 建蔽率 | 60% | 容积率 | 300% |
| 用途地域 | 第一种中高层住居专用地域 | 土地权利 | 永久产权 |
| 交通 | ①东武东上线【下板桥】站徒步4分钟 ②东武东上线【北池袋】站徒步5分钟 ③埼京线【板桥】站徒步8分钟 | ||
预计2023年3月竣工,永久产权,符合新抗震标准。位于东京都丰岛区池袋本町4丁目,2线3站可以利用,距东武东上线【下板桥】站徒步4分钟,【北池袋】站徒步5分钟,距埼京线【板桥】站徒步8分钟,交通便捷,利用下板桥站直通池袋站3分钟,至新宿站15分钟,涩谷站23分钟。公寓楼钢筋混凝土造4层,北侧约4.3m道路,设置门禁,快递箱,监视器,可视对讲机,网络,室内17.15㎡~19.48㎡,设有IH厨具,带投影仪的吸顶灯,浴室付烘干器等生活配套设备,详情欢迎咨询。海外客户可以申请日本银行贷款购房,目前有两种方式:1.需要在日本设立公司,以法人名义购买,贷款额度约60-70%、还款周期25-35年、贷款利率1.5%起。2.个人名义购买,海外客户可以申请日本个人抵押贷款购房,不需要设立公司,贷款额度约50-60%,还款周期15-25年,贷款年龄65岁以内,贷款额度不能低于2000万日元,贷款利率2.7%起。
丰岛区(Toshima-ku, 豊島区)是日本东京都23区之一,位于东京中央的特别区。尤其是以池袋为核心的区域,作为商业、文化和娱乐中心而闻名。以下为您介绍丰岛区的特点和概况:
1. 地理与基本信息:丰岛区位于东京都北部,沿山手线分布,北邻板桥区,东接荒川区,南靠文京区,西毗新宿区。面积约13.01平方公里,2023年人口约34万,池袋站周边白天格外热闹。池袋是年轻人文化的发源地,也是动漫和御宅文化的中心。
2. 主要区域及其特色
• 池袋(Ikebukuro):池袋站是JR山手线、埼京线、东武东上线、西武池袋线、东京地铁丸之内线、有乐町线、副都心线等多条线路交汇的大型枢纽。东口商业设施齐全,有阳光城和东口商店街等。阳光城是集摩天轮、水族馆、天象馆和购物中心于一体的综合设施。西口有西武百货、丰岛园旧址(现正再开发)等。Animate池袋本店是日本最大的动漫、漫画专卖店,是御宅文化的圣地。“御宅路”上动漫和游戏相关店铺林立。2K540 AKI-OKA ARTISAN是利用旧山手线高架下空间打造的工艺品和设计商品销售区。
• 巢鸭(Sugamo):有“奶奶们的原宿”之称,有丰富的面向老年人的商品和服务,深受当地居民喜爱。高岩寺(正式名)的“地藏尊”以护身符和抽签闻名,吸引众多参拜者。
• 杂司谷(Zōshigaya):杂司谷鬼子母神寺是供奉保佑育儿和顺产神灵的寺院,寺内有美丽的花园。都电荒川线(又称“东京樱花电车”)这条老式路面电车线路经过杂司谷。
• 目白(Mejiro):是宁静的住宅区,有许多教育机构(如早稻田大学和学习院女子大学等),也分布着一些历史建筑。目白庭园曾是旧岩崎宅邸,可欣赏美丽的园林景观。
3. 文化与历史:丰岛区自江户时代就已存在,特别是池袋在明治时期后随着铁路发展而繁荣。丰岛区立乡土资料馆可以让人们了解丰岛区的历史和文化。
4. 观光景点:阳光60展望台可俯瞰东京景色,夜景尤其美丽。池袋西口公园是人们休息和举办活动的场所。丰岛园是历史悠久的游乐园,虽正进行再开发,但仍可感受其昔日风采。
5. 交通出行:池袋站线路众多,前往东京都内外都很方便。区内主要区域有路线巴士和社区巴士运行。主要车站有池袋站、目白站、巢鸭站等。
6. 生活环境:教育资源丰富,有早稻田大学等高等教育机构,以及众多从小学到高中的学校。医疗设施完备,有东京女子医科大学医院、丰岛医院等。商业发达,池袋购物选择多样,百货公司、超市、专卖店密集。
7. 活动与节庆:每年10月举办的池袋万圣节变装节,吸引众多cosplayer。丰岛园曾举办的花火大会(现因再开发暂停)。
8. 现代的丰岛区:池袋不断有新店和新文化诞生,尤其面向年轻人的娱乐活动丰富。再开发持续推进,将诞生新的商业设施和居住区。
总结:丰岛区以池袋这一大型商业区为核心,从年轻人文化到历史悠久的区域,充满多样魅力。作为御宅文化的发源地,地位颇高,有许多吸引游客和当地居民的有趣地方。生活环境良好,交通便利,无论是居住还是游览都很适宜。如果您想了解特定区域或观光景点的更多信息,欢迎告知。
您会在一个工作日内得到置业顾问的联络




