| 地址 | 东京都北区中里1 | ||
| 价格 | 人民币:466万 | 租金回报 | / |
| 建筑年代 | 1990年4月 | 建筑结构 | 钢筋混凝土造 |
| 实际面积 | 91.78㎡ | 土地面积 | / |
| 阳台面积 | 21.94㎡ | 车库面积 | / |
| 总户数 | 45户 | 所在层 | 5层 |
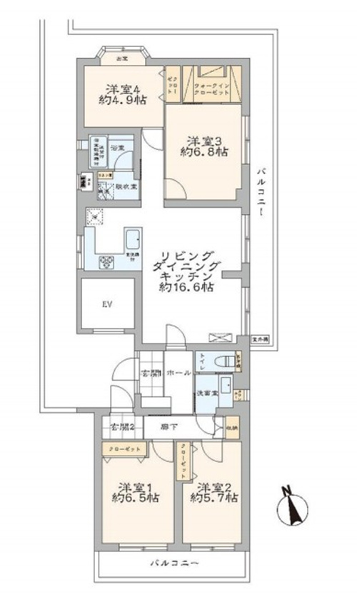
| 房型 | 4室1厅 | 朝向 | / |
| 租赁情况 | / | 租金 | / |
| 管理费 | 43,630日元/月 | 修缮费 | 15,715日元/月 |
| 建蔽率 | / | 容积率 | / |
| 用途地域 | 第一种住居地域 | 土地权利 | 永久产权 |
| 交通 | ①JR山手线【驹込】站徒步8分钟 ②JR山手线【田端】站徒步11分钟 | ||
1990年4月建成,永久产权,符合新抗震标准。位于东京都北区中里幽静的住宅街,距最近JR山手线【驹込】站徒步8分钟,到东京站、上野站、新宿站、池袋站等都很便捷的交通,名胜六義园也在步行范围。公寓楼地上5层,附近超市徒步4分钟,小学校徒步6分钟,中学校徒步1分钟,公寓位于最上层5层角住户,隐私性较好的1层1户,4室1厅,2面阳台,2处玄关,带洗完碗烘干机的系统厨具,设有步入式衣帽间等充实的收纳,松下制洗面台,TOTO制卫浴设备,浴室设有通风窗,新设空调、照明、壁纸等生活配套设备,详情欢迎咨询。海外客户可以申请日本银行贷款购房,目前有两种方式:1.需要在日本设立公司,以法人名义购买,贷款额度约60-70%、还款周期25-35年、贷款利率1.5%起。2.个人名义购买,海外客户可以申请日本个人抵押贷款购房,不需要设立公司,贷款额度约50-60%,还款周期15-25年,贷款年龄65岁以内,贷款额度不能低于2000万日元,贷款利率2.7%起。
1. 地理与基本信息:北区地处东京都北部,北邻板桥区,东接足立区,南靠荒川区,西毗丰岛区。面积约20.61平方公里,2023年人口约35万,区内多为宁静的住宅区。这里绿树成荫的公园和历史遗迹众多,深受有子女家庭的喜爱。
2. 主要区域及其特色
• 赤羽(Akabane):赤羽站有JR京滨东北线、埼京线、东京地铁有乐町线、都营三田线经过,是交通枢纽。赤羽站前商店街深受当地居民喜爱,餐饮店丰富多样。
• 王子(Ōji):王子站有JR京滨东北线、东京地铁南北线经过。飞鸟山公园是日本首个公共公园,也是著名的赏樱胜地。纸之博物馆能让人们了解日本的纸文化。
• 十条(Jūjō):十条站有JR京滨东北线、埼京线经过,周边是宁静的住宅区。十条银座是支撑当地居民生活的商店街。
• 田端(Tabata):田端站有JR山手线、京滨东北线经过,是受学生和家庭欢迎的区域。田端文士村纪念馆是为纪念昭和时期文豪们曾居住此地而设立的场馆。
• 西ケ原(Nishi-Keppu):西ケ原一里冢能让人感受到江户时代的历史痕迹。
3. 文化与历史:北区自江户时代就已存在,尤其是王子和赤羽曾作为宿场町发展起来。北区飞鸟山博物馆可以让人们了解该区的历史和文化。
4. 观光景点:飞鸟山公园是赏樱胜地,春季时众多游客前来赏樱。北区杜鹃之冈公园以杜鹃花闻名,春季是观赏的最佳时节。大观音寺以27米高的大观音像为标志。
5. 交通出行:铁路有JR山手线、京滨东北线、埼京线、东京地铁南北线、有乐町线、都营三田线等。主要车站有赤羽站、王子站、十条站、田端站等。区内有方便出行的公交线路。
6. 生活环境:教育资源丰富,从幼儿园到高中的教育机构齐全,东京学艺大学的校区也位于此地。医疗设施完备,有北区立赤羽医院、东京北医疗中心等。商业方面,各区域都有商店街和超市,生活便利性高。
7. 活动与节庆:飞鸟山赏樱是春季的标志性活动,热闹非凡。赤羽马鹿祭是当地的节日,充满欢乐的氛围。
8. 现代的北区:北区自然环境优越,公园和绿地众多,拥有适合养育子女的环境。社区凝聚力强,当地的活动和商店街充满活力。
总结:北区是历史与自然和谐相融的宁静住宅区,交通便利,生活环境完善。尤其是赤羽和王子,既是交通枢纽,又保留着当地的特色风情。对游客来说,这里看点丰富,无论是居住还是游览,北区都极具吸引力。如果您想了解特定区域或观光景点的更多信息,欢迎告知。
您会在一个工作日内得到置业顾问的联络




