| 地址 | 日本神奈川县横滨市西区北幸2 | ||
| 价格 | 人民币:830万 | 租金回报 | / |
| 建筑年代 | 2018年1月 | 建筑结构 | 钢筋混凝土造 |
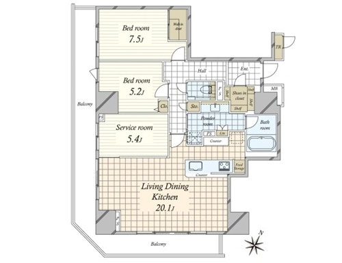
| 实际面积 | 96.62㎡ | 土地面积 | / |
| 阳台面积 | 24.96㎡ | 车库面积 | / |
| 总户数 | 210户 | 所在层 | 7层 |
| 房型 | 2室1厅+S | 朝向 | 南西 |
| 租赁情况 | / | 租金 | / |
| 管理费 | 33,300日元/月 | 修缮费 | 23,900日元/月 |
| 建蔽率 | / | 容积率 | / |
| 用途地域 | / | 土地权利 | 永久产权 |
| 交通 | ①JR各线【横滨】站徒步6分 ②东急东横线【横滨】站徒步6分钟 ③京急本线【横滨】站徒步6分钟 ④相铁线【横滨】站徒步6分钟 ⑤ブル-ライン【横滨】站徒步6分钟 | ||
林 武振 営業部
2018年1月建成,永久产权,符合新抗震标准。位于日本神奈川县横滨市西区,众多线路可利用的便捷交通,距终点站【横滨】站徒步6分钟,半小时内直通东京站,周边商业设施充实,最近的便利店徒步仅1分钟,公寓楼地上17层付地下1层,南侧面向河川沿岸散步道,2F、3F设置花园和步道,4F以上是住宅层,共用部设置门禁、快递储物柜,休息区和图书区等,有驻车场、可饲养宠物(有细规)。公寓位于7层,南西向角住户,2室1厅,另外带有可以用作书房、工作室等多用途空间,对面式厨房,设有鞋柜及步入式衣帽间,所有房间都面朝阳台,卫浴独立,详情欢迎咨询。海外客户可以申请日本银行贷款购房,目前有两种方式:1.需要在日本设立公司,以法人名义购买,贷款额度约60-70%、还款周期25-35年、贷款利率1.5%起。2.个人名义购买,海外客户可以申请日本个人抵押贷款购房,不需要设立公司,贷款额度约50-60%,还款周期15-25年,贷款年龄65岁以内,贷款额度不能低于2000万日元,贷款利率2.7%起。
其他地区 其他
4 地址:日本神奈川县横滨市西区北幸2
交通:①JR各线【横滨】站徒步6分
②东急东横线【横滨】站徒步6分钟
③京急本线【横滨】站徒步6分钟
④相铁线【横滨】站徒步6分钟
⑤ブル-ライン【横滨】站徒步6分钟
您会在一个工作日内得到置业顾问的联络




