| 地址 | 埼玉县 | ||
| 价格 | 人民币:284万 | 租金回报 | / |
| 建筑年代 | 2023年 | 建筑结构 | 木造 |
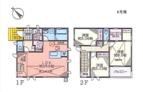
| 实际面积 | 96.58㎡~102.48㎡ | 土地面积 | 100.00㎡~118.00㎡ |
| 阳台面积 | / | 车库面积 | 有车位 |
| 总户数 | / | 所在层 | 1-2 |
| 房型 | 3室1厅 | 朝向 | / |
| 租赁情况 | / | 租金 | / |
| 管理费 | / | 修缮费 | / |
| 建蔽率 | 60 % | 容积率 | 200% |
| 用途地域 | 第二种住居地域 | 土地权利 | 永久产权 |
| 交通 | 埼玉高速铁道线【川口元郷】站徒步/分钟 | ||
2023年新建户建,贩卖户数3栋,284万人民币~,永久产权,符合新抗震标准。位于日本埼玉县,从埼玉高速铁道线【川口元郷】站徒步15分钟。周边幼稚园约30m,保育园约250m,小学校约1,070m,中学校约600m,超市约280m,药妆店约170m,邮局约660m,公园约200m,均在步行范围,生活便利。户建均木造2层,均有车位,各层都有卫生间,虽都是3室1厅,室内设计各有特点,生活配套设备齐全,详情欢迎咨询。海外客户可以申请日本银行贷款购房,目前有两种方式:1.需要在日本设立公司,以法人名义购买,贷款额度约60-70%、还款周期25-35年、贷款利率1.5%起。2.个人名义购买,海外客户可以申请日本个人抵押贷款购房,不需要设立公司,贷款额度约50-60%,还款周期15-25年,贷款年龄65岁以内,贷款额度不能低于2000万日元,贷款利率2.7%起
No.2
地理与交通
川口市地处关东平原,荒川(Arakawa River)流经其南部,与东京都足立区接壤。由于靠近东京,川口市的交通十分便利,主要依靠JR京滨东北线(Keihin-Tohoku Line)连接东京和周边地区。川口站和西川口站是市内的主要火车站,尤其是川口站,周边商业设施发达,是城市的中心区域。此外,埼玉高速铁路(Saitama Rapid Railway)也服务于部分地区,方便居民通勤至东京或其他埼玉县城市。
历史与文化
川口市的历史可以追溯到江户时代,当时它是一个以农业为主的小型聚落。进入20世纪,随着工业化的推进,川口市逐渐发展成为一个重要的制造业基地,尤其以铸造业闻名,有“铸造之城”的美誉。虽然近年来重工业有所衰退,但其工业遗产仍然是城市文化的一部分。
市内有几处值得一提的文化和历史景点:
• 川口神社:一座历史悠久的神社,是当地居民祈福和举办传统活动的地方。
• 旧田中家住宅:一座保存完好的传统日本建筑,展现了江户时代的住宅风格。
经济与社会
川口市的经济发展曾依赖铸造和金属加工等传统制造业,如今逐渐转型为住宅区和中小企业聚集地。由于靠近东京,许多居民选择在东京工作,白天通勤,晚上返回川口居住,因此被称为“东京的卧城”(bedroom community)。
近年来,川口市因其多元文化而受到关注。市内居住着大量外国居民,尤其是中国、韩国和土耳其裔(包括库尔德人)社区较为显著。特别是库尔德人社区,因其规模和文化影响力,在日本社会中引发了一些讨论。
生活与特色
川口市的物价和生活成本相对东京较低,吸引了许多家庭和年轻人定居。市内有大型购物中心(如Ario川口)、公园(如川口绿地公园)和丰富的餐饮选择,生活便利性较高。此外,每年举办的“川口花火大会”(烟火节)是当地一大盛事,吸引不少游客。
小结
川口市是一个兼具工业历史、现代生活和多元文化特色的城市。它既是东京都市圈的重要组成部分,又保留了自己的地方风貌。如果你对川口市的某个方面(如具体景点、社区文化等)感兴趣,可以告诉我,我会进一步为你详细介绍!
您会在一个工作日内得到置业顾问的联络




