| 地址 | 日本神奈川县横滨市 | ||
| 价格 | 人民币:220万 | 租金回报 | / |
| 建筑年代 | 1990年4月 | 建筑结构 | 钢筋混凝土造 |
| 实际面积 | 130.97㎡ | 土地面积 | / |
| 阳台面积 | 11.62㎡ | 车库面积 | / |
| 总户数 | 79户 | 所在层 | 4层 |
| 房型 | 3室1厅 | 朝向 | / |
| 租赁情况 | / | 租金 | / |
| 管理费 | 17,500日元/月 | 修缮费 | 18,990日元/月 |
| 建蔽率 | / | 容积率 | / |
| 用途地域 | 第一种中高层住居专用地域 | 土地权利 | 永久产权 |
| 交通 | JR京滨东北线.根岸线【磯子】站 | ||
张 茜 営業部
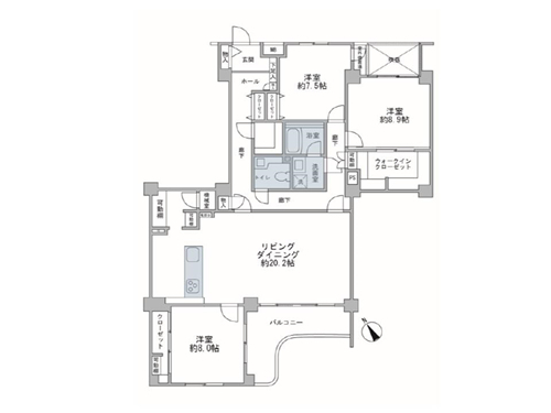
1990年4月建成,永久产权,符合新抗震标准。位于日本神奈川县横滨市,JR京滨东北线.根岸线【磯子】站可利用,可直达横滨站、樱木町站。公寓楼地上6层,周边散布着超市、便利店,近邻市立中小学校。公寓楼大厅入口配备门禁,共用设备设置了电梯、集会室等,公寓位于4层,130.97㎡3室1厅,室内实施翻新,全房间均有收纳,其中包括步入式衣帽间,卫浴独立,详情欢迎咨询。
No.32
其他地区 其他
4 地址:日本神奈川县横滨市
交通:JR京滨东北线.根岸线【磯子】站
您会在一个工作日内得到置业顾问的联络




