| 地址 | 日本神奈川县川崎市 | ||
| 价格 | 人民币:4070万 | 租金回报 | 6.0% |
| 建筑年代 | 2006年9月 | 建筑结构 | 钢筋混凝土造 |
| 实际面积 | 840.54㎡ | 土地面积 | 294㎡ |
| 阳台面积 | / | 车库面积 | / |
| 总户数 | / | 所在层 | 1-4 |
| 房型 | 事务所、店铺 | 朝向 | / |
| 租赁情况 | 目前满室出租 | 租金 | 约5108.4万日元/年 |
| 管理费 | / | 修缮费 | / |
| 建蔽率 | 80% | 容积率 | 300% |
| 用途地域 | 近邻商业地域 | 土地权利 | 永久产权 |
| 交通 | 东急田园都市线【宫前平】站 | ||
陈 芳 営業部
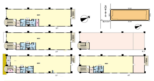
2006年9月建成,永久产权,符合新抗震标准。位于日本神奈川县川崎市,近邻东急田园都市线【宫前平】站。事务所大楼钢筋混凝土造4层,南侧19.5m道路,设有电梯,1F~3F各219.27㎡,4F182.73㎡,每层均有卫生间,目前1栋出租中,详情欢迎咨询。 海外客户可以申请日本银行贷款购房,目前有两种方式:1.需要在日本设立公司,以法人名义购买,贷款额度约60-70%、还款周期25-35年、贷款利率1.5%起。2.个人名义购买,海外客户可以申请日本个人抵押贷款购房,不需要设立公司,贷款额度约50-60%,还款周期15-25年,贷款年龄65岁以内,贷款额度不能低于2000万日元,贷款利率2.7%起。
No.222
神奈川县 川崎市宮前区
地址:日本神奈川县川崎市
交通:东急田园都市线【宫前平】站
您会在一个工作日内得到置业顾问的联络




