| 地址 | 东京都练马区 | ||
| 价格 | 人民币:2496万 | 租金回报 | 4.34% |
| 建筑年代 | 2021年3月 | 建筑结构 | 钢筋混凝土造 |
| 实际面积 | 561.01㎡ | 土地面积 | 166.12㎡(实测) |
| 阳台面积 | / | 车库面积 | / |
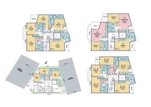
| 总户数 | 21户 | 所在层 | 1-5 |
| 房型 | 1室、1室1厅 | 朝向 | / |
| 租赁情况 | / | 租金 | 约22,608,000日元/年/满室 |
| 管理费 | / | 修缮费 | / |
| 建蔽率 | 60% | 容积率 | 300% |
| 用途地域 | 准住居地域 | 土地权利 | 永久产权 |
| 交通 | ①西武新宿线【井荻】站 ②西武池袋线【练马高野台】站 | ||
2021年3月建成,永久产权,符合新抗震标准。位于东京都练马区,西武新宿线【井荻】站、西武池袋线【练马高野台】站2线2站可以利用。公寓楼钢筋混凝土造5层,东北侧、西侧分别宽约6.15m、32.95㎡道路,共用部设置门禁、监视器、快递柜,有电梯、网络,共21户,其中1室户型19户,1室1厅户型2户,室内配置可视门铃、浴室有暖房烘干器、全房间卫浴独立,独立洗面台,详情欢迎咨询。海外客户可以申请日本银行贷款购房,目前有两种方式:1.需要在日本设立公司,以法人名义购买,贷款额度约60-70%、还款周期25-35年、贷款利率1.5%起。2.个人名义购买,海外客户可以申请日本个人抵押贷款购房,不需要设立公司,贷款额度约50-60%,还款周期15-25年,贷款年龄65岁以内,贷款额度不能低于2000万日元,贷款利率2.7%起。
No.240
1. 地理与基本信息:练马区地处东京都西北部,北邻板桥区,东接丰岛区,南靠中野区,西毗杉并区。面积约48.08平方公里,2023年人口约73万,区内有许多宁静的住宅区,深受有子女家庭的喜爱。这里动漫制作公司众多,被认定为“练马动漫基地”。
2. 主要区域及其特色
• 练马站周边:练马站是西武池袋线和东京地铁有乐町线的站点,是区中心地带。练马区役所提供各类行政服务。
• 光丘(Hikarigaoka):光丘公园面积广阔,儿童游乐场和运动设施完备。光丘IMA是大型购物中心,日常生活用品一应俱全。
• 上石神井(Kami-Igusa):上石神井公园自然环境优美,也是赏樱胜地。练马区立美术馆展示当地艺术作品。
• 江古田(Egodaa):早稻田大学部分校区在此,学生街热闹非凡。江古田之森虽规模较小,但能让人感受自然气息。
• 大泉学园(Ōizumi Gakuen):作为动漫圣地,拥有疯房子(Madhouse)和东映动画等工作室。大泉学园榉树通商店街深受当地居民喜爱。
3. 文化与历史:练马区在江户时代是农村地区,明治以后逐渐城市化。练马区立乡土博物馆可以让人们了解该区的历史和文化。
4. 观光景点:练马区立动漫美术馆可让参观者了解动漫历史和制作过程。大泉樱花公园是赏樱名地,春季吸引众多游客前来赏樱。石神井公园是东京都内屈指可数的自然公园,池塘和森林景色优美。
5. 交通出行:铁路有西武池袋线、西武新宿线、东京地铁有乐町线、副都心线、都营大江户线等。主要车站有练马站、光丘站、上石神井站、江古田站、大泉学园站等。区内出行乘坐巴士很方便,还有社区巴士“ぷらっとわん”运行。
6. 生活环境:教育资源丰富,从幼儿园到高中的教育机构齐全,早稻田大学和东京学艺大学的校区也在区内。医疗设施完备,有练马光丘医院、博慈会纪念综合医院等。商业方面,各区域分布着商店街和大型商业设施,生活便利性高。
7. 活动与节庆:练马区民节每年举办,是当地居民相聚的大型活动。大泉学园动漫街祭是庆祝动漫文化的节日。
8. 现代的练马区:练马区是动漫产业的中心地,也确立了作为新文化发源地的地位。自然环境优越,公园和绿地众多,是适合养育子女的区域。
总结:练马区在东京都内是动漫文化扎根深厚的区域,也是历史与自然和谐相融的生活区域。作为住宅区备受欢迎,前往市中心交通也很便利。无论是动漫爱好者还是家庭,练马区都是一个充满魅力的地方。如果您想了解特定区域或观光景点的更多信息,欢迎告知。
您会在一个工作日内得到置业顾问的联络




