| 地址 | 东京都中央区 | ||
| 价格 | 人民币:334万 | 租金回报 | / |
| 建筑年代 | 2023年8月 | 建筑结构 | 钢筋混凝土.铁骨造 |
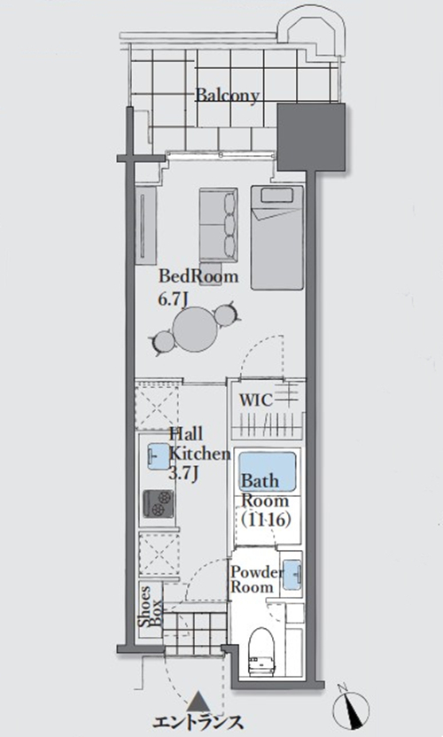
| 实际面积 | 25.05㎡ | 土地面积 | / |
| 阳台面积 | 7.25㎡ | 车库面积 | / |
| 总户数 | 1121户 | 所在层 | 16层 |
| 房型 | 1室 | 朝向 | / |
| 租赁情况 | / | 租金 | / |
| 管理费 | / | 修缮费 | / |
| 建蔽率 | / | 容积率 | / |
| 用途地域 | 第二种住居地域 | 土地权利 | 永久产权 |
| 交通 | 都营大江户线【勝どき】站 | ||
2023年8月建成,永久产权,符合新抗震标准。位于东京都中央区,近邻都营大江户线【勝どき】站。公寓楼地上45层付地下2层,聚集有商业设施、办公、住宅的大规模建筑,设有门禁、快递柜,给住户提供了优质充实的共用设施,包括健身室、客房、休息室、高尔夫球练习室、观影室等等,各层有垃圾回收室,可饲养宠物(有细规)。公寓位于16层,1室新居,生活配套设备齐全,详情欢迎咨询。海外客户可以申请日本银行贷款购房,目前有两种方式:1.需要在日本设立公司,以法人名义购买,贷款额度约60-70%、还款周期25-35年、贷款利率1.5%起。2.个人名义购买,海外客户可以申请日本个人抵押贷款购房,不需要设立公司,贷款额度约50-60%,还款周期15-25年,贷款年龄65岁以内,贷款额度不能低于2000万日元,贷款利率2.7%起。
No.157
1. 地理与基本信息:中央区地处东京都东部,隔隅田川与江东区、墨田区相望,南邻港区,北接文京区和千代田区。面积约10.21平方公里,2023年人口约16万。由于其浓厚的商业区属性,白天人口数量远多于夜间。这里不仅是日本经济活动的核心,还拥有众多历史遗迹,是备受欢迎的观光胜地。
2. 主要区域及其特色
• 银座(Ginza):汇聚了全球知名的高端品牌店。银座三越、松屋银座、银座六本木等百货公司坐落于此。歌舞伎座是体验日本传统文化的剧场。
• 日本桥(Nihonbashi):日本桥是一座历史悠久的桥梁,被誉为“日本道路的起点”。三越本店是日本最古老的百货商店之一。COREDO室町是利用历史建筑改造的商业设施。
• 京桥(Kyōbashi):东京站是日本铁路的枢纽,众多新干线和普通铁路线在此始发和终到。丸之内大厦是集办公与商业设施于一体的综合建筑。
• 筑地(Tsukiji):筑地市场曾是世界最大的批发市场,现虽已迁至丰洲,但外市场仍保留。筑地场外市场可品尝到新鲜的海产品和寿司。
• 月岛(Tsukishima):月岛文字烧街汇聚了提供文字烧和御好烧的众多餐饮店。
• 浜离宫恩赐庭园(Hama-rikyū Gardens):作为江户时代的大名庭园,可在此欣赏自然与历史的交融之美。
3. 文化与历史:中央区自江户时代起就是商业中心,尤其是日本桥,曾是江户五街道的起点。江户东京博物馆(位于墨田区,但从中央区前往便利)可让人了解从江户时代到现代的东京历史。
4. 观光景点:皇居外苑是皇居周边的观光地,二重桥和皇居东御苑颇受欢迎。三菱一号馆美术馆展示近代美术作品。COREDO室町露台是传统与现代融合的商业设施。
5. 交通出行:东京站汇集了新干线、JR东日本、东京地铁、都营地铁等众多线路。主要车站有东京站、银座站、日本桥站、筑地市场站等。区内有方便出行和观光的公交线路。
6. 生活环境:中央区的中小学数量较少,部分居民会选择周边区的学校。医疗设施完备,有圣路加国际医院、东京慈惠会医科大学附属医院等大型医疗机构。商业发达,银座和日本桥的购物选择极为丰富。
7. 活动与节庆:银座夏日祭是每年夏天举办的当地节日。日本桥街道庆典是由商店街联合举办的活动。
8. 现代的中央区:中央区在保持商业中心地位的同时,不断提升作为观光地的吸引力。高层建筑和再开发项目持续推进,丸之内和日本桥地区的现代化进程加快。国际化色彩浓厚,吸引了大量外国游客和商务人士。
总结:中央区是东京历史与经济紧密相连的独特区域,无论是作为观光地还是商业区都极具魅力,是东京传统与现代交汇的代表。这里既适合居住也适合观光,但物价和房租相对较高。如果您想了解特定区域或观光景点的更多信息,欢迎告知。
您会在一个工作日内得到置业顾问的联络




