| 地址 | 东京都清濑市 | ||
| 价格 | 人民币:650万 | 租金回报 | 7% |
| 建筑年代 | 1988年12月 | 建筑结构 | 钢筋混凝土造 |
| 实际面积 | 414.36㎡ | 土地面积 | 198.37㎡ |
| 阳台面积 | / | 车库面积 | / |
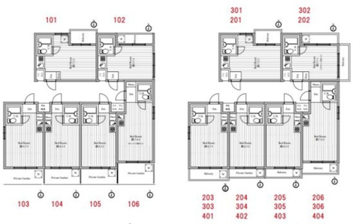
| 总户数 | 22户 | 所在层 | 1-4层 |
| 房型 | 住居 | 朝向 | / |
| 租赁情况 | 目前出租中(19/22户) | 租金 | 约9,168,000日元/年/满室 |
| 管理费 | / | 修缮费 | / |
| 建蔽率 | 60% | 容积率 | 200% |
| 用途地域 | 第一种中高层住居专用地域 | 土地权利 | 永久产权 |
| 交通 | 西武池袋线【清濑】站 | ||
1988年12月建成,永久产权,符合新抗震标准。位于东京都清濑市,西武池袋线【清濑】站可利用,可直达池袋。公寓楼钢筋混凝土造4层,西北侧宽约9m公道,周边有便利店、超市等日常购物设施,总户数22户,室内空调、卫浴设备等齐全,目前部分出租中,详情欢迎咨询。
一、地理与基本信息
1. 位置:地处东京都西部的多摩地区,北邻埼玉县新座市,东接东久留米市,南靠小平市,西连东村山市。
2. 面积:约10.18平方公里。
3. 人口:大约7万人(截至2023年的估算),是一座规模相对紧凑的住宅城市。
4. 特点:绿意盎然的自然环境和完善的教育设施是其魅力所在。
二、主要区域及其特点
1. 清濑(Kiyose)
• 清濑站:西武池袋线经过此地,是城市的中心地带,车站周边商业设施密集。
• 清濑市政府(清瀬市役所):是城市的行政中心。
2. 秋津(Akiitsu)
• 秋津站:西武池袋线途经此处,作为新兴住宅区不断发展。
• 秋津公园:自然环境优美,配备了丰富的儿童游乐场所和运动设施。
三、文化与历史
1. 清濑市由江户时代延续下来的农村地区发展而来。
2. 清濑市乡土资料馆:通过这个设施,可以深入了解清濑市的历史和文化。
四、观光景点
1. 多摩湖(村山贮水池):这是一个风景优美的水边景点,人们可以在此散步或骑自行车,享受美好时光。
2. 清濑中央公园:这是一座广场和体育设施完备的公园。
3. 清濑神社:这是一座历史悠久的神社,深受当地居民的喜爱。
五、交通
1. 铁路:西武池袋线是主要的交通线路。
2. 主要站点:包括清濑站、秋津站等。
3. 公交:乘坐公交在市内出行十分便利,尤其是从清濑站和秋津站出发的公交线路非常完善。
六、生活环境
1. 教育:从幼儿园到高中,教育机构极为完备。特别是清濑市立第一中学、东京学艺大学附属清濑中学等学校备受好评。
2. 医疗:清濑市医师会医院、东京女子医科大学附属青山医院等医疗设施齐全。
3. 商业:清濑站周边有商店街和超市,日常生活所需物品一应俱全。
七、活动与节日
1. 清濑市民节(清瀬市民まつり):这是每年都会举办的大型市民活动。
2. 清濑夏季节(清瀬夏まつり):作为夏日的传统活动,吸引了众多民众前来参与。
八、现代的清濑市
1. 清濑市自然环境优越,尤其受到有孩子家庭的青睐。
2. 交通便利,可便捷到达东京市中心,生活便利性高。
3. 教育设施和公园等配套完善,被认为是一座宜居城市。
总结:清濑市是一个自然与城市和谐平衡的区域。清濑站周边的商业设施,以及各处宁静的住宅区独具特色,生活所需设施完备。交通便利,前往东京市中心方便,深受重视教育环境的人们喜爱。如果您想进一步了解特定区域或观光景点的详细信息,请随时告知。
您会在一个工作日内得到置业顾问的联络




