| 地址 | 东京都日野市 | ||
| 价格 | 人民币:174万 | 租金回报 | 7.83% |
| 建筑年代 | 约2,736,000日元/年 | 建筑结构 | 木造 |
| 实际面积 | 113.40㎡ | 土地面积 | 146.06㎡ |
| 阳台面积 | / | 车库面积 | / |
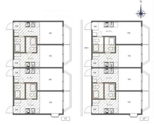
| 总户数 | 8户 | 所在层 | 1-2层 |
| 房型 | 1室+LOFT | 朝向 | / |
| 租赁情况 | 目前满室出租 | 租金 | 约2,736,000日元/年 |
| 管理费 | / | 修缮费 | / |
| 建蔽率 | 40% | 容积率 | 80% |
| 用途地域 | 第一种低层住居专用地域 | 土地权利 | 永久产权 |
| 交通 | 京王线【平山城址公园】站 | ||
1987年8月建成,永久产权。位于东京都日野市,近邻京王线【平山城址公园】站。公寓楼木造2层,各层56.70㎡,西侧约4m公道,有自行车场,总户数8户,1室户型附带LOFT,室内厨具、空调、洗衣机放置处等生活设施齐全,目前满室出租中,详情欢迎咨询。
一、地理与基本信息
1. 位置:地处东京都西部的多摩地区,北邻立川市,东接国分寺市,南靠八王子市,西连秋留野市。
2. 面积:约55.62平方公里。
3. 人口:大约19万人(截至2023年的估算),是一座自然与城市平衡发展的住宅城市。
4. 特点:这是一座沿着历史街道发展起来的城市,自然环境优越。
二、主要区域及其特点
1. 日野(Hino)
• 日野站:京王线经过此地,是城市的中心地带,商业设施和公共设施在此汇聚。
• 日野市政府(日野市役所):是城市行政的核心区域。
2. 丰田(Toyoda)
• 丰田站:京王线途经此地,周边是一片宁静的住宅区。
• 丰田公园:是当地居民休闲放松的好去处。
3. 高幡不动(Takahatafudō)
• 高幡不动尊:这是一座历史悠久的寺院,吸引了众多参拜者。
• 高幡不动站:作为京王线的站点,前往周边观光景点十分便捷。
三、文化与历史
1. 日野市是沿着甲州街道发展起来的宿场町。
2. 日野市乡土资料馆:通过这个设施,可以深入了解日野市的历史和文化。
四、观光景点
1. 高幡不动尊:作为关东三大不动之一而闻名,在这里可以欣赏到四季不同的风景。
2. 多摩动物公园:这是一座深受家庭喜爱的动物园。
3. 百草园:自然环境优越的植物园,在这里可以欣赏到四季盛开的花卉。
五、交通
1. 铁路:京王线是主要的交通线路。
2. 主要站点:包括日野站、丰田站、高幡不动站等。
3. 公交:市内公交线路覆盖广泛,尤其是从日野站出发的线路十分完善。
六、生活环境
1. 教育:从幼儿园到大学,教育机构一应俱全。特别是东京大学附属中学和高中、日野市立第一中学等学校备受好评。
2. 医疗:日野市民医院、东京医科大学八王子医疗中心等医疗设施完备。
3. 商业:日野站周边以及各个区域都有商店街和超市,日常生活所需物品应有尽有。
七、活动与节日
1. 高幡不动缘日:每月28日会举办特别的集市,吸引了大量民众前来。
2. 日野市秋季节(日野市秋まつり):这是一个可以尽情体验当地传统与文化的节日。
八、现代的日野市
1. 日野市自然环境优越,历史文化氛围浓厚。
2. 交通便利,可便捷到达东京市中心,被认为是一座宜居城市。
3. 教育设施和医疗机构完备,深受有家庭的人群喜爱。
总结:日野市是一个自然与历史相融合的区域。日野站周边的商业设施、各处宁静的住宅区,以及高幡不动尊等观光景点独具特色,生活所需设施完备。交通便利,前往东京市中心方便,在这里人们既能享受历史和自然之美,又能体验现代生活的便利。如果您想进一步了解特定区域或观光景点的详细信息,请随时告知。
您会在一个工作日内得到置业顾问的联络




