| 地址 | 日本埼玉县川越市 | ||
| 价格 | 人民币:1718万 | 租金回报 | 7.01% |
| 建筑年代 | 2002年6月 | 建筑结构 | 钢筋混凝土造 |
| 实际面积 | 600.98㎡ | 土地面积 | 155.38㎡ |
| 阳台面积 | / | 车库面积 | / |
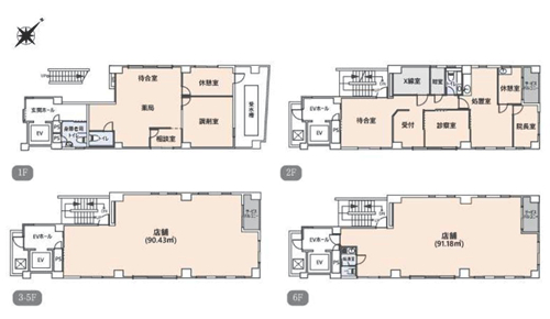
| 总户数 | 6户 | 所在层 | 1-6层 |
| 房型 | 店铺 | 朝向 | / |
| 租赁情况 | 目前部分出租中 | 租金 | 约23,498,016日元/年/满室 |
| 管理费 | / | 修缮费 | / |
| 建蔽率 | 80% | 容积率 | 400% |
| 用途地域 | 商业地域 | 土地权利 | 永久产权 |
| 交通 | 西武新宿线【南大塚】站 | ||
张 茜 営業部
2002年6月建成,永久产权,符合新抗震标准。位于日本埼玉县川越市,近邻西武新宿线【南大塚】站。大楼钢筋混凝土造6层,南西侧宽约56.1m公道,附近有便利店、药妆店、邮局等设施,大楼2024年10月完成大规模修缮,包括外壁、设备涂装、屋顶及阳台防水等,设有电梯,共6户,目前部分出租中,低层医疗系租户,5F.6F空室,也可自用,详情欢迎咨询。海外客户可以申请日本银行贷款购房,目前有两种方式:1.需要在日本设立公司,以法人名义购买,贷款额度约60-70%、还款周期25-35年、贷款利率1.5%起。2.个人名义购买,海外客户可以申请日本个人抵押贷款购房,不需要设立公司,贷款额度约50-60%,还款周期15-25年,贷款年龄65岁以内,贷款额度不能低于2000万日元,贷款利率2.7%起。
埼玉 川越市
地址:日本埼玉县川越市
交通:西武新宿线【南大塚】站
您会在一个工作日内得到置业顾问的联络




