| 地址 | 东京都杉並区西荻北1-16-13 | ||
| 价格 | 人民币:845万 | 租金回报 | 6.05%(预计) |
| 建筑年代 | 2019年3月 | 建筑结构 | 木造2层 |
| 实际面积 | 123.38㎡ | 土地面积 | 128.65平方米 |
| 阳台面积 | 车库面积 | ||
| 总户数 | 全8户 | 所在层 | 1-2层 |
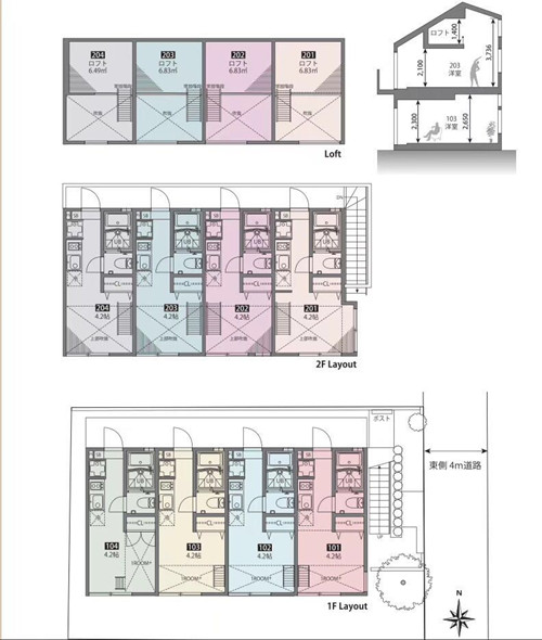
| 房型 | 1R+BF*4室 1R+LOFT*4室 | 朝向 | 南北 |
| 租赁情况 | 满室出租中 | 租金 | 799.2万日元/年 |
| 管理费 | 修缮费 | ||
| 建蔽率 | 50% | 容积率 | 100% |
| 用途地域 | 第一种低层住居专用地域 | 土地权利 | 永久产权 |
| 交通 | JR中央线·总武线西荻窪站徒步10分钟 | ||
公寓楼于2019年3月建成,永久产权。售价是1.32亿日元,约合人民币845万,贷款首付约400万人民币。公寓土地面积:128.65㎡,建筑面积:123.38㎡,全8户,全带LOFT,不加LOFT单间15㎡以上,东侧临4m宽公路。通行方便,JR総武中央線、東西線西荻窪车站徒步10分钟,总武线,东西线都是上班族很有人气的线路,车站距离中野站10分钟,新宿站16分钟,高田马场16分钟,东京站28分钟,通勤通学方便。距离超市,百元店走路2分钟,从车站到物件路过商店街,购物方便。物件南北通透,采光良好,适宜居住。全款表面回报率6%,贷款后实际回报率8%以上,租金可覆盖还款,适合资产配置,长期收益客户。
1. 地理与基本信息:杉并区位于东京都西北部,北邻练马区,东接中野区,南靠涩谷区,西毗三鹰市。面积约34.06平方公里,2023年人口约57万,作为宁静的住宅区深受欢迎。这里落语、电影等文化活动丰富,被誉为“弥漫着文化气息的区域”。
2. 主要区域及其特色
• 高圆寺(Kōenji):高圆寺站有JR中央线和总武线经过,商业区域繁华热闹。高圆寺阿波舞是每年夏天举办的日本最大规模的盆踊活动。这里的个性商店街分布着古着店、咖啡馆、杂货店等,能让人感受到下町风情。
• 阿佐谷(Asagaya):阿佐谷站有中央线和东京地铁丸之内线通过。阿佐谷动漫街汇聚了众多动漫相关店铺。阿佐谷珠算纪念馆可让人了解算盘的历史。
• 荻洼(Ogikubo):荻洼站是中央线和丸之内线的站点,商业设施完备。荻洼银座是深受当地居民喜爱的商店街。桃園川保留了自然景观,是散步的绝佳去处。
• 和田(Wada):善福寺公园面积广阔,内有鸟类园和美术馆,可尽情享受自然之美。
• 永福町(Eifukuchō):永福町站有京王井之头线经过,是宁静的住宅区。
3. 文化与历史:杉并区在江户时代曾是农村地区,明治之后逐渐走向城市化。杉并区立历史民俗资料馆可以让人们了解该区的历史和文化。
4. 观光景点:丸山商店街是位于高圆寺一角的复古商店街。善福寺川绿地是自然丰富的散步路线。杉并区立美术馆展示当地的艺术作品。
5. 交通出行:铁路有JR中央线、总武线、东京地铁丸之内线、京王井之头线等。主要车站有高圆寺站、阿佐谷站、荻洼站、永福町站等。区内出行乘坐巴士很方便,还有社区巴士“杉並区コミュニティバスすぎ丸”运行。
6. 生活环境:教育资源丰富,从幼儿园到高中的教育机构齐全,早稻田大学部分校区也在此。医疗设施完备,有国际医疗福祉大学三田医院、杉并区立综合医院等。商业方面,各区域都有商店街和大型商业设施,生活便利性高。
7. 活动与节庆:高圆寺阿波舞是日本最大规模的盆踊活动,吸引了众多国内外游客。杉并区民节是当地居民相聚的大型活动。
8. 现代的杉并区:杉并区作为住宅区备受青睐,尤其受到有子女家庭的支持。文化活动丰富,落语、电影、音乐等活动频繁举办。
总结:杉并区是自然与城市功能和谐平衡的区域,充满文化气息。高圆寺和阿佐谷的下町风情、荻洼的宁静氛围等,展现出多样的面貌,无论是居住还是游览都极具吸引力。如果您想了解特定区域或观光景点的更多信息,欢迎告知。
您会在一个工作日内得到置业顾问的联络




