| 地址 | 东京都涩谷区东1 | ||
| 价格 | 人民币:939万 | 租金回报 | |
| 建筑年代 | 预计2020年7月下旬竣工 | 建筑结构 | 木造 |
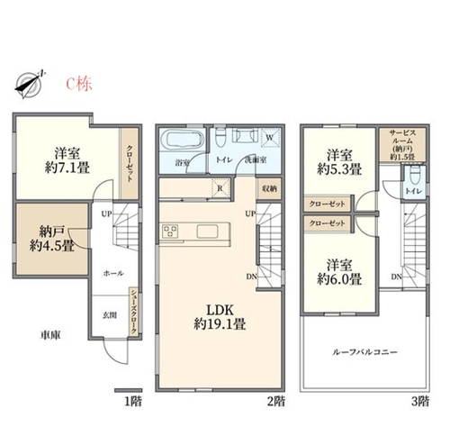
| 实际面积 | 103.09㎡~ | 土地面积 | 67.64㎡~ |
| 阳台面积 | 车库面积 | ||
| 总户数 | 3户 | 所在层 | 1-3 |
| 房型 | 3室1厅 3室1厅+2S | 朝向 | |
| 租赁情况 | 租金 | ||
| 管理费 | 修缮费 | ||
| 建蔽率 | 60% | 容积率 | 300%(160%) |
| 用途地域 | 第2种中高层住居专用地域 | 土地权利 | 永久产权 |
| 交通 | ◇JR山手线【涩谷】站徒步14分钟; ◇JR埼京线.湘南新宿ライン.东急东横线 .其他【涩谷】站徒步9分钟; ◇山手线.埼京线.其他【惠比寿】站徒步14分钟; ◇银座线.半蔵门线.千代田线【表参道】站徒步15分钟; ◇东急东横线【代官山】站徒步14分钟 | ||
预计2020年7月下旬竣工的高级户建,全3户,永久产权,符合新抗震标准。位于东京都涩谷区,交通四通八达,12线4站可以利用,物件距【涩谷】站徒步9分钟,【惠比寿】站徒步14分钟,【表参道】站徒步15分钟,【代官山】站徒步14分钟,地理位置优越,都是一等地区,一流的条件。物件周边距生活超市徒步4分钟,区立小学校徒步3分钟,区立中学校徒步7分钟,区立保育园徒步4分钟,邮局徒步4分钟,警察署徒步9分钟,生活安全便利。物件室内生活配套设施齐全,玄关感应照明,客厅配置地暖,附带净水器及洗碗机的现代化厨具,24小时换气设备,收纳,节水性能马桶等。另外,物件可以申请日本银行贷款,首付4-5成,贷款利率2.9%,贷款周期25年。撬动杠杆不但可以增加收益,还降低了投资风险!欢迎咨询。
1. 地理与基本信息:涩谷区位于东京都中央偏西,神田川和涩谷川穿流而过,北邻新宿区,东接港区,南靠目黑区,西毗世田谷区。面积约15.11平方公里,2023年人口约23万,涩谷站周边白天人口密度极高。这里是年轻人文化与潮流的发源地,也是商业、娱乐和商务的中心。
2. 主要区域及其特色
• 涩谷站周边:涩谷十字路口世界闻名,游客与当地人往来穿梭。忠犬八公铜像不仅是纪念雕塑,也是热门的集合地点。SHIBUYA 109是面向年轻人的时尚大厦,深受女性喜爱。SHIBUYA TSUTAYA销售音乐、影像和书籍,是文化中心。
• 原宿(Harajuku):表参道是高端品牌店和时尚街区,吸引全球时尚人士。竹下通是年轻人潮流前沿汇聚地,服装店和饰品店林立。明治神宫位于广阔森林中,举办婚礼和新年参拜时热闹非凡。代代木公园常举办音乐节和各类活动。
• 代代木(Yoyogi):代代木公园是运动和野餐的理想场所,也是东京马拉松的起点。NHK放送中心是日本放送协会(NHK)总部,可参观演播室公园和博物馆。
• 惠比寿(Ebisu):惠比寿花园广场是集购物和餐饮于一体的综合设施,还有札幌啤酒工厂。西乡山公园是位于高地的小公园,可俯瞰惠比寿街景。
• 代官山(Daikanyama):氛围宁静,是有许多咖啡馆和精品店的时尚区域,还分布着一些精选店和画廊。
3. 文化与历史:涩谷自明治时代铁路开通后迅速发展,战后确立了作为年轻人文化中心的地位。涩谷区立乡土博物馆可以让人们了解涩谷的历史和文化。
4. 观光景点:涩谷Hikarie是集购物、餐饮、娱乐于一体的新地标,从展望台“Shibuya Sky”可欣赏绝美景色。涩谷PARCO是艺术和时尚的发源地,常有新展览和活动。猫街连接原宿和涩谷,个性店铺和咖啡馆众多。
5. 交通出行:涩谷站是JR山手线、东急东横线、田园都市线、京王井之头线、东京地铁银座线、半藏门线、副都心线等多条线路的交汇点。区内主要区域公交线路完备。主要车站有涩谷站、原宿站、惠比寿站等。
6. 生活环境:教育资源丰富,有青山学院大学、东京工业大学等多所高校。惠比寿和代官山周边诊所和医院完备。商业发达,购物和餐饮选择丰富,新店不断开业。
7. 活动与节庆:每年10月的涩谷万圣节,众多年轻人和游客盛装聚集。涩谷音乐节是利用整个街区举办的音乐活动,当地艺术家会登台表演。
8. 现代的涩谷区:再开发不断推进,诞生了“涩谷STREAM”和“涩谷Fukuras”等新景点。国际化色彩浓厚,外国游客和居民众多,多语言服务设施不断增加。
总结:涩谷区是东京充满活力的区域,能让人感受到年轻人文化和最新潮流。商业设施和娱乐资源极为丰富,不仅吸引游客,也为居民提供了充满刺激的生活环境。这里历史与现代交融,魅力十足,非常值得一游。如果您想了解特定区域或观光景点的更多信息,欢迎告知。
您会在一个工作日内得到置业顾问的联络




