| 地址 | 日本镰仓市雪ノ下3 | ||
| 价格 | 人民币:793万 | 租金回报 | |
| 建筑年代 | 2007年7月 | 建筑结构 | 木造 |
| 实际面积 | 138.34㎡ | 土地面积 | 226.11㎡ |
| 阳台面积 | 车库面积 | ||
| 总户数 | 所在层 | 1-2 | |
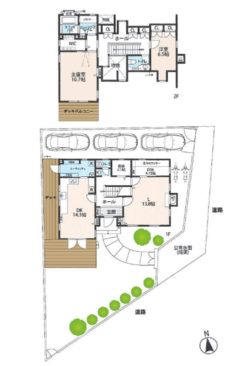
| 房型 | 2室1厅+书房+阁楼+纳户+驻车场+自行车场 | 朝向 | |
| 租赁情况 | 居住中 | 租金 | |
| 管理费 | 修缮费 | ||
| 建蔽率 | 60% | 容积率 | 150% |
| 用途地域 | 第1种中高层住居专用地域 | 土地权利 | 永久产权 |
| 交通 | ◇JR横须贺线【镰仓】站徒步17分钟 | ||
林 武振 営業部
2007年7月建成的户建,永久产权,符合新抗震标准。位于日本有着传统神社佛阁及历史悠久建筑物等观光名邸的镰仓市。物件距【镰仓】站徒步17分钟,直通【横滨】站26分钟,【东京】站56分钟,通往羽田机场约1小时左右,成田机场约2小时左右,交通便利。物件东南角地,有驻车场(3台),清新自然的田园风,高大的树木,矮小的花草都给生活增添了活力,甲板阳台舒适温馨的娱乐休闲场所,全室配备空调及暖炉,现代化的厨具,可步入式衣帽间,卫浴分离,卫生间2所,生活设备完善。另外,物件可以申请日本银行贷款,首付4-5成,贷款利率2.9%,贷款周期25年。撬动杠杆不但可以增加收益,还降低了投资风险!欢迎咨询。
其他地区 其他
4 地址:日本镰仓市雪ノ下3
交通:◇JR横须贺线【镰仓】站徒步17分钟
您会在一个工作日内得到置业顾问的联络




