| 地址 | 东京都品川区荏原1-2-8 | ||
| 价格 | 人民币:2770万 | 租金回报 | 5.0%(预计) |
| 建筑年代 | 2019年10月末完成(预计) | 建筑结构 | 钢筋混凝土造 |
| 实际面积 | 426.14㎡ | 土地面积 | 154.55㎡ |
| 阳台面积 | 车库面积 | ||
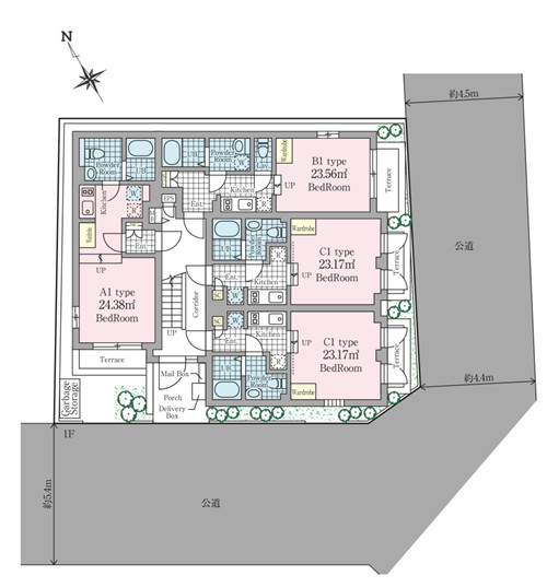
| 总户数 | 15户 | 所在层 | 1-4 |
| 房型 | 1室×14户 1室1厅×1户 | 朝向 | |
| 租赁情况 | 租金 | 21,648,000日元/年(预计) | |
| 管理费 | 修缮费 | ||
| 建蔽率 | 60% (70%) | 容积率 | 300% |
| 用途地域 | 准工业地域 | 土地权利 | 永久产权 |
| 交通 | 东急目黑线不动前站徒步9分钟; 东急池上线户越银座站徒步10分钟 | ||
公寓楼预计2019年10末建成,永久产权,符合新抗震标准。位于东京都品川区,2线2站可利用,徒步至最近车站不动前车站9分钟,至目黑站只有一站地的距离,还可直通涩谷站6分钟,品川站9分钟,新宿站14分钟,大手町站18分钟,交通便捷,地理位置优越。周边环境优美,生活便利,有武藏小山商店街,户越银座商店街,林试の森公园,目黑不动龙泉寺等。
公寓楼钢筋混凝土造地上4层,外观设计看起来简单,干净,全15户,其中1室有14户,面积23.17㎡*6户,面积23.25㎡*1户,面积23.56㎡*3户,面积24.38㎡*4户,1室1厅有1户,面积46.97㎡。室内配套设施齐全,整个空间显得宁静又和谐。另外,这个物件可以申请日本银行贷款,首付4-5成,贷款利率2.9%,贷款周期25年。撬动杠杆不但可以增加收益,还降低了投资风险!
1. 地理与基本信息:品川区地处东京都南部,北邻港区,东接大田区,南与大田区和川崎市接壤,西毗目黑区。面积约22.84平方公里,2023年人口约40万,商业区属性明显,白天人口会有所增加。品川站周边的再开发以及新商业设施的开业,让这里作为商业区备受关注。
2. 主要区域及其特色
• 品川站周边:品川站是东海道新干线、京滨东北线、山手线、横须贺线、临海线、京急本线、东京单轨电车等多条线路交汇的交通枢纽。品川Intercity是办公大楼与商业设施一体化的综合建筑。品川Season Terrace是集购物、餐厅、酒店于一体的区域。
• 五反田(Gotanda):是商业区,众多企业在此设有办公室。五反田站有JR山手线、东急池上线、都营浅草线经过。
• 大崎(Ōsaki):Gate City大崎是购物、餐饮、办公场所聚集的综合设施。大崎New City是大规模的办公楼群,再开发形成了新的街景。
• 北品川(Kita-Shinagawa):天王洲Isle是艺术和文化的发源地,有许多由仓库改造而成的画廊和咖啡馆。天王洲运河边可欣赏美丽的运河风景。
• 荏原(Ebara):分布着宁静的住宅区,还有一些商店街和公园。
• 大井町(Ōimachi):大井町站有京急本线、东急大井町线经过,商业设施完备。大井赛马场在周末时热闹非凡。
3. 文化与历史:品川自江户时代起作为宿场町发展,是重要的交通枢纽。品川神社历史悠久,深受当地居民喜爱。
4. 观光景点:品川水族馆位于天王洲Isle,是受欢迎的都市型水族馆。寺田仓库有许多现代艺术画廊和活动场地。品川区民公园可让人享受自然和运动。
5. 交通出行:品川区是东京主要铁路网汇聚的地方,尤其是品川站,有多条线路经过。主要车站有品川站、五反田站、大崎站、北品川站、大井町站等。区内公交线路完善,出行便利。
6. 生活环境:教育资源丰富,从幼儿园到高中的教育机构齐全,有庆应义塾大学、日本女子大学等。医疗设施完备,有昭和大学医院、东京医疗中心等大型医院。商业方面,品川站周边、五反田、大井町等地有许多便利的购物和餐饮设施。
7. 活动与节庆:品川区民节每年举办,是当地居民参与的大型活动。天王洲运河节可欣赏艺术和音乐表演。
8. 现代的品川区:品川区再开发持续推进,新的办公楼和商业设施不断涌现。国际化色彩浓厚,尤其是品川站周边,商务人士和游客往来频繁。
总结:品川区在商业、交通、观光、生活等各方面不断发展。既有深厚的历史背景,又在进行象征现代东京的再开发。无论是居住还是观光都极具吸引力,交通便利是其一大优势。如果您想了解特定区域或观光景点的更多信息,欢迎告知。
您会在一个工作日内得到置业顾问的联络




